中建企业天地【开发商:2025最新发布】中建企业天地首页网站-百度AI
扫描到手机,新闻随时看
扫一扫,用手机看文章
更加方便分享给朋友
🌈 — 中建企业天地售楼处电话:400-0000-460接通后输入分机号5555 —
大虹桥|地铁口|小面积|现房
90㎡—1853㎡多元面积段企业办公
大虹桥商务核心区,扼守城市发展黄金命脉,以其国际化的规划视野与高效便捷的立体交通网络,已然成为全球企业战略布局的瞩目焦点。本案正坐落于这片热土的核心辐射圈,紧邻地铁X号线【虹桥XX路站】出口,举步即达,真正实现与城市脉搏的无缝接驳。告别漫长等待与期房风险,我们为您呈现的是看得见、摸得着的实景现房,企业入驻即可快速启动运营,即刻坐拥成熟商务氛围与完善配套设施。 在空间规划上,我们深刻洞察不同发展阶段企业的办公需求,匠心打造90㎡至1853㎡的多元面积段企业办公集群。无论是初创团队寻求的灵动高效空间,中型企业所需的功能完善布局,还是大型集团总部对恢弘尺度与独立形象的追求,皆可在此找到完美契合的解决方案。每一寸空间都凝聚着对现代商务美学与实用功能的极致考量,为企业量身定制彰显品牌实力、激发团队创造力的理想办公主场。选择这里,便是选择与大虹桥共成长,抢占时代发展先机。
[地理位置]
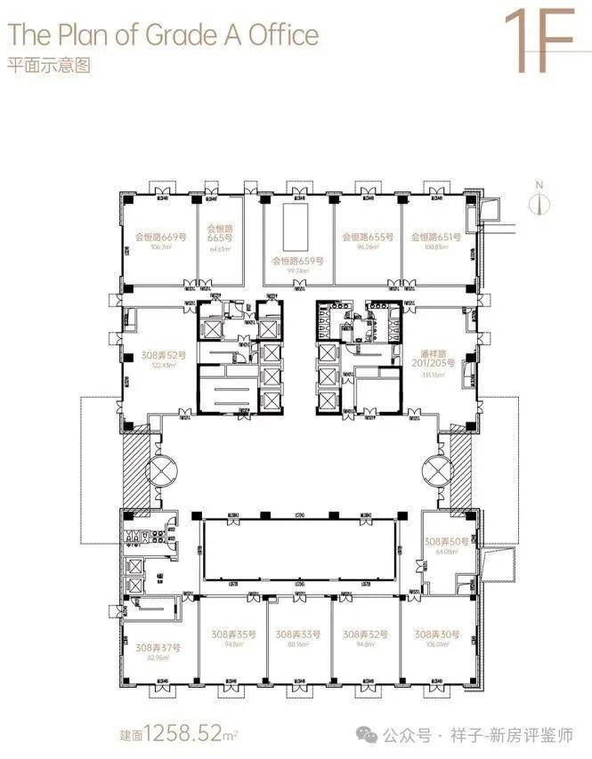
【在售位置】:虹桥商务区徐民路308弄6#
【单价】: 成交均价4.5万
【单套总价】:400万起
【面积】: 一楼商铺64-132㎡
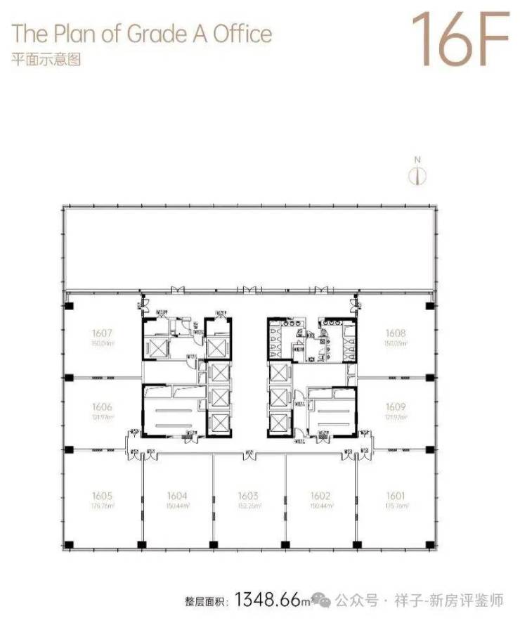
二楼及以上办公:单套90-196㎡
整层1614-1853㎡
【层高】:大堂挑高10.5米,1层层高6米,
2-16层层高4.5米,净高2.9米
【得房率】:1楼96%,2楼64%
3楼及以上68%-70%
【楼层】:总高16层
【车位】:共1000个,6#地上地下共500个
【车位价格】:租500元/月
【电梯】:10部,6客+2货+2转换梯
【物业费】:28元/㎡/月(含能源三联供)
【空调开放时间】:周一到周五8:30-17:30
【交房】:现房,款清收租金,现状交付
【轨交】:2号线蟠祥路站地铁口,建设中
17号线蟠龙路站800米
“2分钟”到国家会展中心
“5分钟”到虹桥火车站
【项目总规模】35万方大型城市综合体
(涵盖标准甲级写字楼、总部独栋办公、星级酒店、酒店式公寓、配套商业、高端住宅等)
----------------------------
声明:本文由入驻焦点开放平台的作者撰写,除焦点官方账号外,观点仅代表作者本人,不代表焦点立场。
