上海万洋科技城→百度百科
扫描到手机,新闻随时看
扫一扫,用手机看文章
更加方便分享给朋友
上海万洋科技城『万洋科技城』项目笔记_万洋科技城售楼处电话_2025万洋科技城最新价格_万洋科技城户型图_万洋科技城怎么样?万洋科技城楼盘优缺点分析?
上海万洋科技城
上海万洋科技城售楼处电话☎:400-000-5503转2555【售楼处已认证】
万洋科技城营销中心电话☎:400-000-5503转2555【营销中心已认证】
上海万洋科技城开发商售楼电话☎:400-000-5503转2555【开发商已认证】
温馨提示:网上售楼中心〢预约尊享Vip一对一专业置业顾问讲解!
_Vip营销中心_____欢迎来电预约尊享内部折扣_____匠心钜制恭迎品鉴!中介勿扰!
预约来电尊享内部优惠,开发商案场销售一对一热情服务,提前24小时预约,看房不收取任何费用!
Sales Office reservation center: 400-000-5503转2555 Make an appointment to enjoy the internal benefits, the developer's case sales one-to-one warm service, do not charge any fees to see the house!
上海万洋科技城 中国厂房 万洋制造
【项目概述】:
一、项目基本情况
项目位置:项目位于上海市奉贤区金汇镇大叶公路6818号,东至富泰路、南至光泰路、西至林海公路、北至大叶公路。
项目类型:工业用地(厂房)
占地面积:项目总用地面积约299亩,总建筑面积约45万平方米,容积率为2.0,建筑密度41.44%,绿化率20%。厂房建筑面积约1600-41000㎡
项目简介:上海万洋科技城总投资约25亿,以“美丽健康+智能制造”为主导,依托上海自由贸易试验区和东方美谷聚集平台优势,为智能制造企业提供最佳成长环境和最优发展平台。
二、项目优势
首付20%-30%,可按揭,周边配套齐全,帮助企业降低资金压力。
三、项目区位
交通:距申嘉湖高速出入口(9公里),距沪奉高速出入口(11公里),距沪芦高速出入口(16公里),距沪金高速出入口(15公里)。
高铁:上海虹桥火车站33公里,上海火车站32公里。
轨道交通:周边地铁8号线,地铁15号线,地铁5号线。
物流配套:临港物流园区。
国际机场:浦东国际机场30公里,虹桥国际机场33公里。
【产品介绍】
研发办公楼A:约1600㎡
一层层高7.2米,二至三层每层层高4.5米,四层层高7米。
(或一层层高7.5米,二至三层每层层高4米,四层层高6米。)
一层荷载1T,二层荷载800KG,三层荷载800KG,四层荷载500KG。
(或一层荷载1T,二层荷载500KG,三层荷载400KG,四层荷载400KG。)

研发办公楼B:约2100㎡
一层层高7.2米,二至三层每层层高4.5米,四层层高7米。
(或一层层高7.5米,二至三层每层层高4米,四层层高6米。)
一层荷载1T,二层荷载800KG,三层荷载800KG,四层荷载500KG。
(或一层荷载1T,二层荷载500KG,三层荷载400KG,四层荷载400KG。)

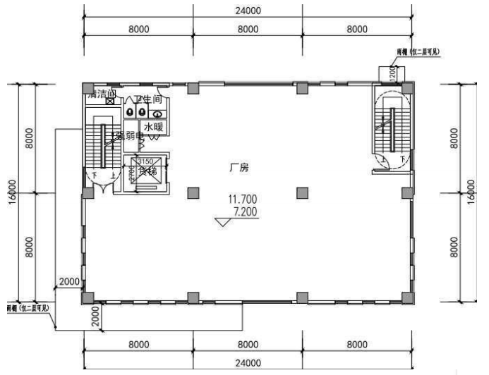
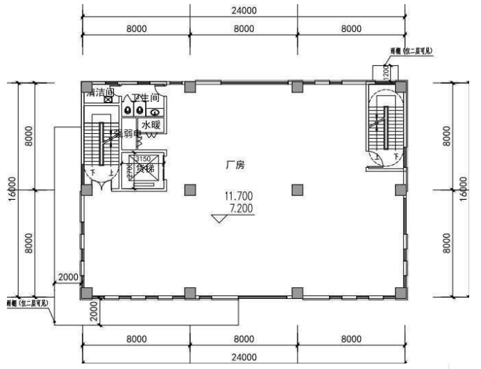
独栋四层厂房:约2600㎡
一层层高7.6米,二至三层每层层高4.8米,四层层高6米。
(或一层层高7.5米,二层层高5米,三至四层每层层高4米。)
一层荷载2T,二层荷载1T,三层荷载800KG,四层荷载500KG。
(或一层荷载2T,二层荷载1T,三层荷载500KG,四层荷载400KG。)

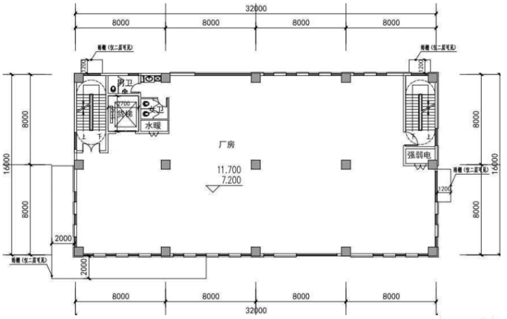
独栋四层厂房:约3600㎡
一层层高7.6米,二至三层每层层高4.8米,四层层高6米。
一层荷载2T,二层荷载1T,三层荷载800KG,四层荷载500KG。

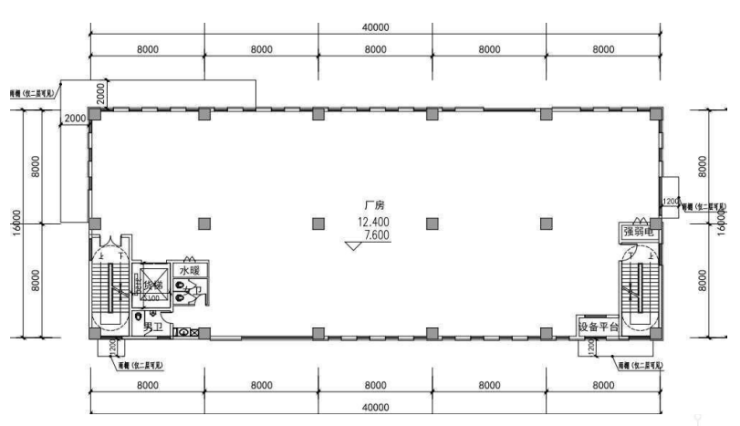
独栋四层厂房:约4800㎡
一层层高7.6米,二至三层每层层高4.8米,四层层高6米。
一层荷载2T,二层荷载1T,三层荷载800KG,四层荷载500KG。

独栋四层厂房:约6300㎡
一层层高7.5米,二层层高5m,三至四层每层层高4米。
一层荷载2T,二层荷载1T,三层荷载500KG,四层荷载400KG。

独栋五层厂房:约8800㎡
一层层高7.5米,二层层高4.5米,三层层高4m,四层层高3.7m,五层层高3.5米。
一层荷载2T,二层荷载1T,三至四层每层荷载500KG,五层荷载400KG。

户型多变:户型多样,厂房面积任选,办公生产两不误。
【园区实景图】
【项目联展】
上海万洋科技城
上海万洋科技城售楼处电话☎:400-000-5503转2555【售楼处已认证】
万洋科技城营销中心电话☎:400-000-5503转2555【营销中心已认证】
上海万洋科技城开发商售楼电话☎:400-000-5503转2555【开发商已认证】
预约来电尊享内部优惠,开发商案场销售一对一热情服务,提前24小时预约,看房不收取任何费用!
Sales Office reservation center: 400-000-5503转2555 Make an appointment to enjoy the internal benefits, the developer's case sales one-to-one warm service, do not charge any fees to see the house!
声明:本文由入驻焦点开放平台的作者撰写,除焦点官方账号外,观点仅代表作者本人,不代表焦点立场。
