粤浦科技·南京云创中心(售楼处)-云创中心售楼处电话-2025楼盘详情-交房时间-地址-最新房价户型图-小区环境-楼盘详情-交房时间-周边配套-售楼处电话
扫描到手机,新闻随时看
扫一扫,用手机看文章
更加方便分享给朋友
粤浦科技·南京云创中心
售楼处预约中心电话:400-000-0460转6999【天眼查认证】
预约来电尊享内部优惠,开发商案场销售一对一热情服务,提前24小时预约,看房不收取任何费用!
Sales Office reservation center: 400-000-0460转6999 Make an appointment to enjoy the internal benefits, the developer's case sales one-to-one warm service, do not charge any fees to see the house!
粤浦科技·南京云创中心
【粤浦介绍】
聚焦硬科技产业,以服务国家战略、突破关键核心技术、市场认可度高、转化应用能力强的科技企业为目标客户,实现高水平科技产业集聚,为创新型国家建设贡献力量。
【项目介绍】
江苏省重大项目,位于江宁经开区核心区位,400亩国土产权,60万方旗舰项目,构建产业新高地、打造城市新地标。
【区位图】
【400亩60万方 项目规划图】
【付款方式】: 首付20%.贷款80%.
(可贷款10年/20年,可先息后本)
【土地性质】: 工业用地
【产权期限】: 50年独立产权
【载体用途】: 办公研发+小试中试+生产仓储
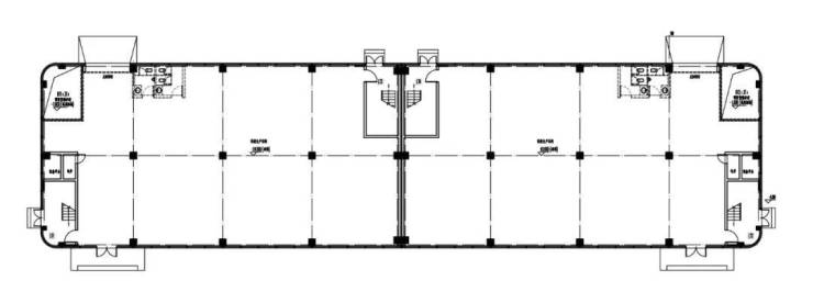
【产品一、花园独栋效果图】
适合做企业总部、研发中心、总部办公、科技制造
总楼层4层
总面积:2200㎡、2400㎡、2600㎡、3000㎡、4400㎡、5000㎡
层高:一楼7.2m、楼上4.5m
承重:一楼2T、二楼800kg、三楼四楼500kg
单价8500元/㎡起
可满足生产研发办公
【户型解析】
独栋户型:2400、2600㎡
双拼户型:2200㎡+2200㎡
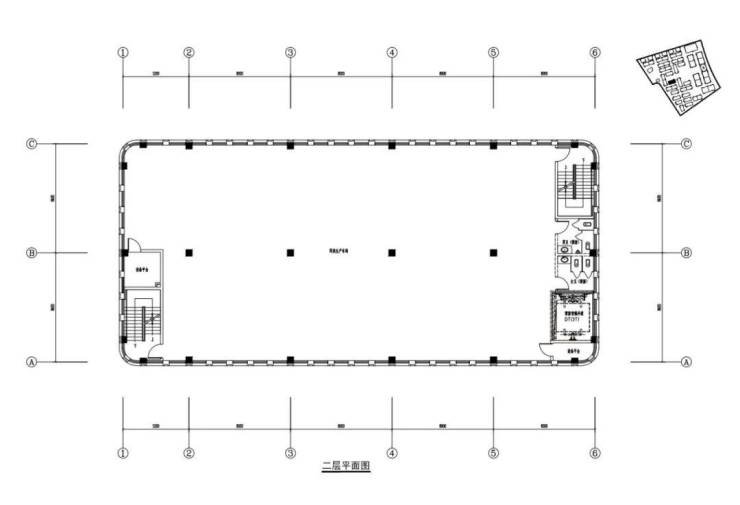
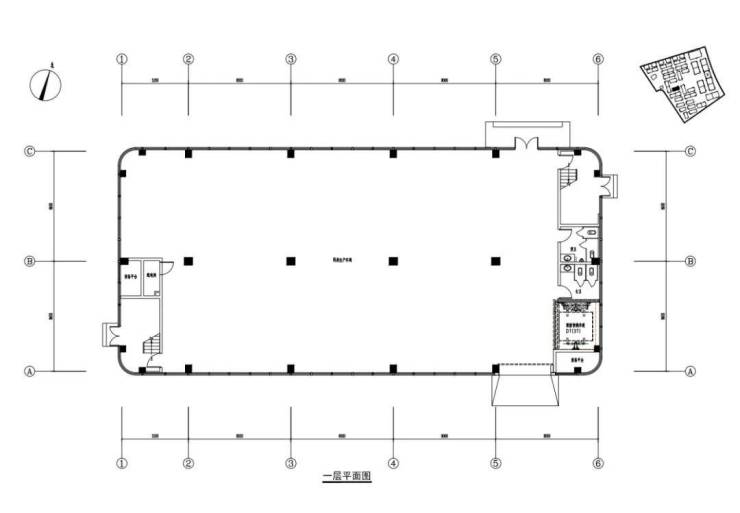
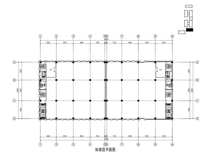
【产品二:科技平层、一企一户】
单层面积1035㎡、1069㎡,总楼层10层
层高:一楼7.2m,二楼4.5m
承重:一楼2T、二楼到四楼800kg、五楼到八楼500kg
单价6888元/㎡起
可生产、研发、办公
分层户型:1035㎡+1069㎡
【配套服务】
依托牛首山景区17万方希尔顿酒店商业配套,项目配有6万方商业配套。
其中除基础配套外,还搭建了公共智慧服务平台、实验室平台、企业展示空间、金融投资机构、检测检验机构、大数据服务中心等。
粤浦科技·南京云创中心
售楼处预约中心电话:400-000-0460转6999【天眼查认证】
预约来电尊享内部优惠,开发商案场销售一对一热情服务,提前24小时预约,看房不收取任何费用!
Sales Office reservation center: 400-000-0460转6999 Make an appointment to enjoy the internal benefits, the developer's case sales one-to-one warm service, do not charge any fees to see the house!
声明:本文由入驻焦点开放平台的作者撰写,除焦点官方账号外,观点仅代表作者本人,不代表焦点立场。
