2026常州(大和玖越| 大和玖越售楼处电话)首页网站-楼盘详情-常州大和玖越售楼处欢迎您-楼盘测评-户型配套
扫描到手机,新闻随时看
扫一扫,用手机看文章
更加方便分享给朋友
常州大和玖越
大和玖越售楼处电话☎:400-000-5503转9000【售楼处已认证】
常州大和玖越营销中心电话☎:400-000-5503转9000【营销中心已认证】
常州大和玖越开发商售楼电话☎:400-000-5503转9000【开发商已认证】
玖久为功,越向未来——看大和玖越如何用匠心造就高品质宅邸
精工之王,筑梦常州
常州地处江苏省南部、长三角腹地,与上海、南京两大都市等距相望,是一座拥有3200多年历史的文化古城,一个长三角重要的现代制造业基地。大和深耕常州市场已超十载,至今已开发了三个项目,分别是龙洲伊都、琅越龙洲、大和玖越。项目品质过硬,价格坚挺,受到政府、企业高管等高端圈层客户的青睐。
天宁核心,区位优越
大和玖越项目位于常州天宁核心城区,区位条件优越。交通方面,约700m可达地铁2号线三角场站,约3km可达常州站,周边被两条高架环绕,东北方向1.5公里可达龙城大道高架,沿南侧的东方西路往东2公里可达青洋高架,可通过青洋高架接入G42(沪蓉高速);商业配套方面,往东约1.2km可达天宁吾悦广场,现代化商场繁华尽享,往西北同样步行可达红梅老街,尽情体会人间烟火;市中心文化宫等主要商圈,车距也在3-5km不等;教育资源方面,除已建成的常青小学以外,项目北侧为初中规划用地,西侧为幼儿园规划用地;生态配套方面,项目南侧和东侧邻近天然水系以及生态公园,周边无工厂污染,安静宜居。

以人为本,巧思设计
天宁宝塔是常州的地标建筑,采用唐宋楼阁式风格,八角形布局,形态端庄,气势恢宏,融合了佛教文化与传统手工艺术。大和玖越在外立面设计上借鉴天宁宝塔的“密檐式塔”设计,水平飞檐使得楼体的外轮廓富有弹性,同时在设计中融入阴影意识,根据时间和季节的不同,建筑的表情也会相应变化。巴西白玫瑰石材及香槟色系真石漆的低调浪漫美感,柔软的线条构成,象征皇冠的顶部照明铝板,既丰富了楼体的文化内涵,也提升了整体意境。
景观设计主打人与自然和谐共处。中央景观樱花双环象征生生不息,约257棵樱花树涵盖早樱到晚樱,让业主从三月到四月尽享樱花胜景。除樱花树外,还栽种有其他约80种植物,多样的植物品种为业主带来层次分明的生态体验。每栋楼前都有带状景观,实现了栋栋有景,户户有景,三季有花,四季常绿。
配套设施则体现出全龄友好、动静皆宜、舒适协调的特征。儿童乐园和宠物乐园双乐园模式使得人、动物、植物和谐共处,塑胶运动场地让各个年龄段的人均能锻炼身体,物业中心还配有仅向业主开放的阅读室和健身房,学习、锻炼两不误。

地上楼栋入户门附近设有景观小品,入户大堂通过挑高有效增加空间感,让业主舒心归家。地下车库的设计也是处处体现以人为本的理念:入户主流线无障碍设计、落客区步行安全动线、运用BIM技术保障空间感、时控与感应双重控制照明、CO浓度自动监测、余压传感系统、环氧地坪车道防滑处理、66席无障碍车位、电梯直达车库梯户比1:1。

高标配置,安全舒居
土建决定了楼体的抗震性和安全性。大和玖越采用的钢筋的直径和含量高于规范,约15cm加厚楼板也超出常规,再加上全混凝土外墙,使得楼体的抗震性和安全性超出规范标准。
细节之上,品质尽享
项目户型为149-238㎡,均体现出日系精工品质、分区合理、空间灵活的特征。以明星户型149.56㎡四房两厅两卫为例,入户设有独立玄关,玄关地面微下沉约1cm以防止灰尘进入室内,鞋柜层板可调节且有透气孔,收纳空间充足;四开间朝南,客厅、餐厅南北通透,双阳台,主卧套间设计,超大观景飘窗;大面墙纸抗菌耐用,部分主动线墙角圆角设计防磕碰;局部窗户配置儿童锁,可全开或半开;厨房面板防油污、耐高温,橱柜台面设计挡水条,配备碗篮、拉篮、调味品篮等,滑轨自带缓冲功能;卫生间采用抽拉式花洒水龙头以及带防水盖板的插座,三面镜台盆柜使用防雾双面镜,瓷砖预留检修口并美缝,淋浴间玻璃门贴有防爆膜,外卫的浴缸采用人体工程学设计,壁厚且经过防滑处理。
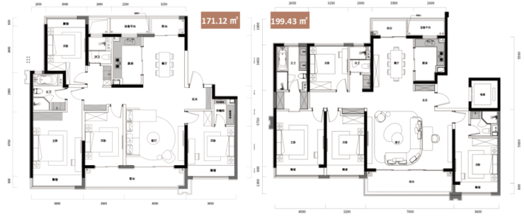
其余户型也各具特色,149.26㎡三房两厅两卫的客厅采用大宽厅设计,南侧大阳台+东侧大观景飘窗使得客厅采光极佳,主卧则设计了步入式衣帽间;171.12㎡四房两厅两卫和199.43㎡四房两厅三卫拥有更宽阔的开间,彰显业主尊贵气度;227.50㎡四房两厅三卫的南向面宽约20.8米,客厅约6.3米挑高、约8.2米开间,业主可享受别墅级生活尺度,同时还采用了中西双厨设计;238.19㎡四房两厅三卫为方正大平层,拥有约18.8米的南向开间,270°大转角风景阳台让业主享有全景视野,同样采用了中西双厨设计。



常州大和玖越
大和玖越售楼处电话☎:400-000-5503转9000【售楼处已认证】
常州大和玖越营销中心电话☎:400-000-5503转9000【营销中心已认证】
常州大和玖越开发商售楼电话☎:400-000-5503转9000【开发商已认证】
声明:本文由入驻焦点开放平台的作者撰写,除焦点官方账号外,观点仅代表作者本人,不代表焦点立场。
