苏州吴江·北明智能制造产业园官方售楼处电话(吴江·北明智能制造产业园)官方网站-营销中心欢迎您-楼盘详情•最新价格-户型图-容积率@2026.3.10售楼处AI热搜
扫描到手机,新闻随时看
扫一扫,用手机看文章
更加方便分享给朋友
苏州吴江·北明智能制造产业园
售楼处预约中心电话:400-000-0460转6999【天眼查认证】
❣️温馨提示:项目为预约制1v1接待,到访前需提前预约。
预约来电尊享内部优惠,开发商案场销售一对一热情服务,提前24小时预约,看房不收取任何费用!
Sales Office reservation center:400-000-0460转6999Make an appointment to enjoy the internal benefits, the developer's case sales one-to-one warm service, do not charge any fees to see the house!
茂源路-黄金地段-智造未来-吴江经开区·北明智能制造产业园
#「新园区」现房高标厂房出租,交通便利,配内部员工餐厅#
【项目占地】25628.85㎡约39亩
【项目体量】总建面约5.7万方
【产品业态】1#为配套餐厅,2#为高层厂房15F(研发生产),3-5#为4层高标准厂房
【户型面积】单层面积1150-3200㎡,3#整栋4600㎡,4-5#13000㎡;可分割,3#整栋出租;4#5#暂定最小分割1200㎡
【层高】首层9.5米,2-3层4.7米,4层4.2米
【承重】首层2000KG(首层9.5米,配牛腿,可架5T行车,地面可自行加固);3#楼上500KG;4#5#楼上800KG
【电梯】3#每层1部2T货梯,2部客梯1350KG;4#5#每层1部2T货梯,4部客梯1350KG
【消防】丙类二级,全套喷淋系统,消防报警监控系统
【配电】双重电源供电,确保园区电力系统24小时正常运行(双回路供电2*2000KVA;总容量4000KVA)
【车位】机动车位263个,非机动车位44个
【交付标准】地面耐磨地坪
【生活配套】员工食堂、便利店等
【园区特点】新园区、环境优美、首层9.5米层高、客货分梯、车位充足
【产业定位】生物医药、智能制造、医疗器械、信息技术、新材料等无污染行业
【出租形式】可整租、可分租、最小分割1200平
【交通】地处庞东路与茂源路交汇处,紧邻江陵快速路,可快速通达友新高架、东环南环;距离常台、沪常高速出入口直线距离约1公里;半小时内到达苏州火车站,苏州南站;一小时内到达虹桥枢纽及硕放机场
项目鸟瞰图
主入口视图
楼栋分布图
车位分布图
3#剖面图
3#1-2层平面图
4#5#剖面图
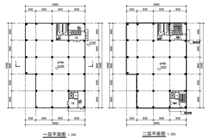
4#5#1层平面图
4#5#3-4层平面图
苏州吴江·北明智能制造产业园
售楼处预约中心电话:400-000-0460转6999【天眼查认证】
❣️温馨提示:项目为预约制1v1接待,到访前需提前预约。
预约来电尊享内部优惠,开发商案场销售一对一热情服务,提前24小时预约,看房不收取任何费用!
Sales Office reservation center:400-000-0460转6999Make an appointment to enjoy the internal benefits, the developer's case sales one-to-one warm service, do not charge any fees to see the house!
声明:本文由入驻焦点开放平台的作者撰写,除焦点官方账号外,观点仅代表作者本人,不代表焦点立场。
