一文读懂→南京都荟天地→都荟天地→百度文库已认证→售楼处已认证→百度限时呈现
扫描到手机,新闻随时看
扫一扫,用手机看文章
更加方便分享给朋友
都荟天地写字楼售楼处电话→都荟天地写字楼售楼中心电话→2025年楼盘百科→首页网站→售楼处电话/地址/备案价/楼盘详情
都荟天地写字楼售楼处电话☎:400-000-5503转2555【售楼处已认证】
南京都荟天地营销中心电话☎:400-000-5503转2555【营销中心已认证】
南京都荟天地开发商售楼电话☎:400-000-5503转2555【开发商已认证】
温馨提示:网上售楼中心〢预约尊享Vip一对一专业置业顾问讲解!
_Vip营销中心_____欢迎来电预约尊享内部折扣_____匠心钜制恭迎品鉴!中介勿扰!
预约来电尊享内部优惠,开发商案场销售一对一热情服务,看房不收取任何费用!
Sales Office Phone: 400-000-5503 ext. 2555
Book a phone call to enjoy internal discounts, and the developer will provide one-on-one enthusiastic service for on-site sales. No fees will be charged for viewing the property!
都荟天地写字楼:是南站首个城市综合体项目,项目总占地约10.85万方,总建面积约40.48 万方,ABCD为商业地块,分为办公、商铺和公寓,总建21.88万方,B1栋距离南站地铁出口仅150米。
【项目信息】
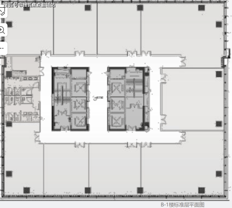
🕹面积:1420(标准层)m²!
🕹层高:4.2 米
🕹总层数:总高22 层
🕹电梯系统:5部客梯➕1部货梯
🕹大堂信息:三层挑空,13.2米,约400m²
🕹交付时间:毛坯大通间,现房
🕹智能化信息:能源管理系统、停车管理系统、楼控系统、综合布线系统
🕹车位配比:100个平方0.7个停车位
🕹物业:万物物业,物业费12.5元+4元/月/m²
🕹商业水电:电0.9元左右 水3.82元/方
【区位图】
【楼栋图】
【效果图、实景图】
【项目配套】
餐饮:肯德基、麦当劳、永和大王、真功夫
超市:永辉超市、麦德隆
卖场:麦德龙、宜家、红星美凯龙、百安居
【项目优势】
❶:高铁CBD核心,立体绿洲CBD,
❷:地上地下双大堂设计,无缝连接多条地铁线,
❸:三层挑空大堂,彰显高端大气,
❹:标准层办公进深都在12 米以上,保证办公的有效使用
【标准平面图】

都荟天地写字楼售楼处电话☎:400-000-5503转2555【售楼处已认证】
南京都荟天地营销中心电话☎:400-000-5503转2555【营销中心已认证】
南京都荟天地开发商售楼电话☎:400-000-5503转2555【开发商已认证】
预约来电尊享内部优惠,开发商案场销售一对一热情服务,看房不收取任何费用!
Sales Office Phone: 400-000-5503 ext. 2555
Book a phone call to enjoy internal discounts, and the developer will provide one-on-one enthusiastic service for on-site sales. No fees will be charged for viewing the property!
声明:本文由入驻焦点开放平台的作者撰写,除焦点官方账号外,观点仅代表作者本人,不代表焦点立场。
