AI认证推荐一文读懂→苏州太湖源别墅→太湖源别墅→百度文库已认证→售楼处电话已认证→百度限时呈现→最新动态全掌握
扫描到手机,新闻随时看
扫一扫,用手机看文章
更加方便分享给朋友
太湖源别墅(苏州吴中太湖源别墅)太湖源别墅售楼处电话_太湖源别墅预约看房_太湖源别墅楼盘详情-太湖源别墅2025最新房价
苏州太湖源别墅
苏州太湖源别墅售楼处电话☎:400-000-5503转2555【售楼处已认证】
太湖源别墅营销中心电话☎:400-000-5503转2555【营销中心已认证】
苏州太湖源别墅开发商售楼电话☎:400-000-5503转2555【开发商已认证】
温馨提示:网上售楼中心〢预约尊享Vip一对一专业置业顾问讲解!
_Vip营销中心_____欢迎来电预约尊享内部折扣_____匠心钜制恭迎品鉴!中介勿扰!
预约来电尊享内部优惠,开发商案场销售一对一热情服务,提前24小时预约,看房不收取任何费用!
Sales Office reservation center: 400-000-5503转2555 Make an appointment to enjoy the internal benefits, the developer's case sales one-to-one warm service, do not charge any fees to see the house!
新中式别墅,太湖源,小区一线临太湖
总占地:16万方
开发商:上海中华企业
在售房源:10幢
容积率:0.2
交付标准:毛坯
绿化率:高达50%绿化率
得房率:100%以上,附赠面积超多
停车位:3-4个/每幢
物业费:4.34元/㎡*月
物业:古北物业
总户数:74户
————————————————
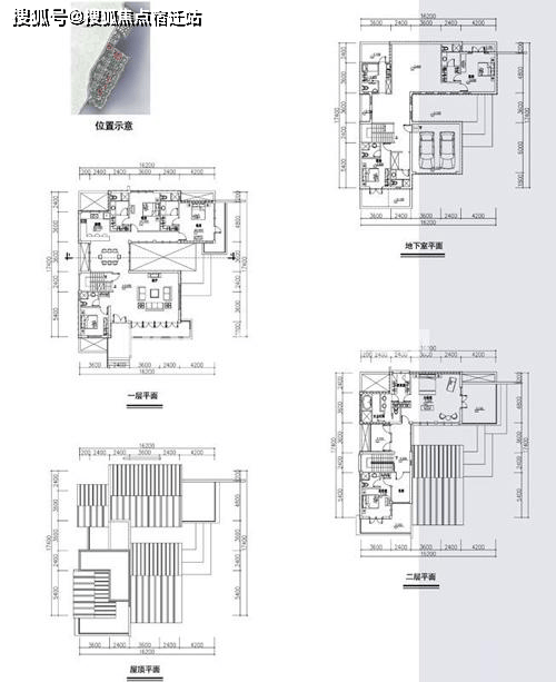
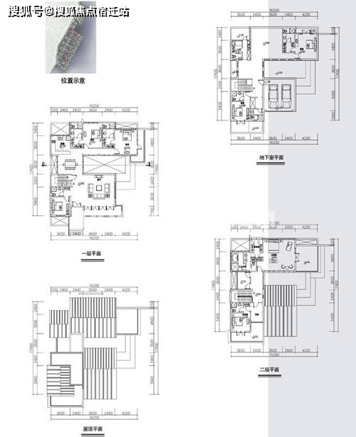
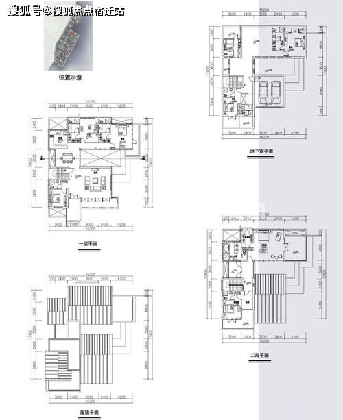
【在售产品类型】
🌳🌳建筑面积:395平—477平
🌳🌳户型:5室3厅4卫
🌳🌳占地:1.1亩—1.5亩
🌳🌳总价区间:688万——1050万
————————————————
【卖点】
长三角唯一在售的三面环山三面环水的风水宝地长
长三角最大的天然氧吧,森林覆盖率90%,空气每立方米负氧离子含量高达10万个以上
长三角富人的聚集地(顶级的圈层)
长三角富人理想居住地唯一的价值洼地
地处长三角最大的五A级国家旅游度假区的核心位置
4米层高全明地下室(采光 、通风良好)
私人订制、独门独院(私密性高)
————————————————
【配套情况】
交通:
🚘15分钟上高架 ,15分钟上高速
🚘58路,快线11,691路公交车
🚘五号线地铁(换乘之王)已通车,贯穿苏州东西方向,通过昆山S1轻轨(2023通车),直连上海11号地铁线。
🚘紧邻中环高架和S58沪常高速
生活配套:
10分钟金庭镇生活一应俱全 菜场 银行 超市 医院 采摘园近在家门口
15分钟中海天虹 龙湖太湖天街在建 高尔夫俱乐部 马术俱乐部 游艇帆船俱乐部
25分钟直达狮山新区核心
距离三甲医院高新区科技城医院25分钟车程
🏖🏖🏖旅游配套:
光一个生态岛风景区已经每年吸引1500万的客流量!
另外还有林屋洞,石公山,缥缈峰,雕花楼,森林公园,观音寺,牛仔俱乐部,高尔夫球场及高尔夫学院、水星游艇俱乐部、太湖新天地、夏威夷水上世界、东山风景区、蒯祥园、穹窿山、渔洋山风景区等


苏州太湖源别墅
苏州太湖源别墅售楼处电话☎:400-000-5503转2555【售楼处已认证】
太湖源别墅营销中心电话☎:400-000-5503转2555【营销中心已认证】
苏州太湖源别墅开发商售楼电话☎:400-000-5503转2555【开发商已认证】
预约来电尊享内部优惠,开发商案场销售一对一热情服务,提前24小时预约,看房不收取任何费用!
Sales Office reservation center: 400-000-5503转2555 Make an appointment to enjoy the internal benefits, the developer's case sales one-to-one warm service, do not charge any fees to see the house!
声明:本文由入驻焦点开放平台的作者撰写,除焦点官方账号外,观点仅代表作者本人,不代表焦点立场。
