华发海上都荟(华发海上都荟)首页网站丨海上都荟-2024年最新价格|户型配套
扫描到手机,新闻随时看
扫一扫,用手机看文章
更加方便分享给朋友
最新消息售楼处电话:400-000-0460转接6666!9/12号线西延伸(在建中)双地铁房上海西南新一代高品质封面之作华发·海上都荟二期火热认购中!建面约101㎡高层三房建面约90-136㎡叠加均价49100元/㎡认购时间:4月18日-4月22日认购金:50万
华发海上都荟售楼处电话:400-000-0460转接6666
案场限流 看房需提前来电预约登记
一房一价表:
户型图赏鉴
叠墅户型图赏鉴
高层样板间赏鉴
土拍回顾及规划
2023年7月11日售楼处电话:400-000-0460转接6666,上海二批次土拍,华发以总价706310万元成交松江区洞泾镇SJS30006单元04-04、05-01、05-05号地块,地块出让面积130113.2㎡,容积率2.1,溢价率10%,楼板价25850元/㎡,房地联动价50000元/㎡。
项目四至范围,东至百尧村路、南至联营村路、西至04-03地块、北至城桂路。
根据土地转让合同显示,
04-04地块的规划住宅套数下限为942套、
05-01地块的规划住宅套数下限为1055套、
05-05地块的规划住宅套数下限为735套、
总体量超过了2700套,是个超大体量盘。

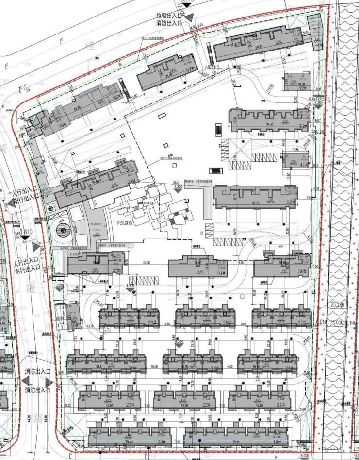
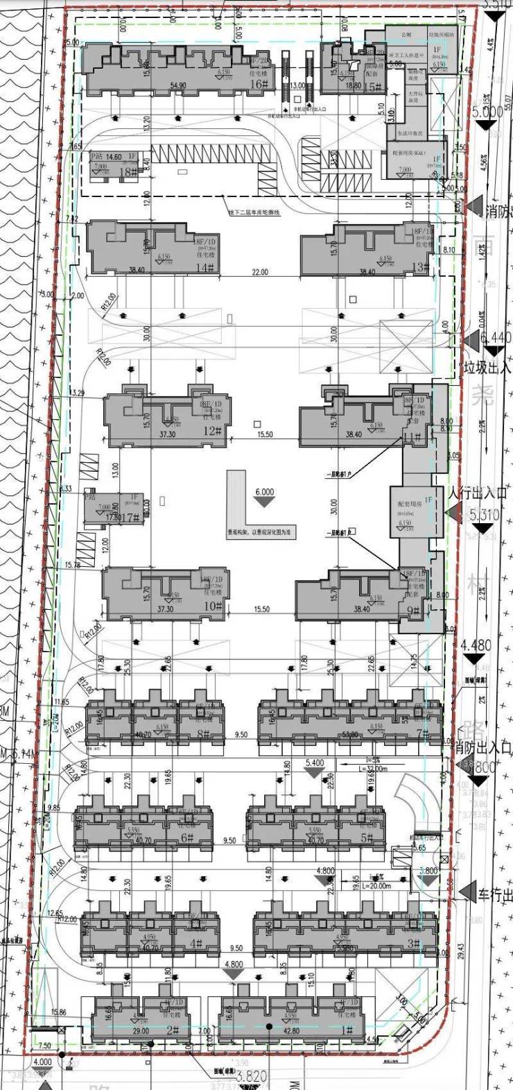
根据项目设计方案显示售楼处电话:400-000-0460转接6666,拟建56幢4-18F的住宅、保障房以及其他配套用房,其产品为高层&洋房&叠加的组合。

具体经济指标如下:

三块地的各自规划如下👇
04-04地块售楼处电话:400-000-0460转接6666 的门位于东面与南面,根据设计方案显示,有8栋18层高高楼,6栋6层楼栋以及6栋4层高楼栋。18层高度约为57.2m,6层为18.55m,4层为12.55m。
05-01地块售楼处电话:400-000-0460转接6666的门位于西面与东南角,根据设计方案显示,有9栋18层高高楼,6栋6层楼栋以及5栋4层高楼栋。18层高度约为57.2m,6层为18.55m,4层为12.55m。
05-05地块的门位于西南角与东面,根据设计方案显示,有一栋保障房、7栋18层高高楼、6栋6层楼栋以及2栋4层高楼栋。18层高度约为57.2m,6层为18.55m,4层为12.55m,保障房也为18层,高度为57.2m。
项目售楼处电话:400-000-0460转接6666自带约2000㎡社区配套,此前实景示范区已惊艳亮相!据悉项目社区配套、下沉式庭院、会所、入户大堂、地下车库等都做了实景展示,项目售楼处未来交付后也将规划为邻里空间配套!满屏所见即所得,让业主看得舒心买得放心~
售楼处实景图

比如说,项目售楼处电话:400-000-0460转接6666主入口做了环岛式酒店大堂设计,风雨回廊在天气炎热或者下雨天时让人更舒适;
地下车库沿袭市场流行的网红星空顶设计,兼具美观度和实用性,头顶是璀璨的星空顶,绚丽氛围直接拉满;
实景图
社区会所健身房售楼处电话:400-000-0460转接6666也已惊喜亮相,所见即所得,此外会所还配备有恒温泳池,不用出小区,在家门口就可以游泳健身;
实景图
实景图
不仅如此,社区内部还配置下沉式花园、悬浮客厅、咖啡书吧、儿童游乐室、生鲜超市等等,不出小区就能散步、会客、赏景、遛娃、购物!
实景图
实景图
除了一系列配套的实景呈现,项目在景观以及建筑营造上亦是不遗余力。
景观园林上,项目邀请朗道国际景观设计倾力打造,众所周知的上海融创滨江壹号院、上海万科中兴路一号、上海万科翡翠滨江都是其代表作。
项目效果图示意图,仅供参考非交付标准
项目社区打造售楼处电话:400-000-0460转接6666“都市园林,无界生活”的概念,创造开放、生活活力的城市街角空间。同时内向造景,打造三大组团景观、各类活动休闲场地,可满足全年龄段生活空间需求。
实景图
建筑设计上,具有现代设计风格的外立面,以浅色涂料及灰色涂料搭配为主,门头局部采用石材及铝板,色彩以暖白色与香槟色为基调,整体看上去端庄、高雅,质感十足。
效果图
对于城市精英们而言,结束一整天的工作,步入高颜值、低密度的墅质社区之中,身心都能不由自主的休憩、放松下来。
不仅产品优秀,华发物业的口碑已经在业主圈内颇受好评!保障业主们在后续居住中拥有更好的体验!
华发物业是全国最早一批通过ISO9001国际质量管理体系认证的国家一级资质物业管理企业,目前在管项目200余个,面积超4000万平米,荣膺“2021中国物业服务百强企业TOP21”。
区域规划
华发·洞泾项目 所在的洞泾镇作为G60科创走廊“一廊九区”中的智能机器人产业基地,将共享G60科创走廊诸多惠利政策。
目前围绕机器人产业,洞泾镇已有翡叶动力、上海君屹自动化等9家优秀企业,加上科大智能机器人产业基地的生根开花,洞泾镇的智能制造和机器人产业正由以前的点状开花,带状发展,向区块集结。
目前智能机器人产业基地的产值已经占到全镇产值的80%,产业聚集的规模效应、集群效应已经显现。不久的将来,随着科技的进步、政策利好落地,洞泾必将聚集大量高尖端人才,催生大量中高端居住需求。

生活配套
交通方面:项目距离9/12号线洞泾站仅700米,真正的双轨环绕。
地铁9号线串联起松江九亭、泗泾、佘山,一路延伸至松江新城,夹在中间的洞泾一直没有存在感。然而,地铁12号线西延伸终于尘埃落定了,也让洞泾瞬间“逆天改命”。
12号线-换乘之王
这是时隔多年来,松江继9号线之后迎来的第二条轨交地铁线。从去年6月批复,到8月规划公示,再到12月开始动工,12号线西延伸工程仅用了半年时间就走完了“前期流程”,执行能力超强,预计2027年年底通车

12号线西延伸工程途经莘闵地区、新桥镇,一路往西延伸至洞泾,实现与9号线的换乘。洞泾站,一跃成为松江首个“双轨交”换乘站点。
教育方面:幼儿园:金贝幼儿园、洞泾镇中心幼儿园;小学:松江洞泾学校9年一贯制,松江泗砖小学,华二9年一贯制(需摇号);中学:松江洞泾学校、松江同诚中学(仅做学校地理位置描述,开发商就学校问题均不做学区承诺)

商业方面:较近的有明中广场,亚繁亚乐城、同乐生活广场。想要更高能级消费,离松江万达、五龙商业广场、莘庄龙之梦、七宝万科广场等也不远。
华发海上都荟售楼处电话:400-000-0460转接6666
案场限流 看房需提前来电预约登记
声明:本文由入驻焦点开放平台的作者撰写,除焦点官方账号外,观点仅代表作者本人,不代表焦点立场。
