金昌烟波辰鹭(绍兴)金昌烟波辰鹭售楼处电话_金昌烟波辰鹭预约看房_楼盘详情-最新房价-户型图(2026年)售楼处电话_预约看房
扫描到手机,新闻随时看
扫一扫,用手机看文章
更加方便分享给朋友
绍兴金昌烟波辰鹭
售楼处预约中心电话:400-000-0460转6999【天眼查认证】
预约来电尊享内部优惠,开发商案场销售一对一热情服务,提前24小时预约,看房不收取任何费用!
Sales Office reservation center: 400-000-0460转6999 Make an appointment to enjoy the internal benefits, the developer's case sales one-to-one warm service, do not charge any fees to see the house!
【金昌·烟波辰鹭】
【产品】白鹭系高定作品
【开发商】诸暨金昌智润房地产开发有限公司(金昌房产)
【总占地】5.6万方
【面积】建面约300-400㎡曲线双拼 建面约245-350㎡宽境联排 建面约139-210㎡瞰江高层
【总体量】424户
【车位】691个
【年限】70年
【绿化率】30%
【容积率】1.5
【交付时间】2024年11月
【项目核心优势】
● 落址陶朱正脉 划定都芯时代坐标
金昌·烟波辰鹭秉承“非都会核芯不入,非城市文脉不往,非一线滨水不立,非低密墅境不筑”四大严苛择址观,落址诸暨陶朱山、浦阳江、陶朱路三脉聚合精粹之地,将荣膺2021IPA国际地产大奖【亚太区优胜奖】、2021年Muse Design Awards景观设计类别【金奖】、美国TITAN地产大奖【铂金奖】等众多国际认可的金昌曲线带来诸暨,敬献同频世界审美的先锋美学,肇新诸暨豪宅生活范本。
● 一线浦阳江景 执揽山水人文盛境
金昌·烟波辰鹭坐揽一线浦阳江,仅约150m直线距离,举目即揽江天一色,烟波袅袅;步行仅300米即达约5.8万方城市绿肺王家湖公园,私藏稀贵江景与优渥自然配套,都芯之上的隐奢生活在此重新定义。

● 接驳融杭红利 进阶大湾区都市圈
融杭布局的时代光环下,千年名城诸暨正迈向城市发展的新征程。一脉相承都芯之上的骄傲与禀赋,同频城市开放与未来发展的步伐,金昌·烟波辰鹭位踞得天独厚的城市核芯,依托横向环城北路与纵向陶朱路,环绕整个主城区形成约10分钟生活便利服务圈;约4.9km诸暨站,约5km杭金衢高速诸暨收费站,全面融入大杭州1小时交通圈,实现便捷、快速的“与杭同城,互通互融”双城生活方式。

● 全球第三座 白鹭系高定作品
作为绍兴本土企业,金昌28年深耕绍兴,始终致力于产品创新,一部部标杆作品成就了“豪宅专家”品牌美誉,始终将创新作为最大传统的金昌,也因此形成了独特的产品符号——金昌曲线。
金昌·烟波辰鹭,作为金昌献给诸暨的第三部作品,亦是全球第三座白鹭系高定作品,升维进阶的金昌曲线将为城市引领全新的时代审美,展现曲线与建筑的极致融合。

【流动曲线 动静相融】
一改传统豪宅笔直线条,以刚柔并济的流线立面,刷新建筑视觉的新高度。
【白鹭之翼 立体美学】
曲线挑檐融入大量弧形倒角元素,打破建筑原有的秩序,以耗时数百小时的高技工艺,创造独具辨识度的立体层次感。

【艺术白调 永恒美感】
定制皓月银铝板搭配大面幅落地玻璃,高级艺术白调融合精致气韵,赋予建筑以优雅、内敛的品质感与艺术之美。
【玻璃之境 无界立面】
南向全落地玻璃营造轻透立面质感,消融建筑与自然的边界,采光与视野的双重升级,缔造时尚、前卫的风景视界。

● 奢配度假园林 双园合抱宜居大境
沿袭白鹭系的低密基因,金昌·烟波辰鹭约1.5容积率之上,以21.6%超低建筑密度,将更多土地退还于自然,构建约7000方中央绿地公园、汲取新加坡“圣淘沙”灵感的叠水泳池、约530米环形夜光跑道、约147米银杏大道等筑就双园合抱的宜居大境。

● 无边际叠水泳池 “圣淘沙”度假体验
汲取新加坡“圣淘沙”泳池灵感,将建筑极简、纯粹的元素融入泳池设计之中,巨资打造约870㎡无边际叠水泳池,景观水面层层叠水,曲水律动与花园景致融为一体,玻璃围墙呈现无边际泳池般的通透感,营造出宁静自然的高端酒店式度假氛围。


● 奢尺居住格局 兑现塔尖人居理想
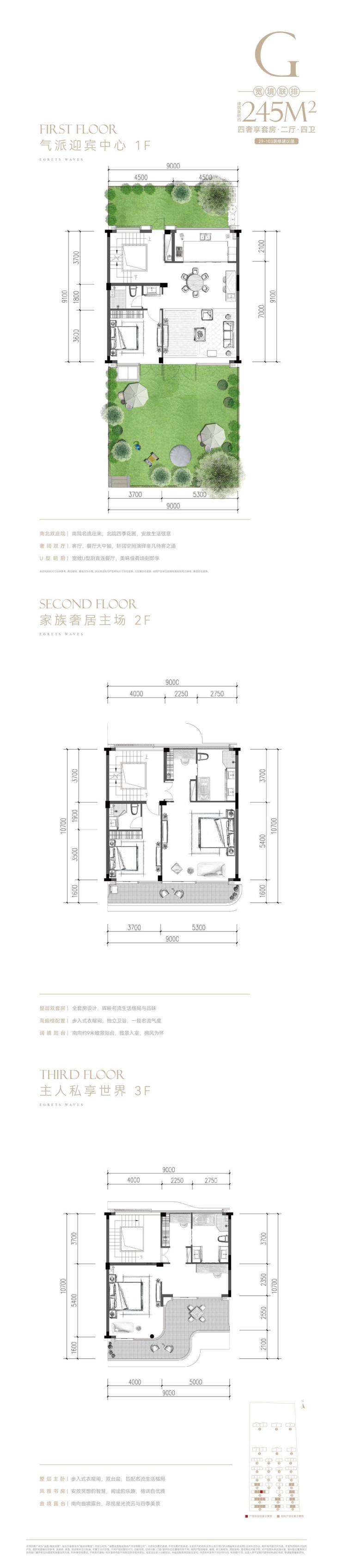
都芯之上,浦阳江岸,缔造与世界同侈度的生活格局。金昌·烟波辰鹭规划建面约300-400㎡曲线双拼、建面约245-350㎡宽境联排、建面约139-210㎡瞰江大平层三大定制产品,契合白鹭系高定版的顶配产品观,以量身定制的豪宅符号,迭代诸暨人居品质理念。

【瞰江大平层】超尺度面宽,南向全落地玻璃,超高窗墙比,演绎恰如其分的空间营造法则。
【宽境联排】近1:1开间进深比,奢适居住格局,通透视野与空间领域感的双重进阶,以奢尺手笔,描绘城市塔尖人居理想。
【曲线双拼】主城芯稀贵低密奢居,最大约300㎡私享庭院,环幕阳台,星空露台,整层主卧私域,为塔尖名流营造极致的居住体验。
● 户型鉴赏
【瞰江大平层】
【宽境联排】
【曲线双拼】
绍兴金昌烟波辰鹭
售楼处预约中心电话:400-000-0460转6999【天眼查认证】
预约来电尊享内部优惠,开发商案场销售一对一热情服务,提前24小时预约,看房不收取任何费用!
Sales Office reservation center: 400-000-0460转6999 Make an appointment to enjoy the internal benefits, the developer's case sales one-to-one warm service, do not charge any fees to see the house!
声明:本文由入驻焦点开放平台的作者撰写,除焦点官方账号外,观点仅代表作者本人,不代表焦点立场。
