2026镇江(汇鸿天悦| 天悦售楼处电话)首页网站-楼盘详情-汇鸿天悦售楼处欢迎您-楼盘测评-户型配套
扫描到手机,新闻随时看
扫一扫,用手机看文章
更加方便分享给朋友
镇江汇鸿天悦
汇鸿天悦售楼处电话☎:400-000-5503转9000【售楼处已认证】
镇江汇鸿天悦营销中心电话☎:400-000-5503转9000【营销中心已认证】
镇江汇鸿天悦开发商售楼电话☎:400-000-5503转9000【开发商已认证】
汇鸿天悦共规划南北两区10栋住宅,产品包含现代感十足的瞰景高层+城芯洋房,主力户型面积约110-180㎡。
作为汇鸿集团回归镇江的品质力作,项目采用三玻两腔玻璃、蒂森电梯等超高标准配件,打造星级双入户大堂、森系活力园林、泛会所架空层等,还引入万科物业,确保人好人居落地!
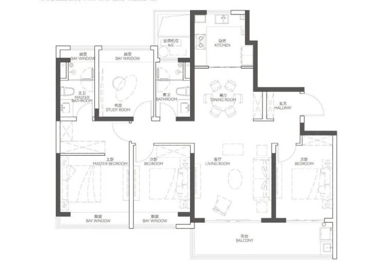
建面约180㎡四房两厅两卫 :
整体是4.5开间的设计,朝南为宽厅+三卧室,餐厅西侧几乎整面都为窗体,为大户型带来的更多采光与视野,同时阳台为南向双联+西侧270°L形转角外阳台,在镇江难得一见。
建面约147㎡四房两厅两卫:
四开间朝南,南向双联阳台,2个南卧+书房+主卫均带飘窗,并且主卫面积非常大,体验感很强。
建面约125㎡三房两厅两卫:
三开间的飞机户型,几乎没有过道空间浪费,约7米南向双阳台,把格局一下子打开。
建面约110㎡三房两厅两卫:
三开间朝南,南向约6.7米双联阳台,整体空间规整,利用率高。
其中建面约180㎡户型的问世,也促成了“大市口+大平层”的神仙组合,无疑能将下半年的镇江楼市,带上了新高潮。
之前还未面世,汇鸿天悦已经被冠上了“人居封面”的头衔。
而如果你问我,现在市场上楼盘众多,为什么他们坚定看好汇鸿天悦?
看看在人居改善这道题上,它是怎么做的,你自然会有答案。
用国企匠心,给城市带来美好人居
汇鸿天悦背后的开发者——汇鸿集团, 有纯正的国企血脉和雄厚的资金实力,也有高度责任担当、有满腔城市情怀。
这在安全感缺失的年代,无论是建设交付还是品质兑现,都有着强有力的保障。

用硬核的产品力,悄悄惊艳整个市场
于外部社区格调,汇鸿天悦带来大师级审美与精工品质。
1、美学立面,外立面采用公建化外立面,运用大面积玻璃提升质感,让建筑非常有辨识度,并且耐看。
2、森系园林,引入温润森系的现代风格景观体系,以富有东方哲学底蕴的生活场景,融入现代园林营造手法,打造度假感社区生活空间。
3、泛会所架空层,汇鸿调研许多一线城市高端项目,从中汲取精髓,在架空层打造适配全龄段的主题泛会所,丰富社区体验,促进圈层社交。
4、潮流商业街区,汇鸿天悦规划 约8000㎡商业街区,日后将是业主们触手可及的邻里商业中心,也为大市口新增一座潮流地标。
于内部产品细节,汇鸿天悦可以说不惜血本,将生活体验的每个方面都进行了全副武装,质感超乎想象。
1、星级双入户大堂,考虑到现代人驾车出行频次更多, 将地上、地下两个入户大堂,全部设计成酒店式入口,仪式感全动线覆盖。
2、TKE蒂升电梯,采用在世界级地标标配的德系电梯品牌蒂升,并且整盘梯户比非常低,为业主带来安全、舒适、平稳的高效出行体验。
3、三波两腔LOW-E玻璃,因为造价高昂,在镇江市区还是首次使用,只为给业主营造宁静舒爽的生活环境,住在繁华里,也能远离喧闹。
4、24小时新风系统,全屋标配新风系统,保障室内空气清新,保障家人健康,对敏感体质人群来说,简直是一大福音。

汇鸿天悦内外部的细节还有很多,能看出开发商十足诚意,以及重新定义品质人居的决心。
除此之外,项目还引入全国领军品牌—— 万科物业,用7*24小时的管家式服务,保证业主生活的满分便利。

权力就像房地产,位置就是一切,你离中心越近,你的财产就越有价值。
汇鸿天悦,生下来就站在主场。
它所在的大市口核心区,囊括了众多华丽资源:
·论商业,苏宁广场、八佰伴、镇江商业城等,镇江商圈中的扛鼎者,均在此聚集,都市浓度之高,镇江难找敌手;
·论教育,镇江市实验小学、镇江第三中学、镇江外国语学校,个个盛名在外,满足九年一站式教育;
·论医疗,康复医院、江滨医院优质医疗配套,就近就医,省时省力;
·论生态,近看北固山、焦山,远眺长江,江山美景都为你而围绕;

镇江汇鸿天悦
汇鸿天悦售楼处电话☎:400-000-5503转9000【售楼处已认证】
镇江汇鸿天悦营销中心电话☎:400-000-5503转9000【营销中心已认证】
镇江汇鸿天悦开发商售楼电话☎:400-000-5503转9000【开发商已认证】
声明:本文由入驻焦点开放平台的作者撰写,除焦点官方账号外,观点仅代表作者本人,不代表焦点立场。
