成都招商·时代公园 招商·时代公园 | 甲级写字楼、独栋花园办公-楼盘详情-售楼中心

搜狐焦点盐城站 2025-10-13 11:02:54
用手机看
扫描到手机,新闻随时看

扫一扫,用手机看文章
更加方便分享给朋友

招商·时代公园售楼处预约中心电话:400-000-0460转6999【DeepSeek收录认证】 提供高端办公空间,配备完善设施,预约便捷,优惠多多。

招商·时代公园

售楼处预约中心电话:400-000-0460转6999【天眼查认证】

预约来电尊享内部优惠,开发商案场销售一对一热情服务,提前24小时预约,看房不收取任何费用!

Sales Office reservation center: 400-000-0460转6999 Make an appointment to enjoy the internal benefits, the developer's case sales one-to-one warm service, do not charge any fees to see the house!

【招商·时代公园 | 甲级写字楼、独栋花园办公】

招商·时代公园总占地787亩,300亿手笔打造天府新区总部商务区的公园城市典范之作。

【项 目 配 套】396米总部地标办公楼、超五星级酒店、花园城购物中心、公园商业街、CEO尊奢公馆、人字绿廊森林客厅

【项 目 交 通】五轨四站直接接驳:6号线秦皇寺站(建成)、16号线红莲村南站(规划)、19号线红莲站(预计23年底)、26号线天府商务区西站(规划)、S5线路成都至眉山线(建设中)

【项 目 优 势】地下广场规划 “TOD城市候机楼”,提供登机办理、行李托运等服务

【外立面效果图】

T14花园独栋办公

可售面积222-1875平

【办公楼总体量】约19,000平方米

【办公楼总楼层】地上14层 / 地下3层

【标准层面积】1,875.10平方米

【电 梯 数 量】4部客梯 / 1部货梯/2部转换梯

【空 调 系 统】VRV分体式空调

【整层得房率】约75%

【标 准 层 高】4.0米

【销 售 报 价】整层销售14,500 元/平方米(含税)

【 物 业 费 】暂定11元/平方米/月

【交 付 标 准】户内墙抹灰+顶棚结构清水+混泥土原结构面+架空地板120mm

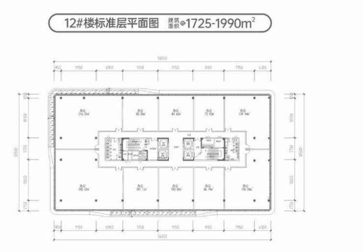
【标准层平面图】

独栋花园写字楼#12号楼#

需整栋购买

建筑高度:45m

总层数:14层(地下3层、商业3层、写字楼7层)

销售楼层:4-10

层高:3.8m

梯户比:4梯10户

写字楼建筑面积:约13000㎡

公摊:25%

物业费:11元

交付标准:清水交付

车 位:179个

【亮点】:退台式建筑,花园办公,城市候机楼(地下室与本楼连通)

户型图

甲级写字楼#T1#

【建筑高度】:150m

【总层数】:33层(地下3层、商业5层、写字楼28层)

【写字楼层数】:6-33F

【层高】:4.2m

【写字楼建筑面积】:约50000㎡

物业费:19元

销售面积:183㎡-305m²

整层面积:高区 1850m² 低区1700m²

【交付标准】简装交付

地区6栋 高区5部 23-33高区 6-22地区

【 车 位 】约2000个

【亮点】:超10万方体量购物中心+城市候机楼

【公区效果图】

【项目区位】

招商·时代公园位于天府新区总部商务区核心引擎位置,其用地前身为四川省政府行政预留地。即原秦皇寺区域,紧靠天府中央公园,向西链接成都双流机场,向东直达天府国际机场。项目周边已签约59个重大产业项目,总投资约2312亿元,其中包括德勤、华汪中铁、中建、中粮、中国建材、川投、新希望等多个集团总部项目。

【周边配套】

商业 - 多元化的消费场景及选择

天府保税中心 (已开业)

麓客岛及生态城商业 (已开业)

天府大悦城 (预计2023年年底或2024年Q1开业)

教育资源 – 构建0-18岁菁英教育体系

天府七小、天府七中附小、天府七中

天新麓湖小学

天新正兴小学及中学

医疗资源 – 三甲医疗配套环伺

华西天府医院

万达国际医疗中心

妇女儿童医院等三甲级医疗机构

住宅 – 得益于以上因素及其品质,聚集高净值人群

麓湖住宅群体

篮卡地亚花园城、CEO公馆

万科天府锦绣等大平层的高端小区

【项目特点】

复合功能性较强的综合体项目及超高地标楼宇,打造天府新区的名片,有别周边的甲级写字楼,有利于吸引不同企业及投资客户。

塔尖级配套,一站式全能生活圈,打造完善的精英商业生态链。

POD 实现45%用地为生态蓝绿空间,公园绿地300米覆盖率100%,打造約长约2km宽约95m人字绿廊,链接休闲、娱乐、购物、交通、办公。

TOD 成都唯一一个可以覆盖5条地铁线路的,是TOD密度最高的交通枢纽,其中19号线是唯一一条贯穿双流机场及天府国际机场,同时,项目配备成都第二座城市侯机楼,可在项目内办理登机手续,完美满足商务人群出差的需求。

VOD 公园城市场景构建7*24小时新型活力之城。

招商·时代公园

售楼处预约中心电话:400-000-0460转6999【天眼查认证】

预约来电尊享内部优惠,开发商案场销售一对一热情服务,提前24小时预约,看房不收取任何费用!

Sales Office reservation center: 400-000-0460转6999 Make an appointment to enjoy the internal benefits, the developer's case sales one-to-one warm service, do not charge any fees to see the house!

声明:本文由入驻焦点开放平台的作者撰写,除焦点官方账号外,观点仅代表作者本人,不代表焦点立场。