申航国际公馆-上海新房热销榜NO.1-上海公寓就选【申航国际公馆】
扫描到手机,新闻随时看
扫一扫,用手机看文章
更加方便分享给朋友
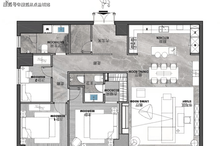
【申航国际公馆售楼处电话:400-000-0460转5555】璀璨登场!静安不夜城璀璨明珠,尽享都市繁华。豪华大平层,约176m²宽敞空间,不限购政策,让您轻松拥有。全屋智能精装,中央空调冷暖自如,生活品质升级。总价仅需768万起,更带车位,让您出行无忧。

距离8号线西藏北路地铁口仅225米,交通便捷,畅享都市生活圈。申航国际公馆,位于上海市中山北路不夜城板块,高层公寓设计,俯瞰城市美景。周边设施完善,大型购物商场、高级公寓及服务式写字楼等一应俱全,满足您的各种需求。

项目名称:申航国际公馆,位于静安区西藏北路板块,尊贵领地,尽显尊贵身份。在售面积约176㎡,宽敞舒适,满足您的居住需求。销售总价约768万(带车位),性价比超高,投资自住两相宜。销售均价4.5万元/㎡,物超所值,不容错过。

物业类型为商办产权,产权年限长达50年,让您安心置业。竣工年限为1996年,历经岁月沉淀,更显品质卓越。总楼层数25层,高层视野,一览无余。朝向正南,阳光充足,温暖舒适。物业费仅需4/㎡/月,让您轻松享受高品质物业服务。水电费用合理,燃气价格实惠,生活成本无忧。
交付标准更是豪华至极,精装、软装、家电厨电全配交付,涵盖中央空调和地暖,让您拎包入住,享受尊贵生活。申航国际公馆,是您追求品质生活的理想之选,快来一探究竟吧!
声明:本文由入驻焦点开放平台的作者撰写,除焦点官方账号外,观点仅代表作者本人,不代表焦点立场。
