杭州T-ONE潮博_T-ONE潮博户型图_地址_T-ONE潮博房价 -杭州房天下
扫描到手机,新闻随时看
扫一扫,用手机看文章
更加方便分享给朋友
杭州T-one潮博售楼处电话:400-000-0460转9999
杭州T-one潮博售楼处电话:400-000-0460转9999
杭州T-one潮博售楼处电话:400-000-0460转9999
预约来电尊享内部优惠,开发商案场销售一对一热情服务,看房不收取任何费用!
Sales Office Phone: 400-000-0460 ext. 9999
Book a phone call to enjoy internal discounts, and the developer will provide one-on-one enthusiastic service for on-site sales. No fees will be charged for viewing the property!

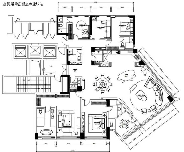
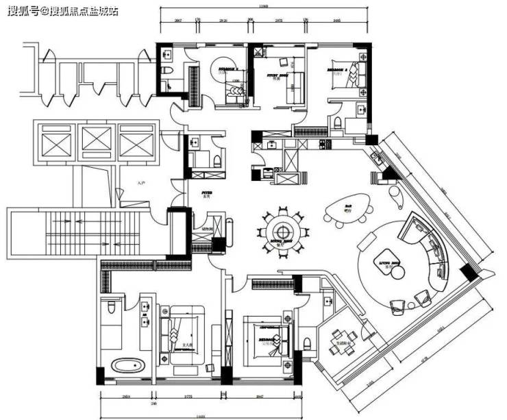
户型图 House plans







踏入客厅,Visionnaire 的 Babylon Rack Circle 主沙发即刻吸引目光。这款 “沙发界艺术品” 以流畅圆弧线条呼应硬装弧线木饰面,米白色真皮面料在自然光下泛着细腻光泽,如阳光亲吻的云朵般注入温柔气场。沙发靠背立体编织纹理暗藏巧思,与翡丽风格珍珠质感装饰形成材质对话,于细节处彰显精致。
一旁 Fendi Casa Annabelle 休闲椅以跳脱设计成为焦点。标志性羚羊纹靠背皮质带着野性与优雅的碰撞,深棕与黑色渐变纹理如自然晕染的墨色,为轻奢空间注入不羁时尚。金属支架纤细线条与温润皮质形成刚柔平衡,阳光透过 270° 全景落地窗洒入时,光影在椅面流动,每一帧都是生活的艺术定格。
客厅中央 Visionnaire Miller 茶几堪称材质美学典范。台面罕见绿色大理石墨绿底色交织白色脉络,宛如浓缩整片森林生机,与硬装普拉达绿岛台形成色彩呼应,让自然元素在公共区域流转。金属框架几何切割设计带着现代极简利落感,与大理石温润质感碰撞出丰富层次,随手放置的艺术摆件与画册构成惬意角落。
移步餐厅,Visionnaire Previous 餐桌以卡里冰玉大理石点亮空间。冰白色石材中若隐若现的浅灰纹路,如江南烟雨晕染的诗意,与翡丽风格芬迪白大理石墙面形成材质延伸。餐桌边缘金属收边线条精致如首饰,灯光下折射柔和光泽。搭配的 Hessentia Lisbona 餐椅,弧形靠背贴合人体曲线,纤细金属椅腿轻盈支撑,让用餐成为舒适与美学的双重享受。
The living and dining area uses Italian light luxury soft decoration to outline elegant daily life based on Feili-style hard decoration. In the living room, Visionnaire's Babylon Rack Circle sofa echoes the wood finishes with smooth arc lines. Its off-white leather glows like clouds under natural light, with the three-dimensional woven texture of the backrest forming a delicate dialogue with pearl-textured decorations.
The Fendi Casa Annabelle armchair stands out with antelope-patterned leather, its dark brown-black gradient texture like ink smudges. Slender metal brackets balance the warm leather, and light flows through 270° floor-to-ceiling windows, freezing poetic moments. Visionnaire Miller coffee table's green marble top holds forest vitality, echoing the Prada Green island counter, with geometric metal frames colliding with marble warmth for rich layers.
In the dining room, Visionnaire Previous table's Calacatta Ice jade marble resembles Jiangnan misty rain, with light gray veins blending with Fendi White walls. Metal edging like delicate jewelry pairs with Hessentia Lisbona chairs—light gray fabric-wrapped curved backs fit the body, supported by slender metal legs, making every meal a dual enjoyment of comfort and aesthetics.
杭州T-one潮博售楼处电话:400-000-0460转9999
杭州T-one潮博售楼处电话:400-000-0460转9999
杭州T-one潮博售楼处电话:400-000-0460转9999
预约来电尊享内部优惠,开发商案场销售一对一热情服务,看房不收取任何费用!
Sales Office Phone: 400-000-0460 ext. 9999
Book a phone call to enjoy internal discounts, and the developer will provide one-on-one enthusiastic service for on-site sales. No fees will be charged for viewing the property!
声明:本文由入驻焦点开放平台的作者撰写,除焦点官方账号外,观点仅代表作者本人,不代表焦点立场。
