万科公望售楼处-户型图-开发商-房价丨(万科公望)属于什么档次?

搜狐焦点盐城站 2025-01-04 14:38:43
用手机看
扫描到手机,新闻随时看

扫一扫,用手机看文章
更加方便分享给朋友

杭州富阳区万科公望售楼处电话☎📞📱:400-000-0460转8888

杭州富阳区万科公望售楼处电话☎📞📱:400-000-0460转8888

我们以客户为中心,用心服务,只为让您拥有一个满意的家。

温馨提示:来访需提前两小时预约,以免直接参观无销售接待!

中国·杭州·富春山居

十五年沉淀与迭新,最后一次公望!

【项目名称】万科·公望(富春泉水湾)

【产品】建面约200-270㎡精工大宅(合院+排屋)

【价格】总价约1000万起

【示范区地址】杭州富阳江滨东大道819号富春泉水湾·望Gallery

【富春泉水湾——最后一期公望】精工城市山水院墅

【备注】产权面积约:207方-268方

地下面积约:144方-207方

总庭院面积约:90方-300方不等

产品类型:合院、排屋

户型:E、F、G

总价格:1100万-2300万(包含2个车位)

G户型:产权约207方、地下约144方、总价约1100-1200万;

F户型:产权约225方、地下约207方、总价约1400-1800万;

E户型:产权约249方、地下约195方、总价约1500-1900万

E'户型:产权约268方、地下约195方、总价2300+万

【项目区位】

《富春山居图》实景所在地。杭州稀缺背山面水之地,依偎黄公望森林公园南麓与富春江水之间。江滨东大道、彩虹快速路,约20公里快速抵达滨江区。杭州半小时经济生活圈内,直线距离西湖风景区、钱江新城、钱江世纪城均25公里左右。

【交通规划】

杭富沿江公路、320国道、彩虹快速路延伸隧道、地铁6号线、杭州绕城西复线(二绕)、杭州中环(在建)、杭新景高速、富阳高铁站、富阳高铁西站(在建)等。

【周边配套】

毗邻黄公望金融小镇、眺望云栖小镇;西傍千亩富春山居高尔夫球场/酒店,东依首创奥特莱斯,南临亚运会水上运动中心,融繁华于山水,赋璀璨于天地。

【新品介绍】

1、整体规划:

六期三区块位于项目西南侧,为全项目最后一期,容积率约0.508,共157套院墅。

2、建筑风格:

延续三四五期“东南亚+中式”独有的经典建筑风格,白洞石石材立面,自然厚重,与环境融为一体。布局通风置景俱佳的大面积落地玻璃门窗,将纯粹的自然感与院落的尊贵感紧密糅合,达到天地人和的高度统一。

3、景观亮点:

①两溪一湖:6期收官组团借景自然,两溪一湖构成项目天然水系优势。

②三大主题:“溪、林、山”三大主题,构成项目富有变化的景观组团。

③归家仪式:高差筑台、端景错落、现代门头,打造度假感与仪式感兼具的归家动线。

4、精工亮点:

①2022大师特别作品:李益中“东方情境下的都会混搭”风格。东方基调与都会奢雅兼备,不失设计感与时尚感。

②质重材料:地上地面云朵拉灰大理石、墙面多使用木饰面感塑造豪宅仪式感;高奢酒店风卫生间,打造度假居住体验。

③国际顶奢豪宅品牌:全套BOSCH厨电、BLANCO水槽和可拉伸龙头。主卫洁具五金选用劳芬+当代。品质生活,雅奢享受。

【项目户型】

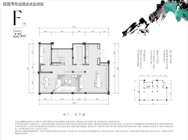
【F户型】

建筑面积约225㎡ 、4厅4卧4卫

【G户型】

建筑面积约207㎡、4厅4卧4卫

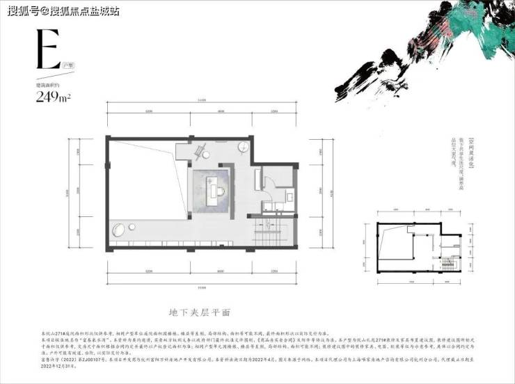
【E户型】

建筑面积约249㎡、4厅4卧5卫

杭州富阳区万科公望售楼处电话☎📞📱:400-000-0460转8888

我们以客户为中心,用心服务,只为让您拥有一个满意的家。

温馨提示:来访需提前两小时预约,以免直接参观无销售接待!

声明:本文由入驻焦点开放平台的作者撰写,除焦点官方账号外,观点仅代表作者本人,不代表焦点立场。