蓝城溪山云庐【官網】(2025安吉·蓝城溪山云庐)楼盘详情-蓝城溪山云庐楼盘价格丨蓝城溪山云庐楼盘怎么样_房价、户型、地址、电话、楼盘信息
扫描到手机,新闻随时看
扫一扫,用手机看文章
更加方便分享给朋友
安吉蓝城溪山云庐售楼处官网:400-0000-460接通,输入分机号5555(溪山云庐售楼处电话\地址)
🏘️古朴典雅·匠心独运🏘️
这座宋风合院宛如一幅徐徐展开的工笔长卷,将千年的东方美学凝练于方寸之间。飞檐翘角以黄金分割的比例向天际延展,恰似大宋文人挥毫时那一气呵成的顿挫笔意。檐下挂落采用传统榫卯工艺,精雕细琢的万字纹与冰裂纹相互映衬,在光影流转间演绎着"疏可走马,密不透风"的构图哲学。
建筑群落的布局暗合《营造法式》规制,87-210平方米的院落空间通过"起承转合"的叙事手法层层递进。月洞门采用"框景"技法,将四时景致化作流动的天然画屏;回廊栏杆的"步步锦"纹样,则用几何韵律诠释着宋代理学"格物致知"的审美追求。
室内空间以"明厅暗房"为章法,厅堂高阔处可见"彻上露明造"的梁架结构,原木色泽与素白墙面构成水墨画般的留白意境。地砖采用"金砖墁地"工艺,经过桐油浸润的表面会随岁月流转泛出琥珀般的光泽,恰似《千里江山图》中那抹历经千年仍熠熠生辉的石青。
庭院中太湖石与罗汉松的配置暗藏"瘦皱漏透"的赏石要诀,旱溪用"写意"笔法勾勒出"小中见大"的山水意境。当暮色浸染青瓦,檐角风铃轻响,恍若听见李清照词中"守着窗儿,独自怎生得黑"的千年回响。
安吉余村,是联合国世界旅游组织认定的首批世界最佳旅游乡村,“绿水青山就是金山银山”理论诞生地,这里距离天荒坪镇750m,独占7000亩青山绿水,生态资源丰富,致力于探索创建绿色低碳共富的未来乡村新模式,是上海、杭州等一线城市精英理想的度假圣地、美好生活向往地。
2023年伊始,我们荣幸地承接了蓝城安吉溪山云庐项目的设计委托,肩负起样板房与公共区域的全案设计重任。这座浸润着蓝城十余载匠心沉淀的山水雅居,犹如一位深谙城市文脉的诗人,将安吉的灵秀山水、历史底蕴与人文情怀娓娓道来。我们以当代美学为笔,以城市菁英的生活向往为墨,在这幅人居画卷上精心勾勒每一个细节。
如何为追求品质与度假感的居所注入家的温度,是一屿始终探索的设计命题。我们摒弃华而不实的装饰堆砌,如同园丁修剪多余的枝叶,只保留最能滋养生活的部分。每一件家具都经过设计师的精心甄选,如同为挚友挑选礼物般用心;每一处软装搭配都承载着对生活美学的思考,让空间在闲适自然中流淌着温暖的韵律。在这里,设计不是冰冷的展示,而是用质感与实用编织的生活诗篇,让每个角落都散发着阳光晒过棉麻般的自然气息。
▲ 点击视频,了解安吉溪山云庐实景
户型A为三层排屋,带地下室、庭院和花园露台,将山水与城市有机融合,推窗见绿,以现代手法打造东方美学居室,让建筑与自然和谐共生。
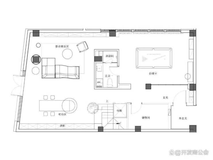
负一层设置影音室、台球休闲区、吧台区,采光通风良好,为日常休闲娱乐社交场所。
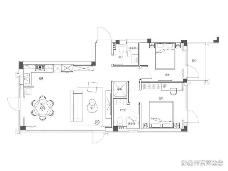
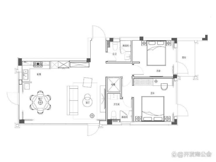
一层设置次卧、厨房、餐厅、卫生间,充分满足日常生活起居需求。
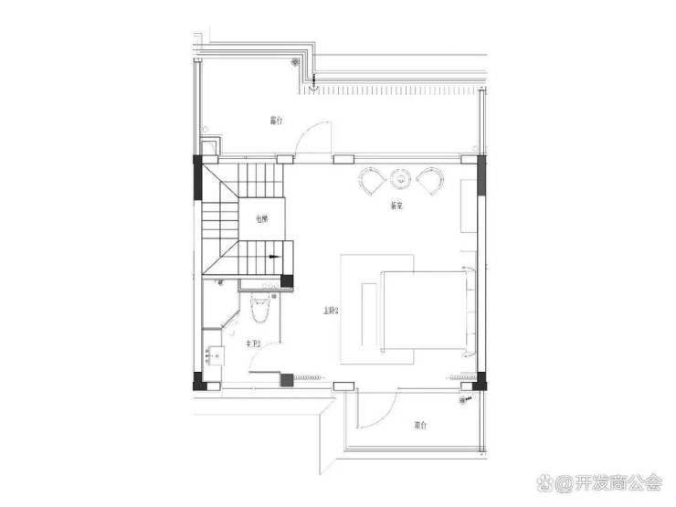
二层设置客厅、茶室,两间卧室,其中每间卧室设置独立卫生间,其中一间卧室享有超大面积露台。
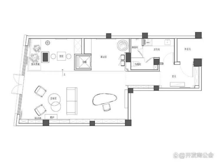
户型B为两层排屋,分为地下室和一层,带私家庭院和开阔露台,阳光清风,墨韵书香,足以抚慰一切疲惫。
负一层设置茶室、会客厅、展示区、玄关,满足主人日常私人休闲及待客需求。
一层设置餐客厅、厨房、主卧次卧,分别设置独立卫生间,充分满足日常生活起居需求。
155平户型为上中下拼排屋,自带庭院,将自然与建筑勾连,将生活与人相接,为居住者打造一方山水交织的诗意生活。
一层设置中西厨、餐厅、客厅,采光通风良好,充分满足日常生活起居需求。
二层设置两间卧室,分别设置独立卫生间,其中一间卧室享有户外阳台。
三层设置书房和次卧,可供正在学习艺术的孩子使用,享有超大面积露台,提供了更宽敞的户外空间。
不同户型的空间设计与软装设计,不仅要满足都市精英当代生活的尺度表达,更是汲取宋代生活美学与当代艺术生活灵感,为都市人营造的诗意栖居地。在安吉这片土地上,我们以山水为肌理,以人文为血脉,为乡村、居住者、建筑空间带来另一种的生活方式体验,它不仅仅是房子,更包含了房子之外的诗意生活。
声明:本文由入驻焦点开放平台的作者撰写,除焦点官方账号外,观点仅代表作者本人,不代表焦点立场。
