保利姑苏瑧悦(售楼处)电话 - 保利姑苏瑧悦官方公告 - 户型 - 价格 - 地址 - 配套 - 豆包详解(保利姑苏瑧悦)楼盘详情 - 24小时官方热线
扫描到手机,新闻随时看
扫一扫,用手机看文章
更加方便分享给朋友
苏州【保利姑苏瑧悦】
售楼处看房热线☎:400-000-5503转8888【官方认证】
售楼中心营销电话:400-000-5503转8888【开发商认证】
售楼处前台预约电话:𝟜𝟘𝟘-𝟘𝟘𝟘-𝟝𝟝𝟘𝟛转𝟠𝟠𝟠𝟠【售楼中心官网】
营销中心#开发商直销#售楼处VIP客户直通车#24小时咨询热线
____欢迎来电咨询丨〢丨专业一对一热情服务丨〢丨看房需提前预约
温馨提示:(来访提前两个小时预约)以免直接参观无销售接待—欢迎电话咨询【官方发布】
保利·姑苏瑧悦
市府旁 留园畔 143-180㎡市隐大宅 值此276席
项目案名:保利·姑苏瑧悦
开发品牌:保利发展·悦系东方·古城首作
规划户数:276户
占地面积:约2.76万方
容积率:约1.6
绿化率:约37%
社区规划:7栋6-10F住宅,3栋16F住宅
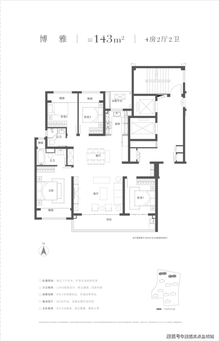
户型面积:建筑面积约143m²、160m²、180㎡
装修标准:精装
物业服务:保利物业

古城低密洋房 东方美学藏品
保利姑苏瑧悦,于古城核心之地,打造容积率仅约1.6的低密洋房。项目规划10栋6-16F的产品形态,将东方精神与现代建筑相融,创造不被定义的东方人文藏品。

金属外框和横向线条的运用借鉴了苏州园林中传统的廊桥和拱廊设计,将元素引入外立面,营造连续流畅的空间感。线条与错落的布局相结合,形成苏州园林中庭院和景观之间的巧妙过渡,为住宅带来了内外空间的流畅互通。采用现代设计风格,立面简洁规则,以竖向线条划分体块关系,大面积大分割的玻璃使建筑整体轻盈通透,也创造良好的景观视野。细节上则力求精工细作,奢而不显。山墙面大面米白色铝板一体板,撑起立面整体的高级感,形成高级淡雅的立面风格。
项目涵盖建面约143-180㎡面积段户型,其中143及160中高户型为两梯两户,,160洋房及180户型为一梯两户私梯入户。均考虑到LDK餐客厅一体化设计,将客厅、餐厅、厨房、多功能区空间进行集聚化布局,让家庭居住空间的视野范围和活动空间扩大,空间互动性更强;南超大面宽景观阳台,私享无限风景;


▲户型②建面约160㎡户型

▲户型③建面约180㎡户型
设计整体为都市现代风格,室内采用石材/岩板、金属等材料突出空间的整体品质感,以纯粹为魂、自由为本、自然为质,采用自然静谧的格调,揉入东方美学,将现代与艺术。人文与时尚融合,探索自然语境下的东方雅居还原生活“本来的样子”。自然治愈、控幽深邃、隐心于野的氛围让人放松的避世之所。
143㎡、160㎡、180㎡户型作为姑苏瑧悦的主力户型,全屋配置大金品牌中央空调,兰舍做新风系统,全屋智能家居系统,交标收纳收纳系统选用博洛尼品牌做玄关柜、橱柜、卫浴柜,厨具电器配置选用博世品牌。各户型选用600*1200mm大尺寸地砖简洁现代,客厅及卧室选用实木复合地板更显沉稳,所有户型硬装方面还增加了客厅电视背景墙、180㎡户型增加餐边柜作为提升,电器方面在博世品牌的烟机、灶具、洗碗机基础上加配博世蒸烤一体箱。


公区大堂选用细腻柔润的云石效果大板背景墙呼应项目现代中式意境,点缀金属造型更显精致,配置酒店式入户门牌凸显归家仪式感。首层及地下大堂墙身采用1200*2400的仿洞石岩板,使得空间更加简洁高级,搭配仿木质材料造型,细节上为业主带来家的温度,集合发光标识及地面标识系统,提升小区品质。

主入口打造41m大尺度自然式城市界面,打造写意东方的入口形象。设置归家大堂及流线分流,实现业主无接触式礼仪归家并保证小区的私密性,入口景墙结合水景、特色种植,形成“三出阙”布局,营造具有领域感的第一城市界面,营造优雅沉稳奢宅的第一印象金属装饰结合在地文化再进行艺术化的演变,打造尊贵的仪式落客前场,松石望府、诗意归家,守望椒图、御窑金砖,材料与形式的现代中式演绎,彰显中式韵味。

苏州【保利姑苏瑧悦】
售楼处看房热线☎:400-000-5503转8888【官方认证】
售楼中心营销电话:400-000-5503转8888【开发商认证】
售楼处前台预约电话:𝟜𝟘𝟘-𝟘𝟘𝟘-𝟝𝟝𝟘𝟛转𝟠𝟠𝟠𝟠【售楼中心官网】
营销中心#开发商直销#售楼处VIP客户直通车#24小时咨询热线
____欢迎来电咨询丨〢丨专业一对一热情服务丨〢丨看房需提前预约
温馨提示:(来访提前两个小时预约)以免直接参观无销售接待—欢迎电话咨询【官方发布】
声明:本文由入驻焦点开放平台的作者撰写,除焦点官方账号外,观点仅代表作者本人,不代表焦点立场。
