越秀外滩樾-上海越秀外滩樾楼盘详情-上海房天下
扫描到手机,新闻随时看
扫一扫,用手机看文章
更加方便分享给朋友
端午节的由来

据说,端午节吃粽子和赛龙舟的习俗,是为了纪念我国历史上伟大的诗人屈原,也正是因为如此新中国成立后曾把端午节定名为“诗人节”。
屈原是中国最伟大的浪漫主义诗人之一,也是我国已知最早的著名诗人,世界文化名人。他创立了“楚辞”这种文体,也开创了“香草美人”的传统。代表作品有《离骚》《九歌》等。
在我国历史上,端午节是为了纪念屈原的说法已经有1500多年的历史了。相传,屈原投汨罗江后,当地百姓闻讯马上划船捞救,一直行至洞庭湖,始终不见屈原的尸体。那时,恰逢雨天,湖面上的小舟一起汇集在岸边的亭子旁。当人们得知是为了打捞贤臣屈大夫时,再次冒雨出动,争相划进茫茫的洞庭湖。为了寄托哀思,人们荡舟江河之上,此后才逐渐发展成为龙舟竞赛。百姓们又怕江河里的鱼吃掉他的身体,就纷纷回家拿来米团投入江中,以免鱼虾糟蹋屈原的尸体,后来就成了吃粽子的习俗。
在上海虹口区,一座顶级高端别墅项目——越秀外滩樾横空出世,重新定义奢华居住体验!
核心地段,稀世之选
越秀外滩樾傲踞虹口北外滩核心区,与外滩商圈直线距离仅约1公里,周边北外滩、四川北路、瑞虹新城三大商圈环伺,尽享陆家嘴、外滩、北外滩“黄金三角”顶级资源。
这里是城市的核心,是财富与繁华的汇聚之地!作为内环内罕见的纯墅社区,容积率仅1.3,规划仅49栋双拼、三拼及多联排别墅,稀缺性不言而喻。
由越秀地产与临港集团两大实力巨头联合开发,70年产权住宅,品质与保障双重加持。
奢华户型,价格彰显价值
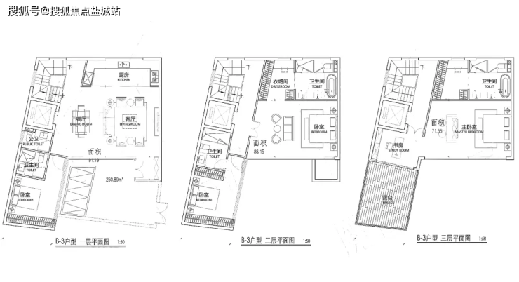
建面约238 - 338㎡的主力双拼、三拼别墅,毛坯交付,为您打造个性化的专属空间。总价约4000万 - 9000万元。
【越秀·外滩樾】项目将呈现48套低密风貌里弄住宅,建筑面积约238-338㎡户型。户型图过程稿如下(过程稿仅供参考,最终以实际为准)。




独特优势,无可比拟
稀缺设计,创新典范
上海风貌别墅审批可能暂停,已获批项目本就稀少,而越秀外滩樾更是其中的孤品!它突破传统风貌规制,大窗墙比、大开间设计,大幅提升居住舒适度。
声明:本文由入驻焦点开放平台的作者撰写,除焦点官方账号外,观点仅代表作者本人,不代表焦点立场。
