2026长沙(鑫远紫樾府| 紫樾府售楼处电话)首页网站-楼盘详情-鑫远紫樾府售楼处欢迎您-楼盘测评-户型配套
扫描到手机,新闻随时看
扫一扫,用手机看文章
更加方便分享给朋友
长沙鑫远紫樾府
鑫远紫樾府售楼处电话☎:400-000-5503转2222【售楼处已认证】
长沙鑫远紫樾府营销中心电话☎:400-000-5503转2222【营销中心已认证】
长沙鑫远紫樾府开发商售楼电话☎:400-000-5503转2222【开发商已认证】
长沙鑫远紫樾府位于天心区省府板块核心,主打纯粹大平层改善产品,是区域内稀缺的低密高端住宅项目。
林隐城央,奢映自然:湖南长沙鑫远紫樾府
在长沙省府板块这一核心区位,我们不仅是要在打造建筑,更需回应城市文脉、土地价值与高阶人群的生活理想。
作为鑫远集团“府系”的迭代之作,紫樾府并非简单地矗立于省府中轴之畔,而是在城市繁华的肌理中,精心预留了一片让自然得以“生长”的空隙。13栋高层与4栋洋房错动布局,以北高南低的天际线顺应日光轨迹和城市景观肌理。我们对场地的让渡以及对西南坡地的保留,使得湘府文化公园的自然景观渗透进内部庭院。
高净值人群对“隐奢、效率、艺术”的复合诉求越来越高,我们需要设计足够好的空间去将理想的生活场景逐步装载进未来的生活。首先展现圈层归属感的:酒店式归家门厅,9米高古铜森林大门,设计灵感源于第一次到文化公园里考察场地看到的自然的森林,我们用古铜不锈钢塑造了这座艺术之门,如树木般生机勃勃,不断发展向好的寓意。
生活场景的营造,根植于对“自然栖居”本质的深刻理解。在紫樾府,我们摒弃了浮华的堆砌,转而向森林的内在秩序与灵动力量寻求答案。由怡境打造的浮岛森林式下沉庭院:以叠瀑、台地造景,形成“山下有院”的立体山水;负一层的全景观瀑会所围绕着下沉庭院展开,多层级的景观渗透,将多元化的生活场景扎根进森林的呼吸中。
省府片区加上文化公园的气质是安静的,所以在立面处理上我们做的极为简洁,克制,水平的金属线条去展现“阔”的感受,不单是在视觉上同时也是指的生活哲学上。整体能给人一种静谧感,有一种处变不惊稳坐泰山的实力,立面设计以“金缕飞线”勾勒塔冠轮廓,体现一定的礼制韵味;公建化玻璃与古铜铝板的组合,则体现一种精致的低调奢华。
我们不仅营造建筑,更在培育一片会生长的森林,城市与自然不再对立,而在精妙设计中达成永恒和解。
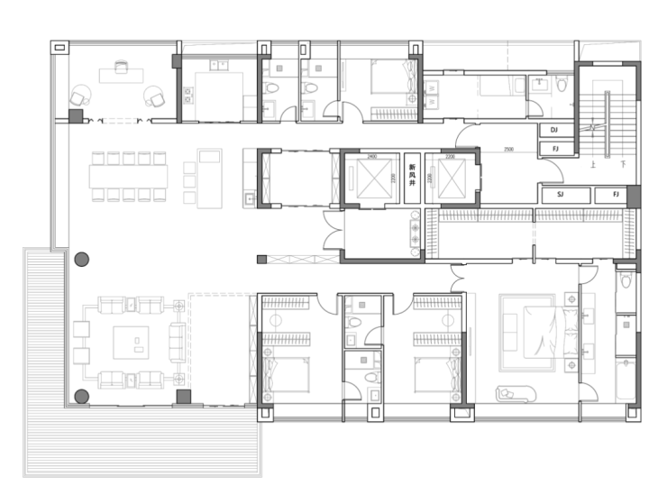
与西侧景观轴的关系成为我们考量规划和户型产品的重点,紧邻西侧景观轴的一面,建筑北高南低,给东侧也留有一定的观赏视野。靠公园一侧户型采用端厅设计,让景观能270°包裹整个厅堂。我们摒弃小户型适配逻辑,将起步面积定为180㎡,所有户型产品做到端厅或南北竖厅,双面宽甚至三面宽的景观阳台,最大程度地将中轴景观带的绿色引入每一位业主的生活场景中。远超长沙豪宅标准的3.6m层高顶配410㎡洋房产品,一户一层,确保社区圈层纯粹性,提高户均面积减少户数,既保持了这片稀缺土地的品质,圈层享有更好的景观。



长沙鑫远紫樾府项目以城市典藏土地基石,通过低密纯粹圈层、自然人文凝练的现代建筑语汇,打造全龄高阶生活场景的精准落位,实现“省府精神”与“顶豪生活” 精神共鸣的升维。
长沙鑫远紫樾府
鑫远紫樾府售楼处电话☎:400-000-5503转2222【售楼处已认证】
长沙鑫远紫樾府营销中心电话☎:400-000-5503转2222【营销中心已认证】
长沙鑫远紫樾府开发商售楼电话☎:400-000-5503转2222【开发商已认证】
声明:本文由入驻焦点开放平台的作者撰写,除焦点官方账号外,观点仅代表作者本人,不代表焦点立场。
