宜兴路通·梅林府(宜兴路通·梅林府)售楼处电话-楼盘百科详情→24小时热线电话-(宜兴路通·梅林府)售楼部地址-楼盘详情-首页网站→基础参数
扫描到手机,新闻随时看
扫一扫,用手机看文章
更加方便分享给朋友
宜兴路通·梅林府
售楼处预约中心电话:400-000-0460转6999【天眼查认证】
预约来电尊享内部优惠,开发商案场销售一对一热情服务,提前24小时预约,看房不收取任何费用!
Sales Office reservation center: 400-000-0460转6999 Make an appointment to enjoy the internal benefits, the developer's case sales one-to-one warm service, do not charge any fees to see the house!
路通地产 | 路通·梅林府「MEILIN MANSION」
梅林中轴 跨时代联排院墅
项目最新动态
售楼处&实景示范区&实景样板间已开放
项目概况
三国企联袂 实力筑章
国企开发
路通地产(宜兴市交通能源集团全资子公司),秉承着“为宜兴造好房”的品牌理念,以“造城者”之姿,制定宜兴高端人居版图;宜兴市交通能源集团,成立于2017年,始终坚持党建引领,紧扣交通工程建设、新能源应用、现代运输物流、房地产开发四大主业;
国企建设
华仁建设,深耕建筑行业40余载,布局全国,曾铸就宜兴人民政府大楼、八佰伴商业地标等城市丰碑;
国企物业
陶都路通物业,依托于服务高铁站前区、新能源大厦的政务级标准管理经验,构建"全生命周期服务体系"。
梅林中轴 繁华帷幄
交通主脉:项目位于宜浦路67号,紧扼东氿大道、范蠡大道等交通主干道;临近锡宜S2线龙潭路站(在建);快速通达沪宜高速、长深高速及宜兴高铁枢纽;
立踞商圈:万达、八佰伴等商圈环伺/项目自带约1400㎡社区商业;
文教鼎盛:5公里内菁英优教资源汇聚,助力成长无忧;市政中心/东氿文化中心等文政资源汇聚,涵养人文底蕴;
繁盛自然:南靠龙背山,北享东氿湖,自然资源得天独厚;毗邻梅林公园、青墩公园等,共筑诗意栖居;
大师镌迹 执墨山河
GOA大象设计(总建筑设计):拥有逾25年全球建筑设计经验,累计荣获500多项国际大奖。此次执笔梅林府,历时800+日夜钻研东方美学精髓,经过200+稿摹方案推敲打磨,以精工之笔,重构人居美学高度;
北京顺景园林(园林设计):拥有国家风景园林工程设计专项甲级资质,逾19年匠心沉淀,聚焦于园林景观的诗意营造。此次执绘梅林府,以现代工法重构宋式山水格局,成就当代园林典范。
行望山河 游居梅林府
行 礼序之章
【中轴为魂·龙脉为骨·礼序为韵】,项目以中轴对称淬炼皇家礼序,南北主轴贯穿五进式归家仪典;东西对称形制,形成"一街八巷"的空间布局,暗合儒家“致中和"的哲思;
望 无界之观
以中轴延伸至观景台,以山为原点无限眺望,坐、立、行、卧,俯仰间百态逸观;
游 秘境寻真
以“烟雨阳羡,梅林山居”为设计脉络,打造“一环二轴十二园”宋式立体园林景观。给予居者“四季皆有景,景景皆不同”的游园体验,让人居从“住有所居”跃升至“诗意栖居”;
居 逸隐之界
以由外及内的奢阔尺度,空间造诣与匠心独运的设计理念,深刻诠释着舒适生活本质;
约219-391㎡联排别墅,以宋式风骨,对话现代隐奢建筑美学,户户私享前庭后院;巨幕面宽,重构空间格局;通透挑高厅堂,承载天光云影;大气单开间布局,彰显非凡气度;以超越尺度的美学意境,缔造当代名仕阶层的生活境界;
约176-225㎡四代住宅,户户享空中花园庭院,内嵌式设计更具私密性,与约1.8米宽跑道式转角阳台形成围合式空间,私享度假感;约3.15米层高,以远超国家“好房子”标准层高尺度,实现空间效能跃升;
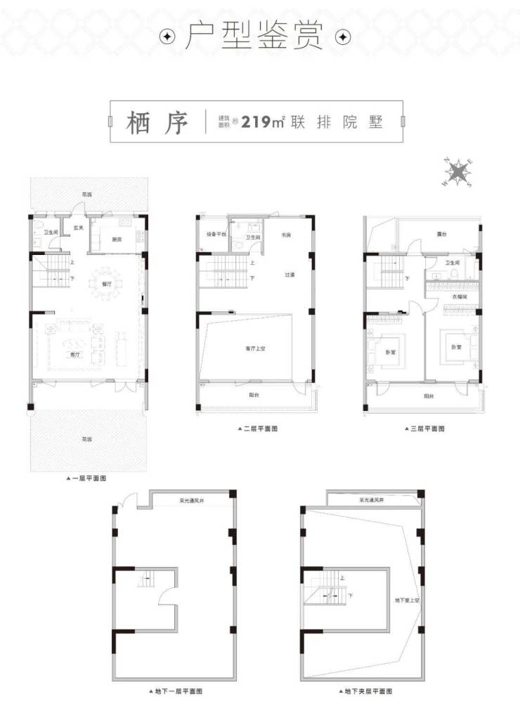
路通·梅林府 首开约225㎡四代住宅;约219㎡/285㎡联排别墅 礼呈东方名仕。
(园林概念图)
(联排别墅立面图)
(空中平墅立面图)
(项目鸟瞰图)
宜兴路通·梅林府
售楼处预约中心电话:400-000-0460转6999【天眼查认证】
预约来电尊享内部优惠,开发商案场销售一对一热情服务,提前24小时预约,看房不收取任何费用!
Sales Office reservation center: 400-000-0460转6999 Make an appointment to enjoy the internal benefits, the developer's case sales one-to-one warm service, do not charge any fees to see the house!
声明:本文由入驻焦点开放平台的作者撰写,除焦点官方账号外,观点仅代表作者本人,不代表焦点立场。
