沄天汇大厦售楼处-拱墅区·沄天汇大厦楼盘详情-杭州楼房网
扫描到手机,新闻随时看
扫一扫,用手机看文章
更加方便分享给朋友
沄天汇大厦售楼处电话𝙑𝙄𝙋𝙇𝙞𝙣𝙚:400-0000-460接通后转9999
沄天汇大厦售楼处电话𝙑𝙄𝙋𝙇𝙞𝙣𝙚:400-0000-460接通后转9999
(温馨提示:看房需提前预约,享受内部优惠,谢谢配合!)
踞守运河湾CBD南大门,周边汇聚高端住宅社区、管家漾码头景观带、龙门架遗址公园以及滨水商业街区等优质配套,构成一个资源丰富、功能完善的商务生态圈。
项目效果图
作为政府重点打造的国际活力区,运河湾CBD通过"一核一带两轴多片区"的顶层设计,构建起工作、生活、休闲无界融合的城市综合体。
这里不仅拥有立体交通网络,毗邻留石高架、上塘高架和水上巴士站点,快速连接全城。同时,音乐公园、文创市集、运动水岸举步可达,商务、文化、休闲在此无缝链接。企业于此落位,不仅是占位城北发展主动脉,更是入驻一个资源环伺、活力充盈的生态系统。
运河湾效果图
视野即战略。
沄天汇以“视野价值”重新定义办公维度。高层单位拥270°环幕景观,俯瞰运河蜿蜒与城市天际线。千年水道舟船往来,寓意企业通江达海、资源流动;南面市政绿化生态降噪林带,营造静谧办公环境。所谓“静音密钥”,正是让企业在都市繁华中,独享一方专注生长的办公环境。
这一视野,不仅是视觉享受,更是企业格局的象征。对内激发团队灵感,提升专注力与创造力;对外昭示企业实力,强化品牌形象与商务信任感。
项目实景图
沄天汇为企业提供的不只是场地,而是“头等舱式”的全维赋能。
空间层面,约300–10000㎡灵活布局,整层至整栋定制,匹配企业全周期需求;资源层面,国企开发运营,对接政策红利、产业生态与高端圈层;同时,低密生态园区、地标级建筑形象、稀缺性无价视野,彰显企业身份与实力。
楼幢分布图

1#标准层平面图

2#平面图

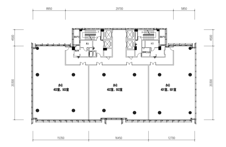
3#标准层平面图
沄天汇大厦不仅是一个办公场所,更是企业抢占运河经济先机的战略选择。在这里,您可以同时享有核心区位的发展红利与静谧森境的工作体验,实现真正意义上的"鱼与熊掌兼得"。
争上游者,当踞上游。沄天汇大厦,敬邀时代企业,共执运河潮向!
沄天汇大厦售楼处电话𝙑𝙄𝙋𝙇𝙞𝙣𝙚:400-0000-460接通后转9999
沄天汇大厦售楼处电话𝙑𝙄𝙋𝙇𝙞𝙣𝙚:400-0000-460接通后转9999
(温馨提示:看房需提前预约,享受内部优惠,谢谢配合!)
声明:本文由入驻焦点开放平台的作者撰写,除焦点官方账号外,观点仅代表作者本人,不代表焦点立场。
