华润置地【杭州中心H23】售楼处电话_杭州中心H23首页网站_杭州中心H23新房评测-24小时电话-最新房价-户型配套-容积率
扫描到手机,新闻随时看
扫一扫,用手机看文章
更加方便分享给朋友
华润置地·杭州中心H23:武林500㎡天际行政公馆!
售楼处官方营销电话:𝟜𝟘𝟘-𝟘𝟘𝟘-𝟝𝟝𝟘𝟛转𝟠𝟠𝟠𝟠【官方认证】
温馨提示:(来访提前一个小时预约)—欢迎电话咨询【售楼处电话】!
华润杭州中心:一梯一户,面积:建面约488-520㎡,总价约8000万左右!产品:天际行政公馆,产权性质:商业40年,交付标准:精装!部分可定制豪装!
杭州中心,一座冠以杭州之名的地标综合体,由华润置地、绿城中国、杭州地铁合作开发。项目位于城市核心的武林商圈,与地铁1号线、3号线武林广场站双轨三层(B2&B1&L1)无缝接驳,区位和交通优势显著。项目拥有南望西湖、北瞰运河的双世界文化遗产恒景,集萃了历史风华与时代雄心,是杭州城市更新的全新作品。
杭州大厦、武林银泰、嘉里中心、国大城市广场等全国顶尖商业集群环绕,成就世界级百亿武林商圈。地铁1号线、3号线武林广场站地铁上盖,华润拿打造了其在杭州定位最高的产品,并命名为杭州中心,其“城市核心”的定位高过钱江新城的万象城,成为杭州华润众多综合楼之巅。

作为一座改写杭州生活方式的垂直综合体,杭州中心通过“奢粹万象定制”的方式,将轨道交通、高端商业、空中花园、四季酒店、国际商办、大平层6大核心功能空间交叠,催生一座24小时垂直都会,实现“足不出楼即享万象”
在整体规划上,杭州中心通过高端商旅服务一体化,推动商务效率提升;通过无缝接驳城市轨道换乘站,实现高效都会切换;通过定制私密的专属领域,让生活心境自在游弋。
杭州中心
500方天际行政公馆
特别是杭州中心首次将高端商业与四季酒店进行「顶格奢配」 ,在繁华精彩和宁静品位的交融之间,创造出一种“万象四季”生活方式。而坐落其间的杭州中心·H23,便可同时兼享两大品牌带来的丰盈体验,完成生活场景的上下延伸,尽情领略这座垂直综合体的缤纷精彩。

在杭州中心·H23的空间示范中,透过国际大师的独特视角和高定设计,建构属于杭州的世界品位先进物业。设计概念源自于杭州的山水意型,在建筑的立面与室内空间构成上呈现古典中国画的“宝石流霞” 、“亭台楼阁”、“西湖水面”,创造诗意,并具有古典韵味的现代商业综合体场所!
作为一场引领城市人居风向的想象力创作,杭州中心·H23主张以“艺术的全域渗透”建立人与生活更深情的链接,以“空间的柔性重塑”包容丰盈生活与社交场景,以“生活的安定自在”为藏家带来日常的自在悦赏,从而展示设计师对“从心悦己”的美妙演绎,使空间更有倾听力和阅读力,容下更多即时的心意。

「杭州中心」B塔私域空间 定制化一户一精装
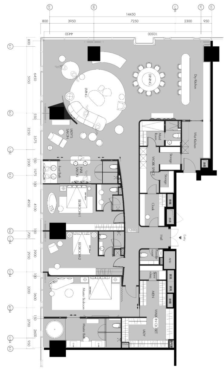
500方天际行政公馆,2梯4户,定制化一户一精装,畅享国内顶尖商业集群之上的中心生活。北向为运河拐角及环球中心,城市感与开阔感强;南面为西湖远景及项目屋顶花园,静谧与惬意感更强;西面为武林广场杭州大厦及国大,夜晚呈现都市夜景。

讲究「心随自然」,厚实温暖的木质和柔软肌理交织,在密与疏的对比中展现优雅的生活氛围。
CCD · WOWU无物艺术回归本源思路,返璞归真、融合自然,以独特的设计语言,打造一处融合自然与现代生活的诗意空间。
暖的木質和柔軟肌理交織,在密與疏的對比中展現優雅的生活氛圍。
项目室内设计由打造过上海汤臣一品、杭州嘉里逸庐等顶豪的日本著名室内设计师渡边智昭、打造过深圳SIC大平层、北京万国府等顶豪的中国著名室内设计师于昭等大师团队打造。avalon collective扛旗的奢装,打造美学新篇,户户高定。




▲平面布置图
放眼杭州大平层市场,如同杭州中心·H23这样同时具备城市核心资源和先进产品空间的项目少之又少!



华润置地·杭州中心H23:武林500㎡天际行政公馆!
售楼处官方营销电话:𝟜𝟘𝟘-𝟘𝟘𝟘-𝟝𝟝𝟘𝟛转𝟠𝟠𝟠𝟠【官方认证】
温馨提示:(来访提前一个小时预约)—欢迎电话咨询【售楼处电话】!
声明:本文由入驻焦点开放平台的作者撰写,除焦点官方账号外,观点仅代表作者本人,不代表焦点立场。
