绿城钱潮湾 楼盘详情-绿城钱潮湾官方网站欢迎您,绿城钱潮湾售楼处电话地址
扫描到手机,新闻随时看
扫一扫,用手机看文章
更加方便分享给朋友
绿城钱潮湾售楼处电话:400-000-5503转接1234(售楼中心)
绿城钱潮湾售楼处电话:400-000-5503转接1234(售楼中心)
绿城钱潮湾售楼处电话:400-000-5503转接1234(售楼中心)
看房请提前预约,为保证客户看房体验,项目样板房只对提前1小时预约看房客户开放。
预约来电尊享购房优惠,可预约案场内部销售人员,专业一对一热情服务,让您用专业眼光去买房。
Sales Office Phone: 400-000-5503 Transfer 1234 (Sales Center)
Please make an appointment in advance to view the property. To ensure the customer's viewing experience, the project model room is only open to customers who make an appointment one hour in advance to view the property.
杭州,从“西湖时代”走向“钱塘江时代”,再到如今的“拥江发展3.0时代”,这座崛起于世界舞台的国际化都市,正展现着它定义未来的城市力量。
地标性的人居产品绿城·杭州钱潮湾位处钱江新城CBD核心区域,临“天下第一潮”钱塘江而立,尽揽一线江景,毗邻钱江三桥,肩负着定义品质生活与刷新城市界面的双重使命。
△ 项目区位
基于过往在核心城市高端豪宅领域的业绩,line+联合创始人、主持建筑师孟凡浩受业主委托主持设计绿城·杭州钱潮湾,以建筑营造赋能城市,以引领性的颜值标准定义城市封面,对话杭州的“亚运会、大都市、现代化”新时代。
“地处沿江一线重要地段,建筑将为这座崛起中的城市注入怎样的能量?我们希望跳出建筑学的既有框架,尝试以充满想象力和创造力的行动,探索建筑的力量,激发城市的潜能,让生活其中的人们看到这座城市的雄心和抱负。”line+主持建筑师孟凡浩说道。
line+以钱塘江为设计思考的起点,建立起由统一的立面肌理单元组成的建筑语言,使建筑形象以指数附加的产品力呈现。
设计提取钱塘江水“潮涌”的动态元素,抽象为独特精美的金色铝板曲面线条,结合大面积的玻璃,勾勒建筑体量的层间关系,交织出极富韵律的纵向线条,以潮水般流动变化的独特气质屹立江岸,又融入钱塘潮水流淌奔涌的历史之中。
钱潮湾是城市D豪公寓,更是每一个房间都看得到风景的“城市观景台”,270度收揽一线江景,壮阔的自然景观与繁华的都市图景渗透进生活的每一个时刻与细节。
基于室内功能、观景体验,生活起居的舒适性、健康、安全等要素考虑,经过多轮材料比对和细节推敲,立面形式完全契合于平面功能,以韵律变化的动态语言构筑契合未来生活需求的城市居住蓝图。

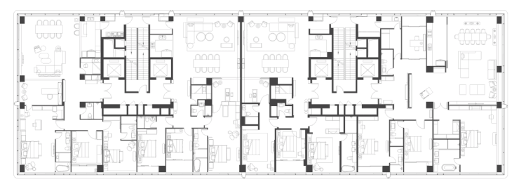
△ 标准层平面 / 顶层平面
在材质与节点的深化上,line+不吝啬对细节的打磨。线条交接处采用预制无缝弯弧的精细化处理,外墙样板、构造节点及材料色彩的选样持续长达将近一年的时间,现场实体挂样更是高达十余次之多,通过对比不同颜色、不同尺寸在各个时间、各种天气的视觉效果,甄选最佳。
绿城钱潮湾售楼处电话:400-000-5503转接1234(售楼中心)
绿城钱潮湾售楼处电话:400-000-5503转接1234(售楼中心)
绿城钱潮湾售楼处电话:400-000-5503转接1234(售楼中心)
看房请提前预约,为保证客户看房体验,项目样板房只对提前1小时预约看房客户开放。
预约来电尊享购房优惠,可预约案场内部销售人员,专业一对一热情服务,让您用专业眼光去买房。
Sales Office Phone: 400-000-5503 Transfer 1234 (Sales Center)
Please make an appointment in advance to view the property. To ensure the customer's viewing experience, the project model room is only open to customers who make an appointment one hour in advance to view the property.
声明:本文由入驻焦点开放平台的作者撰写,除焦点官方账号外,观点仅代表作者本人,不代表焦点立场。
