东方蓝海国际广场售楼处-东方蓝海国际广场楼盘详情-上海房天下-上海焦点看房
扫描到手机,新闻随时看
扫一扫,用手机看文章
更加方便分享给朋友
东方蓝海国际广场售楼处电话:400-000-0460转8888
上海杨浦东方蓝海国际广场售楼处电话:400-000-0460转8888(权威认证)
欢迎来电咨询,专业一对一热情服务,让您用专业眼光去买房。
SANYIYOU
0
1
项目背景
BACKGROUND
●PROJECT BACKGROUND
东方蓝海国际广场由安徽淮南矿业集团下属子公司上海东方蓝海置业有限公司倾力开发,总投资约22亿元。项目的设计由美国三大设计事务所之一的Perkins+Will总设计师Ralph E.Johnson亲自主持,于2013年竣工。
0
2
项目介绍
INTRODUCTION
●PROJECT INTRODUCTION
东方蓝海国际广场位于上海杨浦区五角场商圈中心版块,是一座集甲级办公、创意办公、精装公寓式办公于一体的综合性商务体。项目建筑面积约17万平方米,其中办公面积约10万平方米,商业面积约7万平方米。
项目以其现代化的设计、高端的配置和优质的服务,吸引了众多知名企业入驻。甲级办公楼配备了11米挑高大堂、16部瑞士迅达电梯、VAV中央空调等高端设施,并由国际物业管理公司第一太平戴维斯提供管理服务。商业裙楼则汇聚了餐饮、休闲娱乐、SPA会所、银行等多种业态,为入驻企业和周边居民提供便利的生活服务。
0
3
区位信息
LOCATION
●Location information

东方蓝海国际广场位于杨浦区黄兴路1800号,地铁10号线和18号线国权路站2号口步行约960米即可到达。项目周边商业配套完善,紧邻黄兴公园、九隆坊生活广场、大润发、百安居等大型商业设施。
0
4
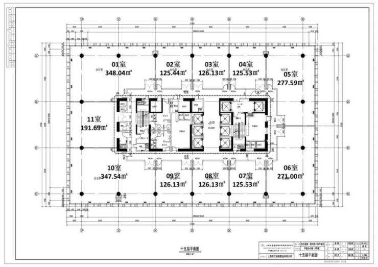
平面图
PLAN
● Plan proposal
0
5
项目参数
PARAMETER
●Parameter information
项目地址:上海市杨浦区黄兴路1800号
开 发 商 :上海东方蓝海置业有限公司
物业公司:第一太平戴维斯
竣工日期:2013年
楼层总高:22层
建筑高度:106米
占地面积:约35,000平方米
总建筑面积:约170,000平方米
办公楼建筑面积:约100,000平方米
商业建筑面积:约70,000平方米
在租面积:43,808.26平方米
整层面积:2,101.95平方米
得 房 率 :约70%
大堂挑高:11米
标准层高:4.2米
净 高:2.8米
交付标准:铝合金吊顶、条形灯带、架空地板、乳膏漆墙面
电梯品牌:瑞士迅达
空调系统:VAV中央空调
空调开放时间:周一至周五8:00-18:00,周六8:00-13:00,法定节假日不开放
停车位数:985个
物业管理费:30.8元/平方米*天(含空调、照明、保洁等)
停车费用:月租800元/位,临时停车半小时免费,每小时7元,每天封顶56元
东方蓝海国际广场售楼处电话:400-000-0460转8888
上海杨浦东方蓝海国际广场售楼处电话:400-000-0460转8888(权威认证)
欢迎来电咨询,专业一对一热情服务,让您用专业眼光去买房。
声明:本文由入驻焦点开放平台的作者撰写,除焦点官方账号外,观点仅代表作者本人,不代表焦点立场。
