广州保利珑玥公馆→最新房价动态全掌握→保利珑玥公馆售楼中心预约电话→百度知道
扫描到手机,新闻随时看
扫一扫,用手机看文章
更加方便分享给朋友
2025广州保利珑玥公馆(保利珑玥公馆| 珑玥公馆售楼处电话)首页网站-楼盘详情-广州保利珑玥公馆售楼处欢迎您-楼盘测评-户型配套
保利珑玥公馆位于白云·地铁14号线钟落潭A出口500米,是一个30万方的成熟大城。由保利携手招商、金茂、中铁建联袂打造 ,品牌实力毋庸置疑。小区绿化面积约50%,超宽楼间距最高达180米,容积率仅2.5% ,是真正的低密舒居。
主力在售74-122㎡三至五房,无论是刚需还是改善,都能找到适合自己的户型。
物业为保利物业,国家一级资质,为业主的生活保驾护航。

项目是地铁上盖,距离地铁14号线钟落潭A出口仅500米 ,乘坐地铁可以快速到达嘉禾望岗,换乘2号线、3号线,畅达广州各区。此外,还有四地铁两城轨规划,未来交通会更加便捷,对于在市区上班的刚需购房者来说,吸引力巨大。
1. 商业配套:1.5公里内就有3大商超,面积相当于1整个天河城,包括庆达广场、人人佳广场,小区还自带了6000方商业街,满足日常生活购物需求。
2. 教育配套:项目配建18班广二师幼儿园,现已开学。周边3公里内覆盖从幼儿园到大学全龄段教育,有钟落潭小学(区一级)、蟠龙小学(区一级)、广州八十一中学(市一级)、广州大同中学(国家级示范性高中) ,教育资源丰富。
虽然有粉丝反馈目前就读的蟠龙小学与对面越白星的金广附相比稍显一般,但近期也有消息称保利珑玥公馆出资5000万商谈白云金广附学校即将官宣,业主子女有机会读9年一贯制金广附中小学 ,这无疑是个重大利好。
医疗配套:目前项目周边有2所甲级医院,700米处规划一所三甲医院,30分钟可抵达广州市第三人民医院、白云区红十字会医院、白云区中医院 ,为家人的健康提供保障。
户型设计合理:74方/76方三房做到真两卫,小户型也能给生活最大尊重,早上起床不用抢厕所;四面宽采光,5.5米超大阳台,餐客厅飘窗赠送,采光更优。
高使用率:整体户型的使用率超高,在同类型产品中具有很大优势,让购房者花同样的钱,能享受到更多的空间。
△ 建面【约74㎡ 三房两卫】
△ 建面【约76㎡ 三房两卫】
△ 建面【约82㎡ 三房两卫】
四开间全朝南,11.4米全南向采光面,主卧套间设计,南北通透,约6米长超大阳台,270°观景视野 ,近可观中央大园林,远可望帽峰山层峦叠嶂。
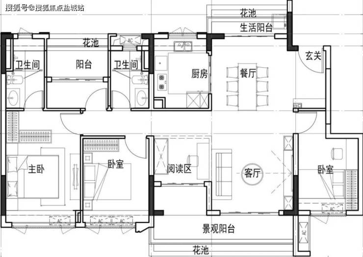
△ 建面【约122㎡ 五房二卫】
经典竖厅结构,动静分离合理分区;
五开间朝南,整体可实现南北通透;
南北双阳台设计,通风对流效果佳且生活、观景两不误;
景观阳台近6米长,提供充足的室外活动空间;
户型动线流畅,匹配大多数人的生活习惯;
百变户型,阳台可并入次卧、阅读区可并入客厅,空间感更强;
厨房直面餐厅,可和家人进行互动,生活感更强;
次卧和厕所隔开对门,注意到生活中每个小细节 。
声明:本文由入驻焦点开放平台的作者撰写,除焦点官方账号外,观点仅代表作者本人,不代表焦点立场。
