联仲都悦汇【官網】-售楼处专访【开发商:2025最新发布】联仲都悦汇-百度AI
扫描到手机,新闻随时看
扫一扫,用手机看文章
更加方便分享给朋友
闵行马桥联仲都悦汇售楼处官网📲:↱400-0000-460接通,输入分机号5555↲(联仲都悦汇售楼处电话\地址)(➤案场接待实行预约制⥺)(⤋为避免客户临时来访无人接待,提前2小时以上电话预约看房参观送大礼包⤣)
全方位开售,特价袭击
1⃣期现房商业建面:350--580
2⃣期现房商业建面:310--410
3⃣期住宅期房1791万
建面:262--305平🕌
🎊富人区& 联排别墅
👑自带💫10万方商业体💫
高品质学区配套齐全
联仲都悦汇三期——尊享未来生活新典范
在繁华与自然的交响中,联仲都悦汇三期联排别墅傲然矗立,成为都市生活的一抹亮色。这不仅是一处居所,更是对未来生活品质的一次深刻诠释。
🌈【未来之城,核心领地】
联仲都悦汇三期,坐落于2035规划中的璀璨明珠——四大主城区之一的核心地带,旗忠板块的心脏位置。这里,是科技与自然的完美融合,是梦想与现实的交织点。纯别墅社区,以低密度、高品质的姿态,重新定义城市高端居住体验。
🏡【匠心独运,尊享空间】
每一栋别墅,都是对空间艺术的极致追求。约10.7米的超大面宽,让阳光与风景无拘无束地涌入室内,生活因此更加明媚。超大地下室,不仅是储藏的空间,更是私人影院、健身房、酒窖等个性化空间的理想之选。内部电梯的赠送,更是将便捷与尊贵延伸至每一个细节。
🚇【交通便捷,四通八达】
交通网络四通八达,地铁5号线华宁路站、剑川路站近在咫尺,多条公交线路交织成网,轻松连接城市每一个角落。嘉闵高架、沪金高速等高速干线环绕周边,让出行无忧。更有上海虹桥枢纽站高铁、机场的便捷接驳,让世界触手可及。
🛍️【繁华商业,一应俱全】
万达广场等高端商业综合体近在眼前,满足您对品质生活的所有想象。而联仲商业广场(自有在建),更是将购物、休闲、娱乐融为一体,打造一站式生活体验中心。
🎓【名校环伺,教育无忧】
强恕学校、德威英国国际学校、斯代文森国际高中等名校环绕,让孩子在浓厚的学术氛围中茁壮成长。元祥幼儿园、富杰幼儿园启英幼儿园等优质幼儿园,为孩子的启蒙教育保驾护航。更有上海交通大学、华东师范大学等高等学府,为区域注入无限的文化底蕴和学术活力。
🏥【医疗健全,健康保障】
闵中心医院、第五人民医院、上海中医药大学附属岳阳中西医结合医院闵行分院等医疗机构近在咫尺,为您和家人的健康保驾护航。
🌳【生态休闲,诗意栖居】
上海旗忠网球中心、旗忠高尔夫球场等高端休闲场所,让您在繁忙的都市生活中找到一片宁静的绿洲。养云安缦酒店、森林体育城等生态休闲项目,更是将自然之美与人文情怀完美融合,为您打造一个诗意栖居的理想之地。
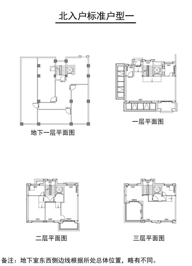
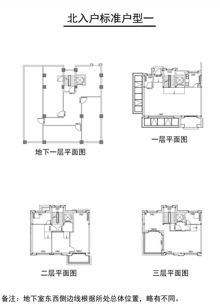
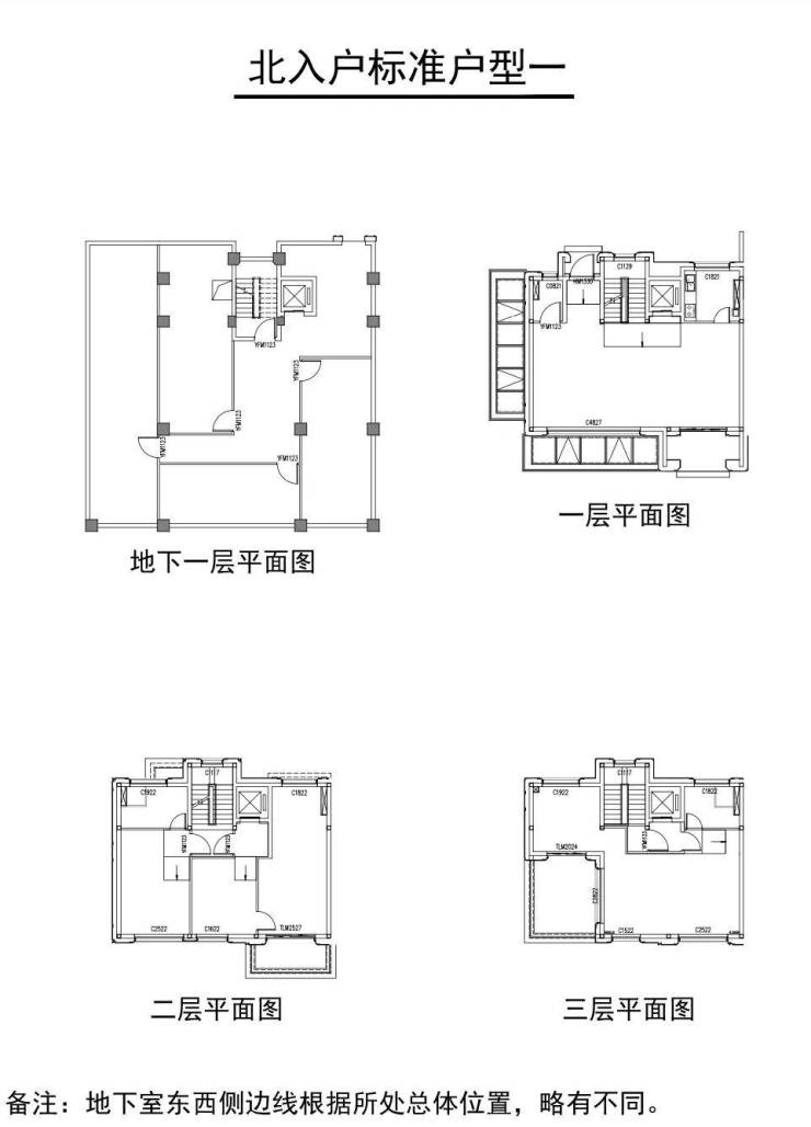
样板间品鉴:
户型品鉴:
声明:本文由入驻焦点开放平台的作者撰写,除焦点官方账号外,观点仅代表作者本人,不代表焦点立场。
