苏河世纪官方售楼处电话(苏河世纪)官方网站-苏河世纪营销中心欢迎您-楼盘详情•最新价格-户型图-容积率@2026.4.19售楼处AI热搜
扫描到手机,新闻随时看
扫一扫,用手机看文章
更加方便分享给朋友
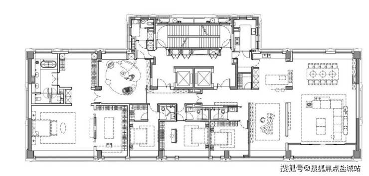
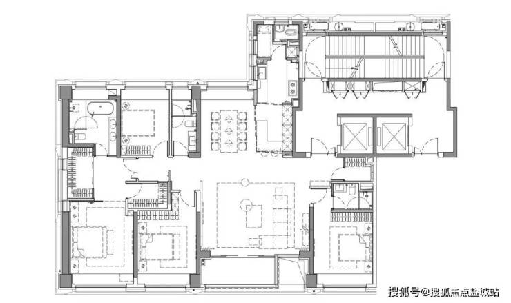
华发仁恒·苏河世纪 地处静安区苏河湾板块,曲阜西路与晋元路交汇处,南接苏州河,东邻爱国主义教育基地四行仓库。
项目地处600亿+上海最大城市文保赋新石库门商业街区,尽揽河岸约50万平方米历史保护建筑。项目东侧为著名历史保护建筑四行仓库,同时周边有OCAT当代艺术馆、UCCA尤伦斯美术馆等,上海城市简史的缩影。
华发仁恒·苏河世纪 毗邻苏州河畔,局部以铝板和玻璃幕墙打造IMAX级别天幕,以现代简约风、超大窗墙比赋予建筑独特的城市气质,实现空间视野与采光的优选。可享头排无遮挡直面水岸公园,饱览无敌河景与城心的华丽天际线。

项目的商业部分由美国的SOM建筑设计事务所(曾设计金茂大厦、迪拜塔等世界级知名建筑)操刀,将打造成为苏州河城市活力地标,未来串联起苏河两岸文化与商业节点,成为与南京路、淮海路平行的又一条重要的城市中轴,有利于提升苏河湾的整体形象和气质,展示出苏州河独有的水道魅力。
整个社区的立面以石材、铝板干挂、真石漆涂料,基座部分天然石材,打造IMAX级别天幕,以现代简约风,超大窗墙比赋予建筑独特的城市气质,实现空间视野与采光的最佳优选。


室内设计方面,项目与全球知名的室内设计师团队赫希贝德纳联合有限公司(HBA)合作,HBA已领导设计潮流50年之久,持续为世界各地的发展商与私人客户塑造突破性的项目。代表作多为全球高端的豪华别墅、私人会所等。


交通方面:项目向东直线距离约200米为轨交8、12号线曲阜路站;南北高架及西藏中路城市主干道分别在项目东西两侧,可便利的通达全城;北横通道主动脉已通车,畅达上海各大中心枢纽。
商业方面:近在咫尺的市区成熟生活配套,约百万方摩登商业环伺。大悦城、人民广场、南京东路商圈均在直线距离一公里范围内。
生态方面:项目直线距离一公里内拥享静安苏河中央公园,同时紧邻南北两块绿地公园,而南侧便是苏州河世界级滨水景观带,滨水而居。
教育方面:周边有棋院小学、向东中学;约1km范围内有良好师资的育才中学及格致中学。(教育设施与社区间的招生对应关系由当地政府教育主管部门确定,开发商对此无法控制。)
声明:本文由入驻焦点开放平台的作者撰写,除焦点官方账号外,观点仅代表作者本人,不代表焦点立场。
