蓝城英冠滨悦城(蓝城英冠滨悦城)首页网站-2024杭州蓝城英冠滨悦城楼盘详情-户型价格!

搜狐焦点盐城站 2025-01-04 11:18:34
用手机看
扫描到手机,新闻随时看

扫一扫,用手机看文章
更加方便分享给朋友

杭州滨江区蓝城英冠滨悦城售楼处电话☎📞📱:400-000-0460转8888

杭州滨江区蓝城英冠滨悦城售楼处电话☎📞📱:400-000-0460转8888

我们以客户为中心,用心服务,只为让您拥有一个满意的家。

温馨提示:来访需提前两小时预约,以免直接参观无销售接待!

国际滨江芯·一层一境界

300㎡/480㎡时代资产

实景臻境 静待君临

【项目概况】

项目位置:滨江区国慷街与信诚路交叉口

总建筑面积:117080㎡

占地面积:22687㎡

容积率:3.5

绿地率:25%

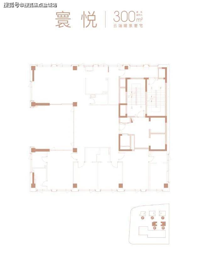
面积:300/480㎡

物业形态:5幢12-28层的高层公馆、1幢六星级写字楼以及1幢5层10300㎡的商业配套组成的综合体项目

总规划户数:104户

【项目亮点】

●约300米钱塘江岸|零距离闻涛路樱花大道|公园环抱|云山在望|尽揽钱江新城繁华

●直线距离约700米地铁6号线建业路站&诚业路站

●约500米宝龙广场|5大商圈环伺

●翠景围合布局|三庭四院景观

●金镶玉油画框显赫立面

●一层一户|独门独户|双梯直达

●户户赠享约40㎡空中花园

●360°寰幕视野|侈度空间|行政级休憩空间

●意大利GARDESA装甲入户门

●奢派精装标准|德系高端精装品牌|12种进口石材|全屋智能系统

●蓝城&英冠双强出品|高星级酒店式服务

●臻品现房 实景交付|精工品质 眼见为实

【区位】

国际滨江 拥江亚运前沿

钱塘江时代:从西湖时代到钱塘江时代,杭州重回世界大都会版图,铺展宏伟的时代蓝图,项目位领钱江南岸,钱塘江大桥和复兴大桥之间,目睹窗外城市雄心和国家战略交汇出的奇迹。

风华国际滨:拥江发展战略x“亚运会倒计时”双重加持,“国际滨”风华正茂,正式列席全球舞台,它是面向全国的自主创新策源地、数字经济与应用双强示范区、幸福宜居国际化现代化新城,是国家意志的自主创新示范区。

万亿级产业:2021年高新区(滨江)GDP首超2千亿,人均GDP、增速杭州双Top1(信息来源:杭州网 ),汇聚11家独角兽企业,已成为“浙江资本第一区”(信息来源:杭州日报)。

传统豪宅区:项目周边二手房已是房价天花板,如柳岸晓风11-15万,水晶澜轩、彩虹豪庭均10万+。

【江岸】

一线江岸 肇基鼎豪基因

三水一豪:世界豪宅的水渊源,如世界九大湾区豪宅,因不可再生的稀缺资源,令全球富豪趋之若鹜;在杭州,有西湖、运河、钱塘江……水不是少数人的特权,但水岸豪宅是。

一线江岸:对岸春江花月、新绿园、蓝色钱江,早已奠定杭州“鼎豪”风范;项目约300米钱塘江岸,是国际滨人居全新封面作品。

【人文】

云山塔桥 浸润城市底蕴

休闲跑道:下楼约200米即达闻涛路樱花大道,城市核心地带的优质休闲跑道。

云山塔桥:对望世界遗产西湖云山,遥望古朴六和塔,尽揽钱江新城繁华,举步钱塘江大桥、复兴大桥。

多园环伺:文化公园、滨江公园、六和塔文化公园、杭州动物园等。

【交通】

高效路网 疾速通达全城

地铁双站:直线约700米地铁6号线建业路站&诚业路站,极速串联全城。

三横两纵:江南大道、滨盛路、彩虹快速路,时代大道、火炬大道。

三桥三隧:钱塘江大桥、复兴大桥、西兴大桥,庆春隧道、望江隧道、博奧隧道。

【商业】

繁华商业 璀璨生活矩阵

五大商圈:约500米宝龙广场,世茂中心、龙湖天街、星光大道、滨江银泰等五大商业综合体云集。

社区商业:项目自带建面约10300㎡商业,目前已有麦当劳、Tims、董鲜生水饺、知味观等国内外知名品牌已签约进驻。

【配套】

高阶场域 生活自在从容

三甲医院:武警医院、浙二医院滨江分院、省儿保医院。

优质学府:滨江高新实验学校、江南实验学校彩虹城分校、杭州钱塘实验小学、杭州第二中学、杭州国际学校。

市政为邻:滨江市政府、滨江区人民法院、滨江区办事服务大厅。

【品牌】

蓝城英冠 强强联袂钜献

蓝城集团:以房地产开发为依托的全生命周期、全产品链的美好生活综合服务商。

英冠集团:商业龙头企业,深耕杭州20年,于城市新芯开发5座城市综合体、3家星级酒店。

两大实力巨擘联袂献映,以繁华中轴上的地标综合体,勾勒城市璀璨天际,履新都市潮流构想。

【规划】

社区围合 时代封面作品

私域围合:类住宅的社区私域围合,营造折射时代风貌的私密尊崇氛围。

翠景围合:项目参照国际前沿审美,以稀缺的绿篱围合+商业绿环,划定静谧居住领域。

圈层围合:往来精英,乐享尊荣,划境塔尖圈层的优雅生活。

【建筑】

金镶玉貌 定标世界奢品

金镶玉灵感:金玉,自古就是国人对珍宝的统称,金玉美好寓意及人文底蕴,就是“金镶玉”建筑立面的灵感来源。

油画框造型:通过斜切拼合的围边勾勒过的窗户凹凸出立面,宛如一幅幅油画框,框定大幅玻璃映射的繁华城景和江天云影。

独特的材质:项目以白色铝板镶嵌香槟金色的窗框线条,搭配大幅LOW-E双层中空玻璃窗,辨识度、仪式感极强。

【园林】

三庭四院 造境诗意园林

以《春江花月夜》为设计灵感,“三庭四院”园林景观,对景钱塘江的诗情画意。

三庭:筑庭、林庭、石庭

四院:娱院、空院、水院、境院

【产品】

一层一户 定制鼎豪格局

蓝城英冠巨匠合璧,匠造一层一户鼎豪型制。建面约300㎡/480㎡定制作品,独门独户设计,全杭州罕有;双梯入户直达,出入间保证业主的私密性与安全性。

空中花园 定制自由场域

户户赠享约40㎡空中花园,可按主人喜好打造花园餐厅、森海泳池、空中酒吧……环顾左右,无出其右。

【空间】

造极空间 360°寰幕视野

360°寰幕视野:1#-3#9楼起可瞰江,15楼以上西望凤凰山,东眺钱江新城。

侈度空间:最大约26米奢阔面宽,约3.3/4.1米奢适层高,奢享侈度空间。

行政级空间:各休憩空间功能齐备,至臻礼遇每位家庭成员。

【精装】

大师精装 对标国际品位

奢派精装标准:约11000-13000元/㎡的超高精装标准。

鼎豪门面担当:意大利GARDESA装甲入户门。

德系高端品牌:选用MIELE、Hansgrohe、Villeroy&Boch、BOSCH等精装品牌,从餐厨、卫浴、洁具,全方位定制与国际生活相融通的奢华人居。

12种进口石材:产地巴西的潘多拉、产地柬埔寨的星耀灰、产地阿曼的阿曼玫瑰......以稀有石材铺陈多重空间,造就奢居风骨。

全屋智能系统:地暖、新风、中央空调、智能家居控制系统、可视对讲系统,以及厨房全套蒸煮电器交付、全屋台柜交付。

全屋平推窗设计:安全美观,通风佳。

【礼遇】

高定服务 犒赏城市层峯

专属配套:圈层会所式大堂,礼献城市贵胄;商业裙楼天际恒温泳池,营造悬浮空中的“私人夏威夷”。

礼聘高星酒店式物业服务,以精选菜单式高定服务, 涵盖礼宾接待、尊驾出行、生活服务等,呵护每位业主的“钻石人生”。

户型品鉴

杭州滨江区蓝城英冠滨悦城售楼处电话☎📞📱:400-000-0460转8888

我们以客户为中心,用心服务,只为让您拥有一个满意的家。

温馨提示:来访需提前两小时预约,以免直接参观无销售接待!

声明:本文由入驻焦点开放平台的作者撰写,除焦点官方账号外,观点仅代表作者本人,不代表焦点立场。