国贸海上原墅售楼处电话/地址:400-000-0460转6666☎预约热线✔✔✔松江国贸海上原墅营销中心位置/热线:400-000-0460转6666(看房专线)✔✔✔
国贸海上原墅售楼处电话/地址:400-000-0460转6666☎预约热线✔✔✔
松江国贸海上原墅营销中心位置/热线:400-000-0460转6666(看房专线)✔✔✔
温馨提示:提前预约来电预约专业一对一热情服务,看房尊享内部优惠折扣!
郑重承诺:开发商旗下销售团队全程营销策划,房源信息真实有效!


四千年文脉胜地,松江广富林正对门,惊现容积率仅约1.2墅级社区——国贸海上原墅!
项目建面约108-201㎡洋房、叠墅、联排等多种低密产品预备入市,美学示范区即将开放!


国贸海上原墅售楼处电话/地址:400-000-0460转6666☎预约热线✔✔✔松江国贸海上原墅营销中心位置/热线:400-000-0460转6666(看房专线)✔✔✔
在松江新城板块,这座低密墅居典范——国贸海上原墅闪耀登场,以 1.2 的超低容积率和生态与人文交融的卓越规划理念,强势重新定义高端品质人居新标准!这里集洋房、叠墅、联排于一体,为城市精英量身打造自然诗意与现代奢适完美融合的居住体验,绝对是您不容错过的理想之选!

核心价值:稀缺低密,匠心铸就非凡
黄金区位,低密大盘
项目位于松江区广富林街道,东至辰晓路,西至龙源路,南至广轩路,北至骏安路,稳稳占据松江新城核心地段。

仅 1.2 的超低容积率,规划了 9 栋 7 - 8 层洋房、9 栋 4 层叠墅、12 栋 3 层联排及配套保障房,总计 778 户(含 5% 保障房)。

松江国贸海上原墅售楼处电话:400-000-0460转6666【官方认证】主推建面约 110 - 145㎡精装洋房、143 - 154㎡叠墅、155 - 195㎡联排,全装修比例达 50%,装标不低于 2500 元/㎡,高品质居住一步到位!

具体来看户型解析:
洋房方面,项目主推建面约108㎡3房和建面约124/145㎡4房。
国贸海上原墅售楼处电话/地址:400-000-0460转6666☎预约热线✔✔✔松江国贸海上原墅营销中心位置/热线:400-000-0460转6666(看房专线)✔✔✔
全部是一梯两户,三开间朝南飞机户型,属于市面上更受欢迎的一类。
加上洋房天生的高得房率属性,尺度感和舒适度远超同价位竞品!

户型图过程稿,仅供参考

户型图过程稿,仅供参考
项目叠墅包含建面约141㎡上叠和建面约150㎡下叠.
国贸海上原墅售楼处电话/地址:400-000-0460转6666☎预约热线✔✔✔松江国贸海上原墅营销中心位置/热线:400-000-0460转6666(看房专线)✔✔✔而且比起市面上其他叠墅产品,国贸海上原墅为精装交付,为业主节约了大量的装修成本与时间。
且从户型图上看,横厅以及内庭院挑空等设计,户型设计更优秀且实际利用率更高。

户型图过程稿,仅供参考

户型图过程稿,仅供参考
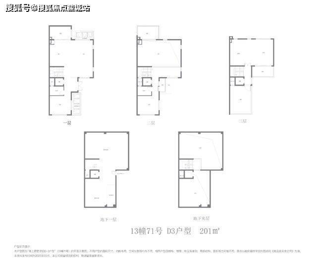
重点聊聊项目的联排产品,要知道在松江新城,叠加已经算珍惜物种,更不用说联排别墅。上一次联排别墅的供应,广富林的合生广富汇,已经在10年之前!
相比大平层“一层不变”的生活,上下5层的国贸海上原墅的联排别墅生活情境 更立体,更个性化,更私密,更适配大家族多代人居住。
同时别墅户型的面宽、采光、收纳、通透、得房率等都做到尽善尽美,让家里的每一位成员都有更舒适的起居环境。
国贸海上原墅联排别墅设计约5.65米层高地下室,一层客厅挑空约6.45米,还设计了类似天井内庭院空间(不计入建筑面积),这些灵动空间都能随业主心意改造。并且三层配备双露台,听风细雨惬意非凡。

户型图过程稿,仅供参考

户型图过程稿,仅供参考

项目效果示意图(过程稿),仅供参考
精妙设计,安全宜居
项目采用全人车分流设计,地面不见一个车位,1414 个地下车位合理规划,全方位保障社区的安全与静谧。西南角下沉式庭院与公共开放空间完美结合,打造出自然与社交深度融合的活力场域,让您的生活处处充满生机与乐趣!

天赋资源:生态繁华,无缝衔接
自然为伴,稀缺绿肺
项目西邻广富林文化遗址、郊野公园,直线 1 公里即可到达辰山植物园,3 公里直达佘山国家森林公园。在这里,城市稀缺绿肺环绕四周,让您每天都能与大自然亲密接触,享受清新空气与宁静生活。

醇熟配套,一应俱全
教育方面,松江大学城、上海外国语附属学校、华东政法附属学校等全龄教育资源环伺左右,未来还有上海实验学校松江分校规划建设,为孩子的成长保驾护航。

商业方面,松江万达、开元地中海、40 万方松江印象城(二期在建)满足您的一切高端消费需求。医疗保障同样出色,三甲级上海市第一人民医院南院、养志康复医院时刻护航您和家人的健康。

交通方面:
如果想通勤市区,项目东侧设有松江T2有轨电车广富林路站,仅需2站既可到达9号线松江大学城站,快速到达七宝、漕河泾、徐家汇等知名商圈。
未来在七宝还可以换乘机场联络线和嘉闵线(在建),迅达虹桥国际枢纽、浦东国际机场、闵行莘庄、浦东三林等区域。

医疗配套:周边设有上海市第一人民医院南院,这是一家三甲级别的综合性医院,还有养志康复医院。

品质保障:央企实力,精工品质之选
项目由国贸与松江交投联袂打造,以 26.98 亿元竞得地块,楼面价 28000 元/㎡,溢价率 0%,雄厚实力毋庸置疑!严格遵循房地联动价 6.3 万/㎡指导价,洋房均价约 5.2 - 5.3 万/㎡,叠墅 6.6 - 6.7 万/㎡,联排 7.8 - 7.9 万/㎡,性价比在五大新城中一骑绝尘!

这些项目包括国贸虹桥璟上、国贸海屿佘山、国贸西派海上、国贸凤凰原、国贸梧桐原以及国贸佘山原墅等,均为高端住宅系列。
国贸集团通过深入挖掘松江的文化底蕴,推动了居住品质的提升。

项目基本信息归总:
项目名称:「国贸海上原墅」
项目简介:松江新城 品质住宅
最新动态:样板间预计清明节6号开放
区域板块:松江新城
产品介绍:110-195㎡洋房&联排&叠加,联动价约6.3万/㎡
周边学校:项目周边落座了松江大学城、上海外国语大学松江外国语学校、上海外国语大学附属外国语学校松江云间中学、上海实验学校松江新城分校(规划中),还有华东政法附属学校、上师大附属学校、东华大学附属学校等丰富的教育资源(注:本资料中学校信息仅作介绍不做入学承诺,项目对口学校最终以教育部门划分为准。)
商业配套:项目周边涵盖了约60万方(数据来源:上海松江)综合性商业集群——松江万达、开元地中海、五龙广场、马利来广场;
医院:附近有上海市第一人民医院南院,为三甲综合性医院,以及养志康复医院
国贸海上原墅售楼处电话/地址:400-000-0460转6666☎预约热线✔✔✔松江国贸海上原墅营销中心位置/热线:400-000-0460转6666(看房专线)✔✔✔