2025杭州(杭州之门商铺)怎么样?杭州之门商铺房价-什么时候交付-属于什么街道—杭州之门商铺售楼处

搜狐焦点盐城站 2025-01-03 15:48:37
用手机看
扫描到手机,新闻随时看

扫一扫,用手机看文章
更加方便分享给朋友

杭州萧山区杭州之门商铺售楼处电话☎📞📱:400-000-0460转8888

杭州萧山区杭州之门商铺售楼处电话☎📞📱:400-000-0460转8888

我们以客户为中心,用心服务,只为让您拥有一个满意的家。

温馨提示:来访需提前两小时预约,以免直接参观无销售接待!

一座城市 一个地标

所在区位:中国奥体中心、杭州城市发展中轴,东至杭州国际博览中心、南至奔竞大道、西至综合训练馆、北至七甲河,与钱江新城拥江相望,是杭州亚运时代的心脏地带。

项目简介

【区域板块】:中国·杭州·奥体中心·奔竞大道(杭州国际博览中心西侧)

【所售类型】:商铺

【产权性质】:40年

【商铺层高】:5.75米

【物业】:世邦魏理仕

【拿地时间】:2019年9月

【交付时间】:2023年6月(现铺)

【在售体量】:36套

【得房率】:80%

【价格】:单价10~17万/㎡ 具体一铺一价

【总占地面积】:约77572平方米

【总建筑面积】:约53万平方米

【物业类型】:总部云端办公、总裁天际办公、高端奢华酒店、TOD商业中心

【容积率】:4.5

【建筑风格:现代玻璃幕墙(超白玻璃)】

【开发商】:绿地&宋都

【设计单位】:迪拜塔设计单位美国SOM、水立方设计单位澳大利亚伍兹贝格

【项目地址】:中国·杭州·奥体中心·奔竞大道(杭州国际博览中心西侧)

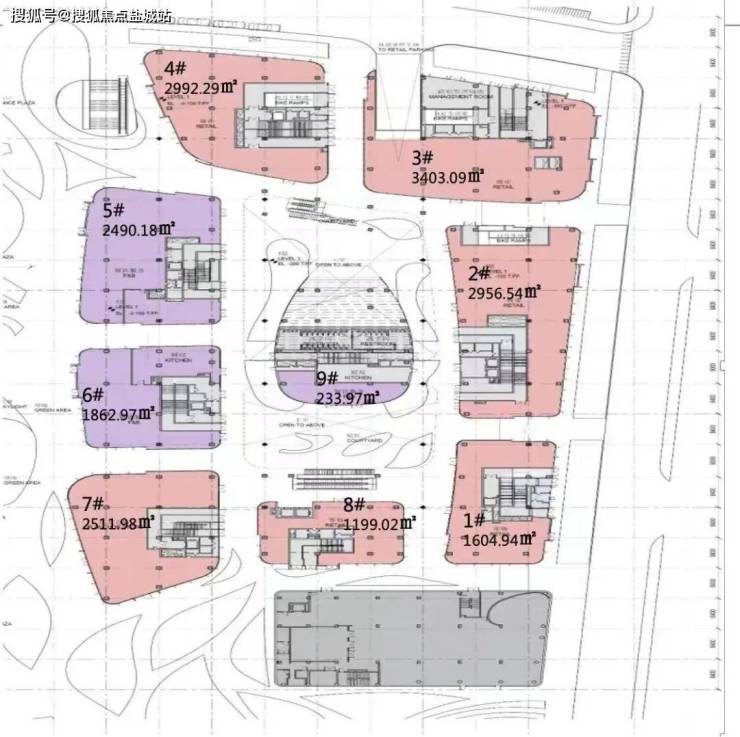
具体产品分布及说明:

西塔:

总部云端办公41层(3至43层)约9.86万平方米,单层约2500-2800平方米。

总裁天际办公17层(47至63层)约4.28万平方米,单层约2500-2800平方米。

东塔:

甲级总部办公(3至43层)约9.7万平方米,高端奢华酒店约5万平方米。

商业:

建筑面积约8万平方米。地下部分建筑面积约2万平方米、地上建筑面积约6万平方米。东侧为Block街区,西侧为小型Mall。

目前在售:东区商业沿街商铺

房源面积段及位置分布:

产品特点:

杭州市新城市中心中轴线上,杭州最大城市空中花园,独一无二景观空中千人宴会厅,至尊办公体验,顶级豪宅,国际五星酒店入驻,城市文化大型购物中心,资源齐聚+高额租金,双地铁上盖,TOD价值的完美趋势

产品定位:

集顶级娱乐、餐饮为一体的商业旗舰,一方面纳入TOP米其林级别与高端黑珍珠对应级别餐饮,另外一方面将浙江省内特色传统美食相结合,为项目赋予更加的传统深度意义

“光润世纪”泛光照明方案,寓意杭州新时代之光被杭州世纪中心点亮。

配套设施:随着奥体博览城的落实和建成,未来项目拥有稀缺的一线临江全景,所处杭州市级别的CBD中央商务区、文体区以及最大的世纪城公园的交汇处,集健康、运动、休闲于一体,共享钱江新城、滨江及萧山所有的城市级顶尖配套

四大商圈:奥体商圈钱江世纪城CBD钱江新城CBD市心路商圈

交通:三桥三隧道三地铁一高

三桥:复兴大桥、西兴大桥、彭埠大桥

三隧:望江路隧道、博奥路隧道、庆春隧道

三地铁:2号线、6号线、7号线

一高:机场高速

杭州地标奥体大莲花旁

可包租、可自持、租金20-30

杭州萧山区杭州之门商铺售楼处电话☎📞📱:400-000-0460转8888

我们以客户为中心,用心服务,只为让您拥有一个满意的家。

温馨提示:来访需提前两小时预约,以免直接参观无销售接待!

声明:本文由入驻焦点开放平台的作者撰写,除焦点官方账号外,观点仅代表作者本人,不代表焦点立场。