联仲都悦汇【官網】(2025上海闵行·联仲都悦汇)楼盘详情-联仲都悦汇楼盘价格丨联仲都悦汇楼盘怎么样_房价、户型、地址、电话、楼盘信息
扫描到手机,新闻随时看
扫一扫,用手机看文章
更加方便分享给朋友
联仲都悦汇三期售楼处电话:400-000-0460转5555
项目卖点:
2035规划四大主城区之一➕旗忠板块正核心➕纯别墅社区➕约10.7米大面宽➕超大地下室➕送内部电梯➕马桥人工智能试验区➕“龙脊之地”马桥文化➕约1800亩森林体育城➕国际教育
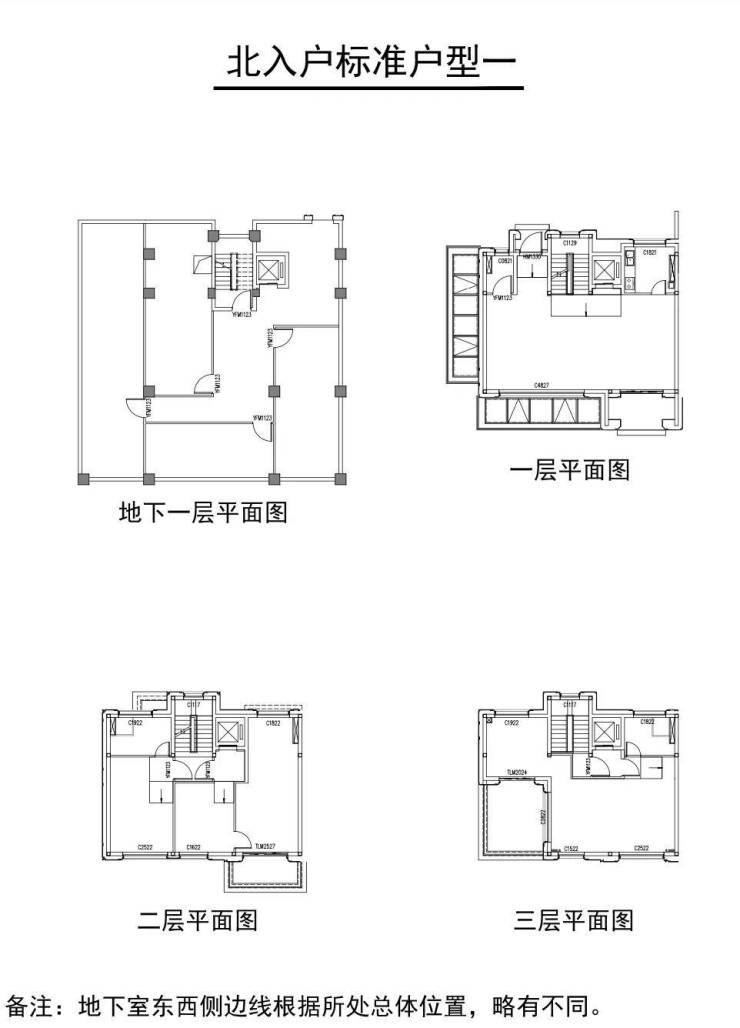
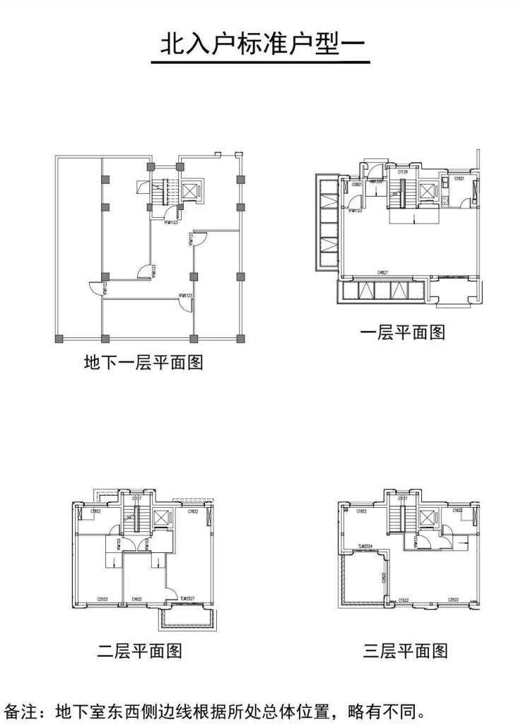
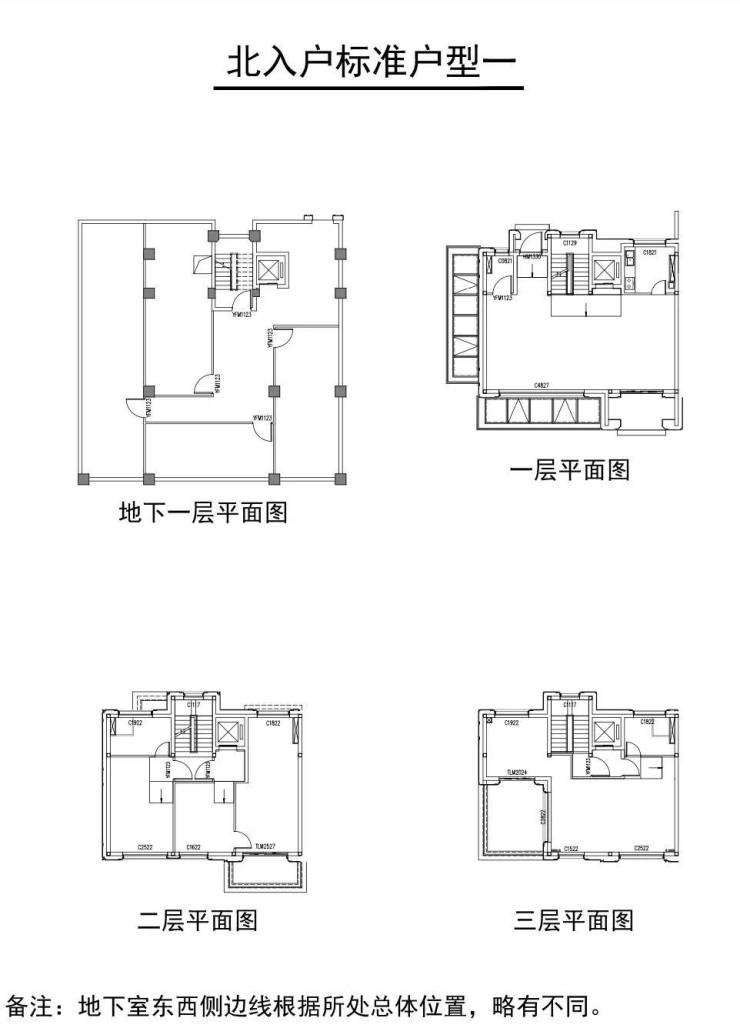
户型概览
🌟 雅致北境·约262㎡边陲雅居
步入北侧的温馨港湾,这款约262平方米的边户设计,以其独有的宁静与私密,邀请您沉浸于日常的悠然时光。空间布局考究,每一寸都透露出对生活品质的精致追求,让家的每一个角落都成为心灵的避风港。
🌞 明媚南窗·约262㎡阳光边邸
转身向南,拥抱约262平方米的明媚天地。此户型充分利用南向优势,让自然光肆意流淌,每一缕阳光都是对生活热情的赞歌。边户设计不仅拓宽了视野,更赋予了居住者一览无余的豁达心境,是追求生活品质与心灵自由的不二之选。
🏠 奢华尺度·约305㎡尊享府邸
步入约305平方米的奢华空间,一种前所未有的尊贵感油然而生。作为大户型边套典范,它不仅提供了宽敞的居住尺度,更在细节处彰显不凡。从精致的装修到考究的布局,每一处都透露出对高品质生活的极致追求,是您身份与品味的完美诠释。
未来展望
🚀 科技前沿·人工智能创新高地
作为城市四大主城区之一的璀璨明珠,这里正逐步崛起为人工智能创新试验区。未来,这里将汇聚全球顶尖的科技力量,引领行业潮流,成为推动城市发展的重要引擎。居住于此,您将亲身体验科技与生活的完美融合,享受未来智慧城市的便捷与舒适。
🚇 多维交通·无缝链接都市脉络
交通网络四通八达,为出行提供无限可能。地铁5号线华宁路站与剑川路站近在咫尺,轻松接驳城市各大商圈;多条公交线路如马莘专线、闵行19路等穿梭其间,出行更加灵活便捷。更有嘉闵高架、沪金高速等多条高速干线环绕,快速通达全市乃至长三角区域。未来,随着嘉闵线延伸段的规划实施,这里将成为连接未来与现在的黄金交汇点。
🚄 高铁引擎·链接世界的快捷通道
距离上海虹桥枢纽站仅约20公里的距离,让您轻松掌握全球脉搏。无论是商务出行还是休闲旅行,都能享受到高铁带来的速度与激情。这里不仅是城市的交通枢纽,更是连接梦想与现实的快捷通道。
💖💖项目基本信息
【开发商】:联仲置业
【所属板块】:闵行区旗忠板块
【产品建面】:约262㎡、约305㎡
【套 数】:60套
【容 积 率】:1.0
【绿 化 率】:35%
【物业公司】:联仲物业
【物 业 费】:8元/㎡
【产品类型】:住宅纯联排别墅
【交房时间】:2025年6月
【产权年限】:70年
【商务领地】
尊享繁华近在咫尺,万达广场以约2.4公里的优雅步程,引领都市生活潮流。与此同时,联仲商业广场,作为我们自豪的自有项目,正蓄势待发,以其独特的商业魅力,筑就未来商业新地标,让生活与商机无缝对接。
【学府环绕】
在这片知识的沃土上,教育之光璀璨夺目。强恕学校以其深厚的文化底蕴,为孩子们铺就坚实的求学之路。德威英国国际学校与斯代文森国际高中,则以全球化的视野和卓越的教学质量,为莘莘学子打开通往世界的大门。幼儿园阶段,元祥、富杰与启英幼儿园携手,用爱心与专业呵护孩子的启蒙时光。而高等教育的殿堂——上海交通大学与华东师范大学,以及马桥文来外国语小学,更是为区域的教育版图增添了浓墨重彩的一笔,让知识与智慧在这里代代相传。
【医疗守护】
健康是幸福的基石,此地医疗资源丰富,为居民提供全方位的医疗保障。闵中心医院、第五人民医院,以精湛的医术和贴心的服务,守护每一份健康与安宁。上海中医药大学附属岳阳中西医结合医院闵行分院,则将中医的智慧与现代医学相结合,为区域居民带来更加全面、高效的诊疗体验。
【生态休闲】
绿意盎然,休闲无限。上海旗忠网球中心,不仅是国际赛事的璀璨舞台,更是市民运动健身的好去处。旗忠高尔夫球场,以广袤的绿茵和优雅的球道,为高尔夫球爱好者打造了一片挥杆逐梦的天地。养云安缦酒店,以其独特的文化底蕴和奢华的入住体验,成为都市中的一方静谧桃源。而森林体育城,则以其丰富的体育设施和优美的自然环境,让人们在运动中享受自然,在自然中感受运动的乐趣。
声明:本文由入驻焦点开放平台的作者撰写,除焦点官方账号外,观点仅代表作者本人,不代表焦点立场。
