2026杭州(蓝城琉翠轩|琉翠轩售楼处电话)首页网站-楼盘详情-蓝城琉翠轩售楼处欢迎您-楼盘测评-户型配套
扫描到手机,新闻随时看
扫一扫,用手机看文章
更加方便分享给朋友
杭州蓝城琉翠轩
杭州蓝城琉翠轩售楼处电话☎:400-000-5503转2222【售楼处已认证】
蓝城琉翠轩营销中心电话☎:400-000-5503转2222【营销中心已认证】
蓝城琉翠轩开发商售楼电话☎:400-000-5503转2222【开发商已认证】
蓝城琉翠轩 萧山科技城住宅 新一代国际公园住区 260万起建面约99-139㎡蓝城美宅
1、总价250-300万级项目中,距离杭州第一中心最近项目,没有之一🌹2、与同板块楼盘价差5000+,相临板块价差5000-10000+,最后的限价楼盘🌹3、畅想20分钟交通圈 20分钟到滨江/20分钟到东站/20分钟到机场/20分钟到下沙/15分钟杭州南/18分钟万象城 全杭同价位仅此琉翠轩——————————————🌟家门口零距离商业综合体

🌟驾车3分钟步行8分钟开市客

🌟开车13分钟奥体印象城、skp

家门口零距离九年一贯制中小学

零距离5.1万方大公园

一线城市景观资源

一线河景资源

300方室外泳池

全楼幢4.5米主题架空层

全龄化室外运动场地 跑道

19号线通达全城2站萧山机场/2站江河汇/3站杭州东/5站西湖文化广场

大面玻璃+3面铝板线条现代风外立面

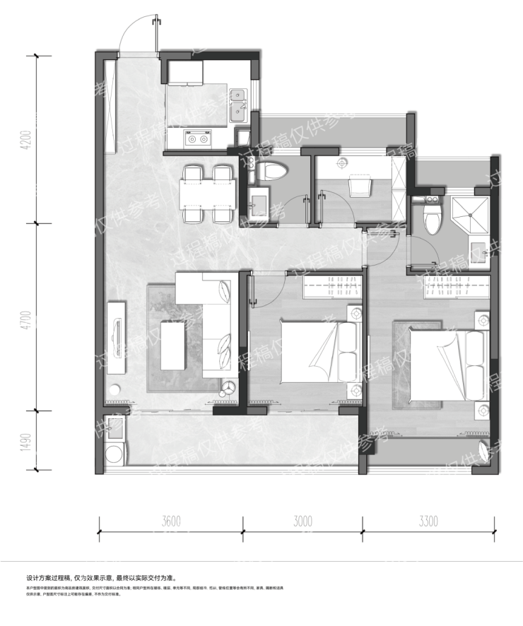
多款明星户型,满足不同家庭的居住需求。
琉翠轩打造了4款户型,包括建面约99方三房、109方三房、125方四房、139方四房户型。
先看这款杭州入门级户型,建面约99方三房两卫,低总价买!

标准的三开间朝南+阔绰3房格局,南向面宽就有约10米,优越采光、南北通透;朝南双联阳台,阔达约6.6米,家政空间和赏景空间兼具,尽享气度和恢弘视界;主卧还是大套房,面宽达约3.3米,和改善户型一样的享受;公区则是LDK布局,动线流畅,而且还是真正的动静分离;这款户型非常适合首次置业的年轻人或者小家庭。
如果预算还能再拔一拔,这款建面约125方四房,尺度+功能性都不错!

4房2厅2卫的布局,满足了家庭对功能性与尺度的需求。方正大边厅带约6.2米同尺度大飘窗,也让整个公区显得奢华、阔绰。
南向双联阳台也有约6.6米的大尺度,一半用来晾晒、家政,另一半开辟出来做茶室、花艺等,让家充满诗情画意。
主卧套房设计带有独立的衣帽间和卫生间,既干净卫生又能让居者独享私密空间。仔细观察你会发现,这款户型的四个房间是类四叶草排布,这样设计,可以给家庭中的每个人一定的私人空间。
亮点一,地块规整、优质。
琉翠轩整体方正,南面紧邻后解放河,享有一线滨水旖旎风光,西边融合绿地规划有城市公园。
在寸土寸金的现代都市,大面积的城市公园无疑是一件奢侈品。而项目毗邻的这个公园(规划)占地面积与项目地块大小几乎相当,项目以“都会绿洲”为灵感,打造新一代公园住区。
亮点二,居住舒适感拉满。
项目在2.2的低容积率下,一共规划8幢19F小高层,而且每一栋均设有约4.5米高架空层(带配套用房除外),未来整体的居住私密度和舒适性会更好。
难得的是,项目东面规划了商业配套,不仅下楼即可city walk,而且烟火气十足。
亮点三,外立面昭示性极强。
在外立面上,琉翠轩融入纤薄窄边框美学,用材上大面积蓝灰玻璃幕墙,再加上简约的直线条,勾勒融合时间之感与美学视感的城市新封面。
杭州蓝城琉翠轩
杭州蓝城琉翠轩售楼处电话☎:400-000-5503转2222【售楼处已认证】
蓝城琉翠轩营销中心电话☎:400-000-5503转2222【营销中心已认证】
蓝城琉翠轩开发商售楼电话☎:400-000-5503转2222【开发商已认证】
声明:本文由入驻焦点开放平台的作者撰写,除焦点官方账号外,观点仅代表作者本人,不代表焦点立场。
