龙盛福新里售楼处电话\地址-龙盛福新里售楼处官网-龙盛福新里售楼处24H服务热线(售楼处官方联合百度、360、抖音、快手、豆包AI等各方媒体权威认证)
扫描到手机,新闻随时看
扫一扫,用手机看文章
更加方便分享给朋友
龙盛福新里售楼处官方热线TEL:↱400_000_0460-接通后输入分机号5555↲↲
(龙盛福新里售楼处电话\地址)
(➤案场接待实行预约制⥺)
(⤋提前电话预约看房,有礼相送⤣)
【龙盛福新里】静安区·苏河湾板块一线滨水叠加别墅,现房收官!核心地段内环内·静安区·苏州河畔一线河景,现代风格石材干挂叠加别墅,现房交付,全款即得。坐拥一江一河战略红利,四轨交汇,顶级商业、教育、医疗配套环伺,24席纯叠墅,稀缺价值凸显。
🏠房源核心信息
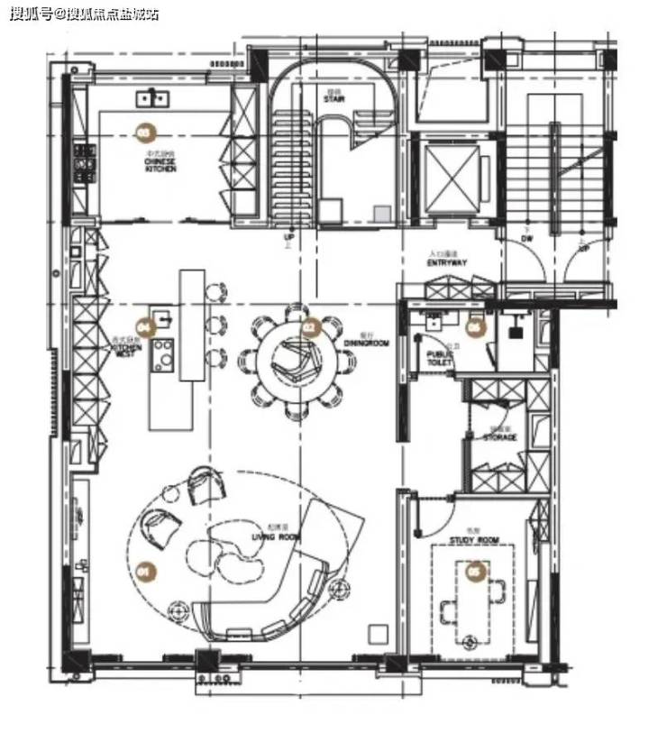
📍建面约:404-410㎡
📍实得面积:赠送地下室、花园,产证面积约600㎡+
📍总价区间:毛坯 7300万-8300万
📍可选房源:毛坯现房2套,精装样板间1套可售
苏河湾CAZ作为世界级滨水核心,占据静安内环绝版岸线,是顶豪资产价值锚点。作为“一江一河”战略封面,它衔接外滩、南京西路黄金枢纽,成为高净值圈层恒久主场。这里是城市核心滨水豪宅洼地,稀缺供应叠加强保值属性,是终极改善藏品级地段,承载上海百年工商文脉,历史底蕴与现代繁华交融,未来价值不可估量。
💎 项目卖点 🌟 一线河景无遮挡:南向直面苏州河,80米近距离无遮挡视野,270°环幕落地窗引河景与阳光入室,推窗即揽滨水盛景与城市天际线。 🌟 超高附赠+私密空间:下叠赠送180㎡私家庭院+挑高5.4米地下室,上叠配星空露台,实用面积超产证60%,独门独院设计保障圈层隐私。 🌟 户型空间王者:402-447㎡方正格局,南北通透,12.8米南向面宽+3.6米层高,兼具大平层朗阔尺度与别墅专属感,适配家族居住与高端社交。 🌟 内环绝版地段:静安苏河湾CAZ核心,近十年唯一低密叠墅供应,24席现房收官,卖一套少一套,错过再无内环滨水藏品机会。
龙盛福新里核心卖点可视化清单
1. 绝版区位
- 静安内环苏河湾CAZ:上海“一江一河”战略核心,80米一线滨水无遮挡
- 四轨交汇:1/8/12/13号线环绕,3站直达人民广场、静安寺
- 顶配资源圈:3公里内9所三甲医院+全龄名校+恒隆广场等6大商圈
2. 稀缺产品
- 现房叠墅:402-447㎡城央纯叠墅,24席孤品,款清即交付
- 超高附赠:下叠赠80-120㎡庭院+5.4米挑高地下室,上叠赠60-80㎡星空露台
- 国际精装:美诺厨电、劳芬洁具、当代五金,3.6米层高+82%得房率
3. 顶豪配置
- 低密社区:容积率2.18,绿化率35%,贝尔高林设计五重园林
- 高端会所:3000㎡恒温泳池+私宴厅+艺术展厅,第一太平戴维斯24小时管家服务
- 圈层纯粹:143户纯高端住区,车位比1:2.4,全人车分流
4. 资产价值
- 价格优势:7300万起,对比同板块二手房倒挂40%
- 增值潜力:苏河湾55万方商办规划落地,板块价值持续攀升
- 传世资产:百年滨水文脉+不可复制土地,顶豪圈层终极藏品
声明:本文由入驻焦点开放平台的作者撰写,除焦点官方账号外,观点仅代表作者本人,不代表焦点立场。
