(2025上海)外滩瑞府首页网站|外滩瑞府售楼处|楼盘评测|最新价格|户型配套
扫描到手机,新闻随时看
扫一扫,用手机看文章
更加方便分享给朋友
华润外滩瑞府售楼处官网电话:400-0000-460接通,输入分机号5555(*****华润外滩瑞府售楼处电话\地址*****)(案场接待实行预约制)(为避免客户临时来访无人接待,请至少提前2小时以上电话预约看房参观)
华润置地上海首座瑞系顶序作品“外滩瑞府”将推出建面约120-240㎡3-4房,展厅目前已开放,样板间即将启幕!官宣户型图独家首发:
建面约124㎡3房:
整体动静分区格局。在U型厨房基础上融入 “社交属性”,让烹饪时亦可与客厅家人互动。
三间卧室尺度阔绰且面宽近乎均等,真正实现家庭成员的居住、视野、采光的平权。
这个户型附赠空间也比较出彩,除了大面宽的阳台,还配备5飘窗,增加实用面积。
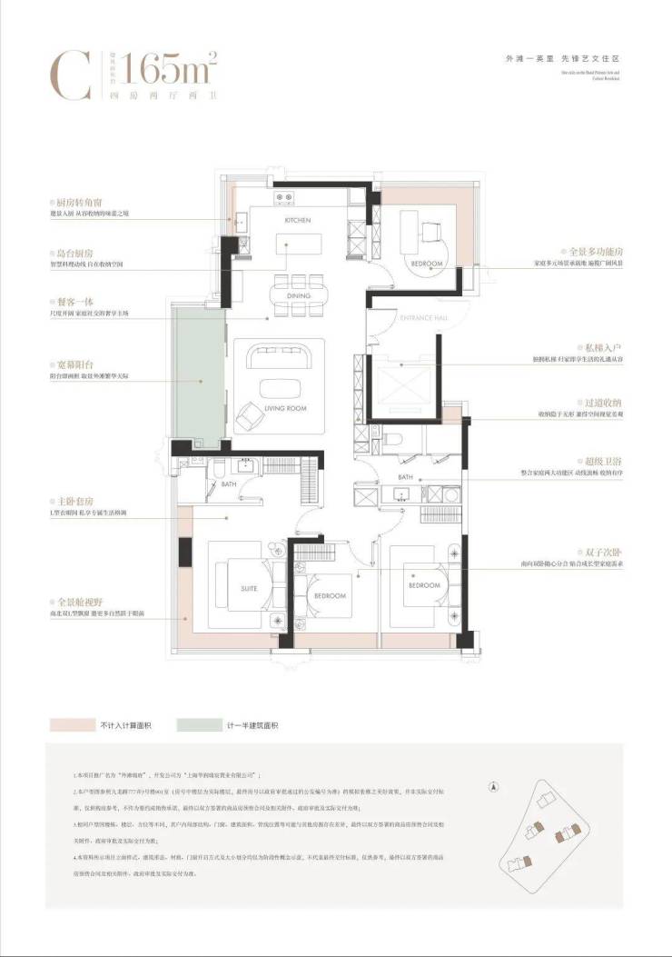
建面约165㎡4房:
同样近乎等面宽的卧室尺度, 打破传统户型主次之分, 让每位家庭成员都能拥有舒适且独立的休憩空间。
其中三卧朝南,阳光满溢。
岛台厨房-餐厅-客厅-阳台一体化设计,动线流畅,整个社交区域宽敞利用率高,二胎共同玩耍绰绰有余。
值得一提,“270°视野”贯穿户型,主卧、北向次卧带270°飘窗,纵览城市景;厨房竟然也有转角窗,阳台也带转角,这户型简直为观景而生。
另外,主卧是套房,带L型衣帽间和卫生间;公卫更是点睛之笔,洗漱、马桶、淋浴、洗衣收纳四分离,让生活井然有序。
可以看到, 外滩瑞府户型卧室开间都做到了3米以上 ,客观讲尤其120㎡段户型,不少高端项目次卧开间不足3米,舒适度欠佳;而外滩瑞府在卧室尺度上 “面宽打开再打开” 。
据了解,这是华润置地深度研究豪宅客群对空间真实需求的结果, 打造出舒适且平权的室内享受。
随着两大神户型露出,让我对项目样板间的呈现提起百般期待,再次预告一下,外滩瑞府样板间即将开放!
当下2000万级已经完全买不进黄浦核心地段,而外滩瑞府不仅能以2000万级入手,更是今年2000-5000万级上海位置更好、更值得入手的豪宅!
对项目有兴趣的朋友,
欢迎点击下方小程序预约看房~
在您通过二维码报名之前,请确保您已阅读并同意《小胖看房团用户服务协议》及《小胖看房团隐私政策》。在报名之后,我们将视为您已知晓。

主力2000-5000万级新房地段“天花板”
为什么我敢笃定说外滩瑞府是该价位今年位置更好的项目?
1、外滩是上海永恒的中心,外滩瑞府把“外滩”装进日常生活。
外滩作为上海面向世界的窗口,坐拥万国建筑博览群及上海半壁江山的奢牌酒店。
别人需要精心规划的行程,于外滩瑞府业主,不过是下楼散步或骑行的寻常路线。
这种对城市顶级资源的极致占有,在今年新房市场中堪称独树一帜。
2、紧贴北外滩,坐享世纪规划红利
外滩瑞府 不仅位于外滩核心场,还直面北外滩发展辐射。
规划能级超群:北外滩开发体量超840万方(陆家嘴核心2倍),480米新地标领衔5栋300米+、13栋200米+摩天建筑群,打造浦西全新制高点。
产业势能强劲:聚集2100+金融企业(资产管理规模超8万亿,全市第一)、4500+航运企业(掌控全球1/3航运交易)、2500+贸易企业,构建国际航运与贸易中心。(数据来源:上海市规划局)
兑现速度空前:国华金融中心、友邦金融中心已投入使用;上海华贸中心预计2026年竣工;480米北外滩中心等地标群预计2030年建成。
3、 外滩瑞府:鼎立外滩-陆家嘴-北外滩「黄金三角」的通勤C位新房
这片由外滩、陆家嘴、北外滩构成的「黄金三角」,不仅是上海的金融心脏,更是面向2035的城市发展引擎。
外滩瑞府以「三轨交+北横通道+多隧道」的立体交通网络,形成了极为高效的通勤效率。
✔轨交:近10号线四川北路站,2站南京东路,5站新天地,可换乘2/12号线,便捷直达陆家嘴。同时毗邻海伦路站,4/10/19号线(在建)交汇,可便捷去往内环各重要节点。
✔自驾: 从项目出发,通过新建路隧道可直达陆家嘴;通过 吴淞路-外滩隧道 联通黄浦核心。

稀缺双重暴击!
主力2000-5000万级「外滩入场券」进入读秒阶段
①、外滩主力2000-5000万级豪宅近5年无供应,未来也难再有!
从外滩到外滩瑞府,近5年除个别5000万+顶豪外,无任何供应。
且放眼市中心,黄浦全面迈上5000万级, 外滩瑞府不仅是市中心罕见的主力2000-5000万级高端改善选择,更凭借烫金地段脱颖而出,成为该总价段中“地段更优、配套顶配”的稀缺资产。
②、约0.14%入场外滩的概率!
据小胖君统计,自2010年至今,外滩1.5公里核心圈内仅供应1650套新房,占全市新房总量比例低至 约0.14%。
外滩瑞府正位于这一 “万里挑一” 的黄金半径内,真正的收藏级占位。

华润置地上海顶格之作
首座TOP“瑞系”
作为华润置地产品线的皇冠明珠,「瑞系」自诞生便以钻石级选址标准划定豪宅基因。
从深圳湾的 “春笋”旁到北京长安街畔,每一座瑞府都占据着核心城市最核心的地段。
此次外滩瑞府落子外滩1公里核心圈,正是华润对「战略稀缺性」的极致践行: 非核心不选,非未来不立。
这也是华润置地那么多年来在上海的首座“瑞系”。
项目效果示意图,仅供参考,以实际交付为准
几大亮点抢先看:
第一,项目独特的开发属性—— 高层住宅与历史风貌底盘的融合共生,价值在市场上独一份, 毕竟唯有承载着风貌肌理与弄堂记忆的土地,才真正流淌着上海的城市血脉。
项目效果示意图,仅供参考,以实际交付为准
第二,有别于大多数的市区项目以兵列树阵式的景观设计,外滩瑞府通过建筑楼体的偏转形成了围合式的景观布局 , 秉持 三个最大化,两个最小化 (景观最大化,采光最大化,朝向视线最大化;遮挡最小化,影响最小化)。
通过这种创新布局,项目不仅形成连续的中心花园,更因楼栋布局与边界有夹角,自然形成一系列边角院落空间。
尤为难得的是,部分东南高区可看到陆家嘴三件套和北外滩浦西第一高楼的遥相呼应。
第三, 全 域风雨 连廊 ,外 滩瑞 府将风雨连廊扩容为完整的归家体系,实现全住宅楼栋无风雨归家,带来顶豪级的归家居住体验。

项目示意图,过程稿仅供参考,以实际交付为准
值得一提,还拥有 翠湖天地、汤臣一品同款大师设计。
项目力邀大师天团操刀,从建筑到生活全维度高定。
GOA大象设计担纲建筑设计;渡边 智昭 负责会所和架空层设计 ,他是 2023 AD 100 中国最具影响力建筑和室内设计师,代表作翠湖天地、汤臣一品;TROP操刀艺文景观设计; 室内由 W.DESIGN无间设计、 李益中精琢...

因此,你能欣赏到罕见“ 风貌→幕墙→冠冕 ” 的立体生长美学。
高层基座溯源石库门建筑精髓,复刻经典拱券符号;中段以通透玻璃幕墙搭配流线型金属线条,营造国际前沿的现代质感;顶部“冠冕”造型,进一步升华昭示性。
项目效果示意图,仅供参考,以实际交付为准
这几大亮点的背后,是华润置地对「超配产品力」的深刻理解——不是简单的硬件堆砌,而是从居住者真实需求出发,通过空间设计的「创新」,实现生活体验的「大跃升」。
声明:本文由入驻焦点开放平台的作者撰写,除焦点官方账号外,观点仅代表作者本人,不代表焦点立场。
