保利世博天悦首页网站:上海世博滨江(2025必买榜·保利世博天悦售楼处电话)欢迎您!房价#户型图#楼盘详情
扫描到手机,新闻随时看
扫一扫,用手机看文章
更加方便分享给朋友
保利世博天悦售楼处官网电话:400-0000-460接通,输入分机号5555(*****保利世博天悦售楼处电话\地址*****)(案场接待实行预约制)(为避免客户临时来访无人接待,请至少提前2小时以上电话预约看房参观)
项目将加推离江更近的一幢双面瞰江楼栋(11#),建面191-207㎡3-4房楼王产品,仅60套,项目蕞新已过会,均价183426元/㎡。

11#价值总结:
①、滨江孤品-11#绝版双面江
②、360°全维度景观视野楼座
③、实景呈现、准现房,11#楼不晚于2025年9月30日交付;
④、南向无遮挡,全天采光全区更优;
⑤、15F小高层、一梯一户,约82%的高得房率;
⑥、LEED & WELL 双金预认证楼栋;
⑦、全线大师定制:曾仕乾、园林大师诗加达、室内CCD等。


上海核芯地段+极致的江景资源价值永远没有上限!近亿总价与20万+单价充份证明了全国富豪对上海优质资产的认可,对世博滨江的认可,对保利世博天悦的认可。


1
项目地块前情及基础简介
2017年7月,保利地产以49.71亿元代价获得一宗黄浦江边、规划建筑面积逾20万㎡的住宅项目50%股权。
【保利世博项目】位于浦东世博滨江板块,是黄浦江沿岸核芯地段,这里也承载着上海的“世博记忆”。这幅地块就是曾经的世博村,地上建筑面积达到16.73万㎡,项目的总建筑面积(包括地上车库)达到20.85万平方米。
地块位置如下图所示,直观来看,是块滨江的好地,临江无遮挡,瞰江视野很开阔。

2
项目产品设计
世界级大师出品
跨时代之作
【保利世博天悦】作为保利“天字系”中的TOP级产品,特意邀请了罗杰斯、福斯特和曾仕乾三位全球大师进行方案设计。

蕞终SCDA创始人曾仕乾先生通过对建筑元素的巧妙融合、贴合东方生活习惯的设计手法并兼具国际化的独特性脱颖而出。这一切的初衷就是为了借用世界级大师的超凡能力和创作灵感,来为这片土地创造一个能够跨越时代的经典之作。


与此同时,保利还重金请来了CCD郑忠,程绍正韬,吴滨,LSD葛亚曦,H.N.LIN等5大鼎级室内设计团队。全球八大top级的设计师天团汇集在世博滨江这样的高能级CAZ板块,打造出滨江独特的城市新名片!

外立面采用开放式铝板设计,平整度、精度远超常规铝板;超大尺度落地窗设计,通透气派,美轮美奂。

项目保留了上海世博村现有的城市结构和界面,并利用建筑和公共景观资源,创造出一个具有魅力和现代感的生态、绿色住宅。
景观设计方面,保利世博天悦采用引江入园、以水带路的手法,将滨江舒阔的国际生活平移到社区内,打造约6万㎡景观秘境,媲美全球奢华酒店。采用大面积的留白和现代禅意的表现手法,呈现开阔舒展的质感。


项目采用空间、光、结构秩序来塑造静谧与典雅的氛围。这分为两部分,一部分是针对体验进行设计,整合一系列随光线和结构变化的空间,进而提升使用者的感官体验。另一部分是关于如何构建结构秩序,这部分由建筑设计语言决定,将场所营造,文化,工艺等元素融入其中。

黄浦滨江黄金景观
只在于此
无论是布局、立面、景观还是细节,「保利世博天悦」都展现出了其他豪宅难以企及的尽善尽美!
首先是布局,项目选取蕞优瞰江角度南偏东「21°黄金倾角」,按照江景资源蕞大化的住宅排布模式,对楼栋进行排布,西高东低的建筑布局,形成错落有致的天际线。得益于这样的布局方式,几乎让每一栋楼都可以看到江景!
再加上高区户型的270°景观视野的转角设计,以及匠心独具的观江阳台。让顶尖的城市精英尽享黄浦江S湾的特有风景!
建议旋转手机90°欣赏沿江美景:
项目配备了约2600㎡双首层地下会所,只对小区业主开放。
内部配置25*11m半标恒温泳池,泳池配设 4 条泳道,还有约180㎡私宴厅,酒窖、会客厅及健身房等功能。


实景图
会所中定制打造了以“文明之海、时间之轮、永恒之光”为主题的艺术品。
仿佛置身于一个艺术博览馆,为这座黄浦江畔超级豪宅注入有趣且独特的灵魂。


实景图
黄浦江畔一线奢阔尺度、为全球塔尖人士定制全新滨水静谧大宅——【保利·世博天悦】该项目位于浦东世博之滨,距黄浦江仅约150米(仅一条世博大道之隔)!
保利·世博天悦 效果图

3
项目推售情况、户型及装修参考

项目名称:保利世博天悦
项目位置:上海浦东新区雪野路999弄
产品类型:高端住宅,包括洋房和高层住宅
户型面积:175-400㎡
均价:16.8万/㎡
项目推售情况,分多次推盘:
① 第一批:2024年4月17日认购,4.25号开盘,首推7、8、9、13栋楼,共291套房源,均价16.8万;
② 第二批:8月10日,8.16开盘,推出5、10栋楼,共计172套,均价16.8万;
③ 第三批:11月9号,11月15号开盘,推出6号楼,均价约15.6万元,共计88套房源;
④ 第四批:推出洋房产品,2号楼、4号楼两幢景观洋房楼王,共计58套房源,均价约16.5万;
⑤ 第五批:均价约16.6万
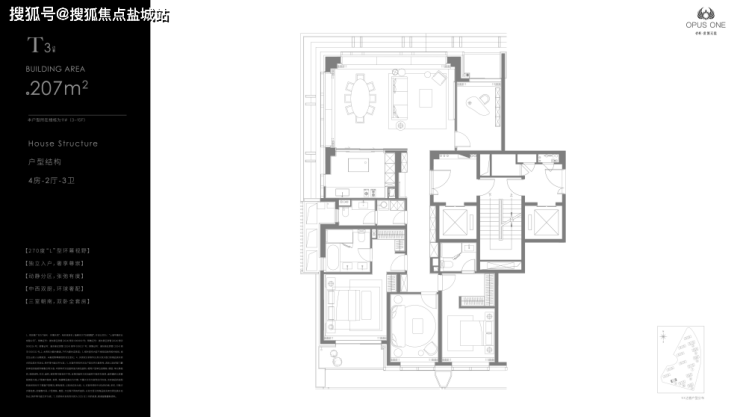
⑥ 第六批:11号楼,60套,面积约191-207㎡,均价约18.34万
项目户型图参考

从「高」到「奢」,一字之别,差别是品牌的底蕴、材料的稀缺,功能与艺术的融合……嘉格纳、威乃达、当代、唯宝、旭格等鼎级品牌在世博天悦样板间聚首。世博天悦的选品逻辑直白而清晰:并非堆砌,而有面子有里子。
装修标准参考






*实际交付标准以买卖双方签订的《商品房买卖合同》为准
4
项目综合配套
世博滨江价值
未来新生活
世博滨江才是黄浦江与城市的融合,不是非此即彼的二选一,是左手繁华,右手私享静谧的生活方式,是黄浦江宜居生活的更佳诠释。


世博板块从北到南串起了白莲泾公园-世博公园-后滩公园-前滩友城公园-前滩休闲公园-前滩体育公园,6座已建成的公园。
尤其是世博文化公园的双子山,已成为潮人们周末的打卡胜地,前来踏青、搭帐篷休闲的年轻人络绎不绝,人气颇高。
世博浓缩了全城优质文艺配套的舞台,梅赛德斯奔驰文化中心、中华艺术宫、上海大歌剧院、世博展览馆、久事国际马术中心等13座高标准的文化体育场馆,如珍珠般串联成一条璀璨的项链,形成了上海独树一帜的文化艺术带。
相比全球世界500强汇聚的金融中心,世博滨江是上海的央企总部群基地,也是浦东第二政务办公中心。
这些产业基本都落地了,不是画大饼:
高质量产业锁定世博,一方面助力人口导入,增加板块活力;另一方面吸引的人才普遍高收入、高素质,板块内始终保持强劲的购买力。
丰富配套资源
滨江舒适生活
交通配套:项目周边路网成熟两桥两隧四地铁(南浦大桥、卢浦大桥、西藏南路及打浦路隧道、6、7、8、19号线);北侧比邻世博洲际酒店、南侧比邻上海地产集团、西侧比邻世博大道、东侧比邻雪野路。
商业配套:近享世界级滨江艺术带、上海最大开放式绿地——2平方公里世博文化公园(内含上海大歌剧院、马术中心)、五国金砖银行、央企总部等国际级配套。
教育资源:项目周边有浦东南路小学、上海市上南中学、上南中学东校邹平校区、上海市南洋中学、上海市第八中学、上海纽洋大学等教育资源。
医疗资源:项目周边有上海市浦东新区浦南医院、上海儿童医学中学、第九人民医院浦东分院、上海交通大学医院附属瑞金医院等医疗配套。(具体以实际为准)
声明:本文由入驻焦点开放平台的作者撰写,除焦点官方账号外,观点仅代表作者本人,不代表焦点立场。
