上海鸿坤美兰天地(2025年鸿坤美兰天地)首页网站-鸿坤美兰天地楼盘详情-鸿坤美兰天地户型配套

搜狐焦点盐城站 2025-01-03 12:17:00
用手机看
扫描到手机,新闻随时看

扫一扫,用手机看文章
更加方便分享给朋友

上海宝山上置鸿坤美兰天地售楼处电话☎📞📱:400-000-5503转6666

上海宝山上置鸿坤美兰天地售楼处电话☎📞📱:400-000-5503转6666

我们以客户为中心,用心服务,只为让您拥有一个满意的家。

温馨提示:来访需提前两小时预约,以免直接参观无销售接待!

果岭之上 光之别墅

美兰湖 果岭上

城市果岭·光之建筑·私人宫馆

大面积玻璃墙体 城市商务行宫

建面约550~820㎡ 共34栋

总价2000-2500万

美兰天地位于宝山美兰湖板块,开发商上海美兰湖房地产开发有限公司;项目占地面积约15.3万㎡、建筑面积约9.3万㎡、绿化率50%、容积率仅0.4,由34栋别墅组成

项目位于美兰湖高尔夫球场内,主力产品:约550㎡、620㎡、830㎡,总价约1800-2500万,不限购。

美兰天地采用现代极简建筑风格,外立面采用大面积玻璃,做到270°的景观视野,给到客户“室内随心设计,室外无界景观”的独特感受。

户型品鉴

建筑面积约 550㎡光之空间

(样板间实景图)

(样板间实景图)

(样板间实景图)

(样板间实景图)

(样板间实景图)

(样板间实景图)

A产品|整栋建筑面积约560㎡

(效果图)

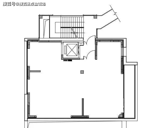
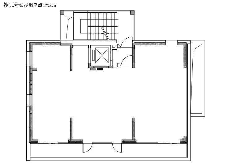
A产品一层平面图|建筑面积约168㎡

(户型平面图)

此户型对应编号为137幢56号1F,具体户型会因装修、楼栋、楼层、单元、朝向等差别,使局部结构、面积、部分窗扇位置及大小、墙壁大小及电器安装位置等略有不同。

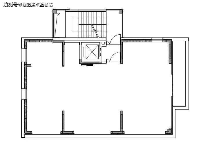
A产品二层平面图|建筑面积约194㎡

(户型平面图)

此户型对应编号为137幢56号2F,具体户型会因装修、楼栋、楼层、单元、朝向等差别,使局部结构、面积、部分窗扇位置及大小、墙壁大小及电器安装位置等略有不同。

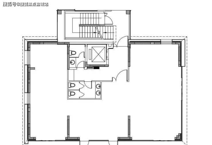
A产品三层平面图|建筑面积约194㎡

此户型对应编号为137幢56号3F,具体户型会因装修、楼栋、楼层、单元、朝向等差别,使局部结构、面积、部分窗扇位置及大小、墙壁大小及电器安装位置等略有不同。

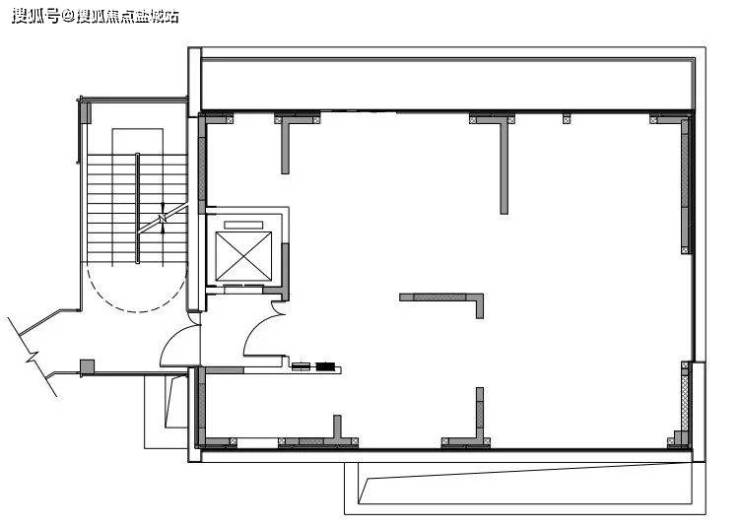
C产品五层平面图|建筑面积约173㎡

(效果图)

此户型对应编号为150幢 86号5F,具体户型会因装修、楼栋、楼层、单元、朝向等差别,使局部结构、面积、部分窗扇位置及大小、墙壁大小及电器安装位置等略有不同。

D产品四层平面图|建筑面积约161㎡

(效果图)

(户型平面图)

上海宝山上置鸿坤美兰天地售楼处电话☎📞📱:400-000-5503转6666

我们以客户为中心,用心服务,只为让您拥有一个满意的家。

温馨提示:来访需提前两小时预约,以免直接参观无销售接待!

声明:本文由入驻焦点开放平台的作者撰写,除焦点官方账号外,观点仅代表作者本人,不代表焦点立场。