绿地华创中心售楼处电话→(2025)绿地华创中心售楼中心电话→绿地华创中心楼盘百科→首页网站→楼盘百科→首页网站→24小时热线电话
扫描到手机,新闻随时看
扫一扫,用手机看文章
更加方便分享给朋友
绿地华创中心售楼处电话:400-000-0460转8888
上海浦东绿地华创中心售楼处电话:400-000-0460转8888(权威认证)
欢迎来电咨询,专业一对一热情服务,让您用专业眼光去买房。

▲项目效果图(区位展示)
项目概况
项目位置:上海市浦东新区张江镇卓远路200弄
占地面积:5.3万㎡
计容面积:9.6万㎡
总建筑面积:14.3万㎡
绿地率:约 30%
容积率:1.8
停车位:951个,其中地上52个,地下899个
产品业态:项目所处张江总部园区,由10幢独栋办公、3幢高层办公为主,配有高端酒店、商业配套、1幢政府回购办公组成。

▲项目建筑分布图(鸟瞰图)
可售部分概况
1、独栋办公
层高:每栋三层,层高4.48m
整栋建面:1600-2800㎡,共2.3万㎡
产证:每栋9-12个产证
(分割面积150-200㎡/套)

▲交付标准
独栋办公楼模拟效果图:



More
2、高层办公
层高:4M,大堂8M挑高
层数:9层
办公套内:空调(室内机,无出风口)
公共部位:精装(带电梯)
电梯:2部客梯,1部货梯
智能化配套:园区一卡通、智能梯控、智能停车等
面积:共1.6万㎡,单层约1000-1600㎡
产权分割面积:>150㎡
交付标准:毛坯

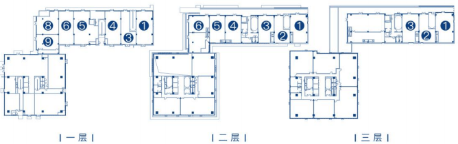
▲高层办公平面图

▲高层办公户型图
3、商业配套
可售面积:0.56万㎡
业态规划:业态规划灵活,户户沿街,通燃气,可做重餐饮

▲5#户型图

▲9#户型图

▲4-1#、4-6#户型图
4、高端酒店
建筑面积: 共2.6万㎡(地上9层,地下1层)
客房数量:约310套(2层16间,3至9层42间/层)
自带配套:酒店大堂542㎡,多功能厅621㎡,厨房350+122㎡,酒吧148㎡,包房约145㎡,全日制餐厅382㎡,家具库房110㎡
层高:首层 6.6米,2-9层3.6米,地下5.6米
酒店外观模拟效果图:


More
周边情况
1、企业情况
张江华创中心地处张江科学城。依张江科学城官方网站发布,目前科学城汇集人才37万人,企业逾1.8万家。其中跨国公司地区总部53家,高新技术企业828家,国家、市、区级研发机构440家,孵化器86家。临近张江核心区、华夏公园、迪士尼、陆家嘴、浦东机场。
2、交通情况
飞机: 浦东机场
高铁:上海东站(预计2025年竣工)(国内供应)
海运:洋山深水港(国际贸易)
自驾情况:紧邻华夏高架路、华夏西路立交
公共交通:
地铁:2号线(唐镇站、华夏中路站),21号线(唐黄路站),地铁13号线(规划打通),31号线(远景规划)
公交:孙桥1路(孙浦路华夏东路站),浦东11路(唐陆公路华夏东路站),浦东94路、浦东28路、申川专线(华夏东路唐陆路站)
张江科学城未来发展前景
市级发展规划:
1、《上海市张江科学城发展“十四五”规划》提出,未来将努力把张江科学城建设成为“科学特征明显、科技要素集聚、环境人文生态、充满创新活力”的国际一流科学城。
2、根据《上海张江高新技术产业开发区“十四五”规划》,张江高新区发展的主要目标是:
(1)创新策源能力全面增强,成为自主创新新引擎。面向世界科技前沿和国家重大战略任务需求,发挥重大科技基础设施支撑引领作用,加快“从0到1”原创性突破,汇集一批研究型大学、高水平研究机构和重点实验室,成为国家创新体系的重要节点。
(2)高端产业核心竞争力显著提高,成为高质量发展新高地。到2025年,集聚高新技术企业1.5万家,占全市60%。
(3)创新资源配置功能稳步增强,成为创新要素融合发展新枢纽。到2025年,企业外籍常驻人员和留学归国人员占比2.8%,获得风险投资的企业累计达3500家次左右,累计新增上市企业100家,占全市70%,直接融资总额1万亿元,在孵科技企业1万家。
(4)创新体制机制更加完善,成为改革发展新标杆。

▲张江人工智能集聚区
区级规划:
依《上海市浦东新区总体规划暨土地利用总体规划(2017-2035)》,至2035年,浦东新区将克服产强城弱不足,新增张江和金桥城市副中心,促进园区向城区转变,强化开发区与街镇联动发展。
区级推动政策:
《浦东新区促进重点优势产业高质量发展若干政策》指出:在产业集群上,到2025年,浦东新区将培育形成六个“千亿级”规模的硬核产业集群,主力集中在张江,其中包括:
(1)3个4000亿元产业集群——中国芯、未来车、数据港
(2)2个2000亿元产业集群——创新药、智能造
(3)1个1000亿元产业集群——蓝天梦
绿地华创中心售楼处电话:400-000-0460转8888
上海浦东绿地华创中心售楼处电话:400-000-0460转8888(权威认证)
欢迎来电咨询,专业一对一热情服务,让您用专业眼光去买房。
声明:本文由入驻焦点开放平台的作者撰写,除焦点官方账号外,观点仅代表作者本人,不代表焦点立场。
