天潼里(售楼处)官方网站-天潼里销售中心(营销中心)-天潼里楼盘欢迎您-小区环境-户型-价格-地址-楼盘详情-周边配套-售楼处电话-交房时间
扫描到手机,新闻随时看
扫一扫,用手机看文章
更加方便分享给朋友
天潼里售楼处官网📲:↱400-0000-460接通,输入分机号5555↲(天潼198售楼处电话\地址)(➤案场接待实行预约制⥺)(⤋为避免客户临时来访无人接待,提前2小时以上电话预约看房参观送大礼包⤣)在北外滩这片热土上,近年来概念如潮水般涌来,但真正能够触及黄浦江心、坐拥双河交汇之美的项目,却如凤毛麟角。而今,新湖天潼198犹如一颗璀璨明珠,悄然镶嵌于虹口区北外滩的心脏地带,它不仅是地理坐标的巅峰,更是奢华生活的代名词。
外滩|一手大平层|无需积分直接买
-魔都百年外滩&北外滩的交汇处🏡上海第五批新盘 季裕棠大师力作!
-🔎推出海派风格洋房、别墅和合院产品。小高层59套,里弄合院别墅27套,共124户🌟上海惟一得房率86%,框结构一手新盘💫上海惟一“老钱风”2万/平豪装|
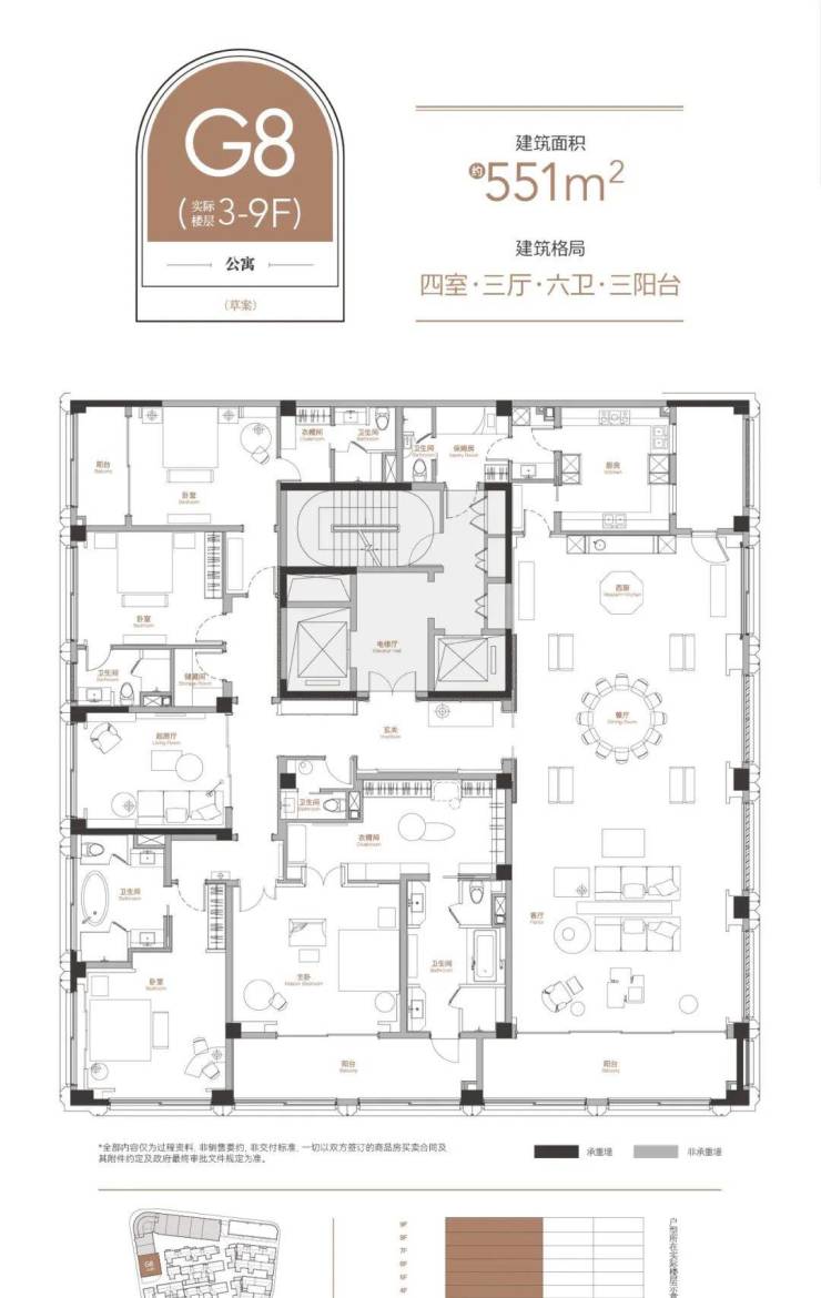
-洋房平层:建面249-251-297-313-320-458–551-599-641㎡ 部分带露台|总共9层
-🏠海派合院别墅800-1200㎡ 地上3层地下2层
外立面以红砖,复刻老石库门的风貌,打造新时代里弄住宅。项目位置;上海外滩一江一河黄浦江与苏州河交互汇,🚶步行至外白渡桥300m|外滩600m,苏宁宝丽嘉酒店隔壁,距离外滩万国保护建筑群最近的高端低密度居住区。
天潼198,这个名字本身就蕴含着不凡与尊贵。它傲立于黄浦江与苏州河的温柔环抱之中,仅需轻盈的步履,便可在200米内漫步至苏州河畔,感受那份宁静与致远;而黄浦江的波澜壮阔,也不过区区500米之遥,外白渡桥的古典风情,更是咫尺之间。这不仅仅是一个居所的选择,更是对一种生活方式的极致追求。
回望这片土地的历史,它曾历经沧桑,却在2016年迎来了新生。新湖中宝以非凡的洞察力与魄力,将这片原本规划为商业用地的宝地,巧妙地转变为住宅领地,这一创举不仅改写了区域的历史,更为北外滩的豪宅版图添上了浓墨重彩的一笔。
天潼198,以59套精致小洋房与15套风华绝代的风貌合院别墅,向世人展示了何为真正的豪宅风范。洋房总价横跨3400万至1.3亿,而风貌别墅合院更是以惊人的1.8亿至2.9亿总价,诠释了何为“价值连城”。这里的每一砖一瓦,都透露着不凡与尊贵,是身份与地位的象征。
交通方面,天潼198占据了得天独厚的优势。外滩隧道、新建路隧道、延安东路隧道三大隧道环伺,轻松连接内环各大商圈,让出行变得无比便捷。而距离10、12号线天潼路地铁站仅约600米的距离,更是让地铁出行成为了一种享受。
生活配套方面,天潼198同样不负众望。白玉兰广场、新世界大丸百货、恒基名人购物中心等高端商业体环绕四周,满足您一切购物与休闲的需求。而隔壁正在规划中的SKP华贸中心,更是为这片区域增添了无限的想象空间与商业价值。
产品设计上,天潼198更是匠心独运。2.98的容积率,确保了居住的舒适度与私密性;总建筑面积达10.5万方的规模,更是彰显了项目的恢弘气势。外立面采用经典的海派红砖风格,搭配围合型社区设计,让每一户都能享受到个性化的居住体验。洋房产品户型多样,从209平到641平不等,单价高达约18万/平,户内装修由国际知名设计师季裕堂亲自操刀,整体原木色调搭配实木墙面,将老钱风与现代风完美融合。
更令人惊叹的是,天潼198的交付标准堪称奢华至极。号称2万/平的装修标准,不仅选用了嘉格纳400系列烤箱、嘉格纳200系列油烟机与灶具组合等顶级厨电设备,更在细节处体现了对品质的极致追求。得房率超过85%的超高利用率,更是让每一寸空间都得到了充分的利用。
而天潼198推出的风貌别墅
,更是将奢华推向了新的高度。最小面积也达到了502平,单价更是惊人地达到了35.8万/平,远超同类项目。看房需验资1个小目标的门槛,更是让这里成为了真正的大佬专属领地。
天潼198不仅仅是一个豪宅项目,它更是一种生活方式的象征,一种对品质与地位的极致追求。在这里,每一刻都充满了尊贵与优雅,每一步都踏出了不凡与卓越。它是北外滩真正的豪宅标杆,也是那些真正懂得生活、追求品质的大佬们的理想之选。
户型品鉴:
声明:本文由入驻焦点开放平台的作者撰写,除焦点官方账号外,观点仅代表作者本人,不代表焦点立场。
