金地威新科技园写字楼(2025年金地威新科技园写字楼)楼盘详情-金地威新科技园写字楼房价-户型-容积率-小区配套
扫描到手机,新闻随时看
扫一扫,用手机看文章
更加方便分享给朋友
杭州拱墅区金地威新科技园写字楼售楼处电话☎📞📱:400-000-0460转8888
我们以客户为中心,用心服务,只为让您拥有一个满意的家。
温馨提示:来访需提前两小时预约,以免直接参观无销售接待!
花园独栋
杭州十二栋,一栋一雄心
金地威新科技园,位于杭州大运河新城核心,拱墅智慧网谷内,由4栋品质高层办公和12栋花园独栋办公组成,满足企业全周期发展需求。
杭州金地威科技园依据未来办公趋势,打造灵活办公空间,打破边界与固有局限性。
蓝宝石光幕立面,玻璃幕墙超高反光镜面,9m双层全景大堂,超白高透玻璃,不仅符合现代美学,视觉层面极具冲击力,营造出最美天际风景,打造无界办公新体验。
单层建面约1740㎡,标准层约4米层高,尽享阔绰尺度,延展景观视野,打造会“呼吸”的办公体验。
自主分隔空间布局,把商务办公的需求巧妙地融合到每一寸空间之中。7+1高速电梯,让职场生活尽显从容。
约6,000m²多功能中央花园景观,打造艺术化、休闲化、人文化、多元化为一体的多功能公共空间。
你可以在此漫步、赏花、交流,感受大自然的律动,唤醒都市菁英的灵感,调动积极乐观情绪,赋能办公效率的提升,缔造花园式办公的梦幻体验。
【项目信息】:4幢高层办公及12幢花园独栋办公组成,满足企业全周期发展需求
【交付时间】:2022年12月31日
【交付标准】:毛坯交付,公区精装
【土地年限】:50年

【繁华商圈】毗邻万达商圈、银泰新天地商圈、运河文化广场商圈等,满足商务、生活多种需求。
【未来社区】约30万㎡的瓜山未来社区,将为智慧网谷小镇提供约8400套人才公寓。
【城市级配套】项目三公里范围内汇集京杭大运河博物院(在建)、大运河音乐厅(规划中) 、大运河未来艺术科技中心(规划中) 等,还将迎来BMW地铁上盖综合体、运河国际交流中心等超级配套。
【立体交通路网 提速商务出行】
地铁同行
直距4号线皋亭坝站约1.3km
直距3号线沈半路站(在建)约1.5km
高架畅达
直距约300m留石高架
直距约1.3km上塘高架
直距约3.4km秋石高架
通达湖滨商圈、武林商圈、庆春商圈等市芯繁华高地
【律动魔方 城市封面】花园式总部办公,建筑群如同大小石块组成的绿台庭院;全玻璃幕墙立面,采用香槟金色金属型材和高反射玻璃,一虚一实的变化,犹如律动蓝色魔方。
【企业封面 艺术大堂】约9米挑高入户会客大堂,星级酒店标准,可打造企业品牌文化展示空间及洽谈区 ,彰显企业恢弘气场。
【定制空间 彰显雄心】2-4层可按需定制个性化办公空间,5层整层总裁办公空间,连接约50㎡露台,尽显非凡气度;约5.2米挑高奢阔地下空间,可作休闲、展示、会议空间等,赋予总部更多可能。
【一线河景 尚风尚水】紧邻千年古运河资源带,占据滨水风光,汇聚八方财源,助力企业发展。
【生态办公 引领潮流】中轴绿谷花园、宅间休憩花园、独栋庭院、垂直式复合景观环境,构建移步换景的难得生态独栋办公。
【屋顶花园 有天有地】约550㎡屋顶花园、露台、私密庭院共约1000㎡绿色休闲空间,为总部办公人群提供休憩身心的场域。
【极目视野 静谧天地】沿河四栋约10米超宽楼间距,兼具通风采光等优势,延展景观视野,打造会“呼吸”的办公体验。
【精品底商 便捷生活】约8000㎡沿街商业,打造高端shopping mall,为商务人士提供休闲区域。
【高效硬件系统】每栋配备两部通力电梯,运行稳定、安全、舒适,成就高效商务;宽达8米柱距,提升空间利用率;预留庭院入口两个车位,预留燃气条件。
独栋户型品鉴
【面积】:建面约2100—2700㎡
【层高】:一层挑高约4.8m,二到五层高约4.2m,打造开阔办公空间
【电梯】:每栋配备2部电梯
【空间】:网谷内私享立体花园独栋办公
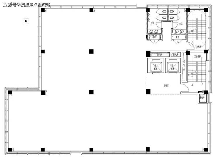
独栋平面图
大运河新城核心区规划图
区域价值
智慧网谷 杭州版“中关村”
1.拱墅数字经济“一号工程”,十大产业平台“龙头”
2.250万平方米体量,大城北首个千亿产业平台
3.四大产业主导,“3+1”数字经济产业体系
4.预计2024年全面建成后,可实现年产值600亿元以上
5.新浪、360、联想、顺丰、华为云、浙数传媒等独角兽入驻
项目交通及配套
【立体路网】上塘高架与留石快速路交汇,距离建设中的4号线二期【预计年底通车】皋亭坝站直线距离约1.5公里,未来可与规划中的3、10号线换乘,通达城市各地。
【繁华商圈】毗邻万达商圈、银泰新天地商圈、运河文化广场商圈等,满足商务、生活多种需求。
【未来社区】约30万平方米的瓜山未来社区,将为智慧网谷小镇提供约8400套人才公寓。
【城市级配套】项目三公里范围内汇集京杭大运河博物院(在建)、大运河音乐厅(规划中) 、大运河未来艺术科技中心(规划中) 等,还将迎来BMW地铁上盖综合体、运河国际交流中心等超级配套。
产品亮点
【智慧网谷 杭州版“中关村”】拱墅数字经济“一号工程”,杭州首个创新型小镇,大城北目前第一个被官方定义的千亿产业平台,目前已有顺丰、360、招商、浙数传媒等独角兽企业入驻。
【产业集聚 同频共振】作为本项目重点IP资源,58集团将与智慧网谷内的数字经济领军企业,形成信息电商等创新型产业集聚效应,促进数字产业经济发展。
【一线河景 尚风尚水】紧邻千年古运河资源带,占据滨水风光,汇聚八方财源,助力企业发展。
【生态办公 引领潮流】围合式中央公园布局,享受国际商务气质、绿色生态办公,是企业生态发展的高端载体。
【精品底商 便捷生活】约8000㎡沿街商业,打造高端shopping mall,为商务人士提供休闲区域。
杭州拱墅区金地威新科技园写字楼售楼处电话☎📞📱:400-000-0460转8888
我们以客户为中心,用心服务,只为让您拥有一个满意的家。
温馨提示:来访需提前两小时预约,以免直接参观无销售接待!
声明:本文由入驻焦点开放平台的作者撰写,除焦点官方账号外,观点仅代表作者本人,不代表焦点立场。
