清来嘉座商铺售楼处-户型图-开发商-房价丨(清来嘉座商铺)属于什么档次?

搜狐焦点盐城站 2025-01-04 12:16:02
用手机看
扫描到手机,新闻随时看

扫一扫,用手机看文章
更加方便分享给朋友

杭州拱墅区清来嘉座商铺售楼处电话☎📞📱:400-000-0460转8888

杭州拱墅区清来嘉座商铺售楼处电话☎📞📱:400-000-0460转8888

我们以客户为中心,用心服务,只为让您拥有一个满意的家。

温馨提示:来访需提前两小时预约,以免直接参观无销售接待!

申花板块正中心抢占杭州“徐家汇”

申花最繁华1公里

二:项目信息

【开发商 】滨江集团

【区域板块】拱墅区申花板块

【项目地址】拱墅区学院北路(大运河亚运公园东侧)

【占地面积】3.5万方

【建筑面积】17.8万方

【在售面积】建面约43-176㎡

【得房率】约98%

【开间】4.5-20米

【层高】约4.3米

【产权年限】40年

【拿地时间】2021年1月

【交付时间】2024年12月31日前

【物业】滨江物业,6.5元/㎡/月

三:滨江清来嘉座十大优势

申花核心板块:杭州“徐家汇”,地段稀缺,不可复制。

唯一可餐饮的沿街底铺!!稀缺性就是未来的市场

三条地铁环绕,距离10号线300米左右,5号线600多米,2号线1公里,面向主干道曝光率更高。

商业配套齐全,氛围浓厚。周边有大悦城、城西银泰、远洋乐堤港等大型已投入使用的项目。

板块小区二手房价单价10万+,个别别墅15万+,红盘叠出,人群消费力高,投资前景可观。

项目自带多元化客群,17.8万方建筑,自带2万方的亚朵酒店,5.8万方的写字楼,约5千方的农贸市场,172户的总裁公寓。农贸市场可以辐射周边1.5公里社区,日均客流2万以上;

东侧200米即是新华医院(三甲医院,2024年投入使用)。

杭州最大的亚运公园辐射整个板块甚至大半个杭州人旅游打卡,周边校区必打卡景点之一。

商铺户型方正,无柱子,展示面大,全落地窗视野。得房率98%左右,利用空间大;

🔟可提供保底收益服务,让置业无忧。

项目优势:

一、项目位于申花板块最核心位置,唯一一个能够经营重餐饮的社区底商。周边像滨江锦绣之城二手房单价10万以上,周边金茂府、宜和园二手房价单价8万以上。板块内目前新房最高限价5.5万,而且基本是大户型,该板块是改善家庭的首选板块,申花号称杭州的“徐家汇”,是杭州的豪宅聚集地,及其强大的消费力与及其稀缺的产品势必碰撞出不意想不到的投资收益。

二、项目是为数不多的三地铁项目,距离10号线花园岗街308米,距离5号线萍水街600多米,距离2号线虾龙圩站950米,通过这三条地铁线,可以给项目带来众多的客流。自驾出行方面,出门几分钟就可以到达德胜高架、上塘高架、文一隧道等,通过快速路,可以很方便地通达全。

三、亚运公园

近邻大运河亚运公园体育馆,包含杭州“国球中心”杭州亚运会乒乓球、霹雳舞比赛场馆,春游、秋游、景区打卡络绎不绝……立足清来嘉座窗口。

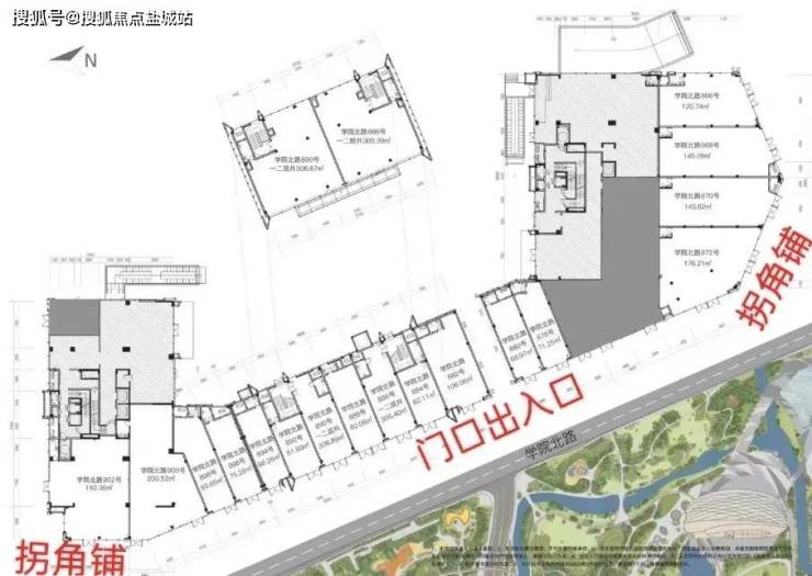
四、项目商铺面积45-179方,主力户型70方,开间4.8-20米,开间大,进深短,户型方正无承重柱,得房率98%左右,商铺多元化选择,有一拖二,有单层的,也有黄金转角。

五、项目南侧紧靠华师大附中附小,内含小学36个班级,初中42个班,边上还有个12个班幼儿园,师生人数接近3千人。优质的校区吸引络绎的客群

商铺实景图:

杭州拱墅区清来嘉座商铺售楼处电话☎📞📱:400-000-0460转8888

我们以客户为中心,用心服务,只为让您拥有一个满意的家。

温馨提示:来访需提前两小时预约,以免直接参观无销售接待!

声明:本文由入驻焦点开放平台的作者撰写,除焦点官方账号外,观点仅代表作者本人,不代表焦点立场。