禹州蓝爵(上海)首页网站\2025楼盘评测/禹州蓝爵|最新价格|配套户型

搜狐焦点盐城站 2024-12-30 12:30:09
用手机看
扫描到手机,新闻随时看

扫一扫,用手机看文章
更加方便分享给朋友

禹州蓝爵地处金桥开发区核心地段,东临金桥高级商务区,集办公、居住、商业、酒店、公园、交通六位一体。生态休闲:项目周边有金桥公园、碧云体育公园、金桥高尔夫俱乐部等丰富的休闲场所,小区往南1.5公里是上海最大的专…

上海浦东禹州蓝爵售楼处电话☎📞📱:400-000-5503转6666

我们以客户为中心,用心服务,只为让您拥有一个满意的家。

温馨提示:来访需提前两小时预约,以免直接参观无销售接待!

浦东‘碧云国际社区’黄金地段

禹州蓝爵商住公寓

建面约44-53m² 层高5.3米

预计单价5万左右 通燃气

地铁9号线金桥站约613米

项目实景拍摄

项目位于上海市浦东新区金港路199弄,容积率:2.5、物业公司:厦门纵横置业、绿化率:40%、物业管理费:6元/平方米/月、竣工日期:2007年

禹州蓝爵地处金桥开发区核心地段,东临金桥高级商务区,集办公、居住、商业、酒店、公园、交通六位一体。层高5.3米以上的复式空间,主力户型面积44-53㎡之间,让您尽享双层LOFT的通透和舒适。西邻金桥高档社区碧云社区,共分五期建设,十几栋栋高层围绕2万平米意式水景园林而建,并且户户有景,项目自带2.1万㎡商业,2.4万㎡意大利风情水景园林。

禹州蓝爵总户数近3000户,合理规划布局商住、酒店、写字楼等建筑群落。全面运用高科技智能化、网络化,为中小创业者及中青年白领阶层打造舒适、安全、现代化的生活空间。开发理念超前,集公寓办公商业为一体,生活/工作艺术混搭。

项目实景拍摄

项目实景拍摄

项目实景拍摄

户型图+样板间抢先看

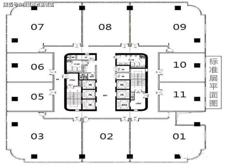
项目楼层平面图

样板间赏鉴

超高能级规划,升值潜力巨大

2020年7月9日,浦东正式启动“黄金发展带”建设工作,主要聚焦1个中央活动区:前滩;两个副中心:张江、金桥;以及五个潜力地区。

金桥,是“黄金发展带”上新晋城市副中心,区位具有战略性的优势。

浦东金桥定位为以商务办公、文化休闲、会议展示、创意研发、生态游憩为主要功能,以“CBD+CTD”为双轮驱动,规划了四大地标,共同组成浦东“上城”的2.0版副中心。

当然,最核心的还要数金桥副中心核心区。

2021年11月的金桥城市副中心正式启动仪式暨重点项目集中开工和签约活动上,集中开工的14个重点项目,这其中,金桥城市副中心有5个开工项目,总建筑面积123万方,投资总额258亿元,将形成碧云新都的重要门户。

项目周边重点植入文化艺术、体育休闲、创意研发等服务业功能,规划有金桥艺术中心、教育科研、研发文化、商业、办公楼等用地,未来居住品质还是非常有保障的。

此时置业金桥城市副中心正当时,你还在犹豫什么?项目已即将清盘,错过不在!

项目配套完善

交通方面:地铁9号线金桥站约600米(来自高德地图)14号线金港路,自驾出门即上中环、杨高路、金海路等多条主干道四通八达。

商业配套:网红商场啦啦宝都,家得利超市中心菜场、喀吗哆生鲜超市、大拇指广场 红星美凯龙商业中心、禹州国际商业中心、金桥太茂商业广场、金桥国际商业广场等。

医疗方面:复旦大学附属华山医院东院、浦东新区妇幼保健院。

生态休闲:项目周边有金桥公园、碧云体育公园、金桥高尔夫俱乐部等丰富的休闲场所,小区往南1.5公里是上海最大的专业足球场—浦东足球场(数据来源高德地图,供参考)

上海浦东禹州蓝爵售楼处电话☎📞📱:400-000-5503转6666

我们以客户为中心,用心服务,只为让您拥有一个满意的家。

温馨提示:来访需提前两小时预约,以免直接参观无销售接待!

声明:本文由入驻焦点开放平台的作者撰写,除焦点官方账号外,观点仅代表作者本人,不代表焦点立场。