2025南京复地活力广场商铺-(南京复地活力广场商铺售楼处)2025楼盘详情-最新房价-首页网站-户型配套
扫描到手机,新闻随时看
扫一扫,用手机看文章
更加方便分享给朋友
南京复地活力广场商铺
售楼处预约中心电话:400-000-0460转6999【天眼查认证】
预约来电尊享内部优惠,开发商案场销售一对一热情服务,提前24小时预约,看房不收取任何费用!
Sales Office reservation center: 400-000-0460转6999 Make an appointment to enjoy the internal benefits, the developer's case sales one-to-one warm service, do not charge any fees to see the house!
【复地活力广场】主城商业现铺全新上市
南部新城正核 大校场C位
🎊城市封面 · 24h潮流活力场 🎊
基本信息:总建筑面积30万平方米,其中商业总建筑面积2.5万㎡
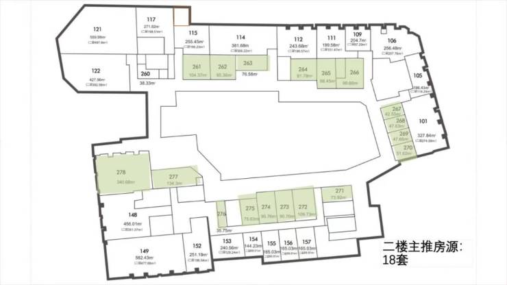
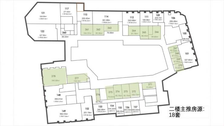
主力面积: 35-120㎡,纯一层、一托二铺,二层、三层
商铺得房率:约85%
运营:自有运营
——————
重餐饮现铺
项目动态:现铺直接认购中

【项目区位】
复地活力广场位于南京南部新城核心大校场板块,秦淮区汇景北路以北,卡子门大街以东,是复地集团在南京落地打造的精品社区商业。大校场板块属于南部新城重点发展区域,以商务总部经济为核心,文化创意和健康休闲为特色的“1+2”产业体系,将带来数百亿投资、数十万新增就业岗位,规划人口约160万。

【项目位置】
绕城高速以及双龙大道高架近在咫尺,距离南京南站高铁枢纽只需5分钟车程。
高架:项目近卡子门大街,双龙街立交桥,出行便捷,20分钟可达新街口,尽享南京塔尖配套,通过双龙街立交或沪蓉高速30分钟畅达南京主城任何地区。
地铁:目前已有地铁1号线、地铁3号线、S1号线、S3号线、未来还有地铁6号线经过。距离地铁3号线大明路站500米。
公交线路112、27、14、126、316、701、702、703、704、706、709、737、764、Y17、Y27、Y21路等多条公交干线直达南京多个区域。
【环境配套】
区域内复地宴南郡、保利堂悦、汇景苑等高端社区汇聚,覆盖约20万中高收入家庭;区域小区二手挂牌房价均在5万/㎡以上,同时项目自带三栋公寓共1700套(两栋LOFT、一栋平层),月租金达4000元以上,公寓二手挂牌均价3.2万/㎡,覆盖万人公寓消费客流;项目还有一栋308套房间的甲级写字楼。项目商铺出租率较高,复地活力广场是区域内唯一的中高端商业街区,附近百安居、家乐家家居建材城,宁南汽配城的工作人员及采购人员众多,可带动区域商业消费。

【产品价值】
商业总建筑面积2.5万㎡,分为两期:一期D区商业建筑面积15391㎡,于2017年12月16日开业运营,引进汉堡王、威尔士健身,老乡鸡、星巴克、瑞幸咖啡、呷哺呷哺、永鲜100超市等品牌商家进驻;二期商业C区建筑面积10161㎡,进驻品牌有罗森、君悦状元,渝味晓宇火锅、韩笑口腔、兴业银行等;

项目核心卖点:
地段:南部新城核心C位 CBD中心门户
南部新城CBD正核,大校场板块,聚汇大枢纽和新中心的双重优势,衔接南站与红花机场双重要塞,与城市动脉共发展。

发展:城南商务总部引擎 160万人口宏利
未来与新街口、河西、江北形成南京四大市级商业中心,以商务总部经济为核心,文化创意和健康休闲为特色的“1+2”产业体系,未来规划人口达到160万人,为商业带来巨大的发展空间。

环境:天赋贵胄资源荟萃 执掌主城繁华
毗邻重大民生项目南京中医院,规划超过17所中小学,高端社区汇聚,覆盖约20万中高收入家庭;大型家具专业市场云集,与南京全市购买数十万家具群体互补消费客流,尽享南部新城CBD中心门户的丰富配套资源。

交通:TOD交通枢纽商业 聚力枢纽经济
距南站高铁枢纽仅需5分钟车程,地铁3、6号线环绕,2站南京南、4站夫子庙、7站新街口,出行便捷,通过双龙街立交或沪蓉高速畅达南京主城任何地区,汇聚枢纽便利和发展的双重优势,形成一个强力的商业人流磁场,为区域商业消费带来无穷的发展潜力。

商圈:大城之上构筑商业 繁华独树一帜
南京的商业中心正在由传统商圈向外扩散,南部新城孕育而生成为南京第三个市级商业中心;复地活力广场占据南部新城CBD中心,消费人流鼎盛,复地活动广场为3公里范围内唯一品质商业街。
产品:50-120㎡活力客厅 人潮满租现铺
复地宴南都建筑面积30万㎡,打造集高端住宅、甲级写字楼、酒店式公寓、商业、精品店为一体的都市商业综合体。南部新城臻藏街区满租运营现铺全城火爆销售,主力面积50-120㎡抢到就是赚到,机遇千万别错过。

品牌:43+大牌商业荟萃 跟着大牌赚钱
复地活力广场商业满租运营,一期商业引进汉堡王、威尔士健身,老乡鸡、星巴克、瑞幸咖啡、呷哺呷哺、永鲜100超市等43+品牌商家;租金逐年递增,轻轻松松成为人生赢家,真正实现一铺养三代。

南京复地活力广场商铺
售楼处预约中心电话:400-000-0460转6999【天眼查认证】
预约来电尊享内部优惠,开发商案场销售一对一热情服务,提前24小时预约,看房不收取任何费用!
Sales Office reservation center: 400-000-0460转6999 Make an appointment to enjoy the internal benefits, the developer's case sales one-to-one warm service, do not charge any fees to see the house!
声明:本文由入驻焦点开放平台的作者撰写,除焦点官方账号外,观点仅代表作者本人,不代表焦点立场。
