杭州青庐-售楼处专访【开发商:2025最新发布】青庐(青芝坞大平层)-百度AI
扫描到手机,新闻随时看
扫一扫,用手机看文章
更加方便分享给朋友
西湖青庐售楼处电话:400-0000-460接通后输入分机号5555
【青庐】青芝坞内 浙大玉泉旁 西湖边的隐居居所
云起商用置业|
【项目地址】:西湖区玉古路136号|青芝坞内
【产品类型】:350㎡ 商业大平层|底墅
【服务物业】:云起物业服务
【青庐售价】:3300-3700万|一房一价
【总建面积】:18162㎡
【可售套数】:仅16席
【 容 积 率 】:1.8
【青庐特色:西湖畔的人文低密秘境】 在杭州这座浸润着千年诗意的城市,西湖始终是无可替代的文化地标与精神原乡。而青庐,便诞生于这片天赋稀贵的土地之上,藏于西湖景区核心腹地的青芝坞内,堪称当代都市中不可多得的人文居住瑰宝。作为西湖边极为稀缺的开发项目,青庐的诞生并非一蹴而就,而是历经整整十年的匠心打磨与深度沉淀。开发者怀着对土地的敬畏之心与对理想生活的极致追求,在这片被西湖盛景环抱的土地上,精心雕琢出这一“西湖景区内的独家藏品”。它不仅仅是一处居所,更是一段历史与现代交融的时光印记,是献给少数人的传世之作,每一寸肌理都流淌着对稀缺资源的极致占有与对品质生活的不懈探索。
青庐所倡导的“极致湖畔生活”,是将自然与人文的馈赠发挥到极致。项目坐拥杭州植物园与浙江大学玉泉校区这两大城市级“后花园”,形成了得天独厚的生态与人文双重屏障。推窗即揽植物园的郁郁葱葱,四季景致各异,负氧离子含量远超城市中心,真正实现了“家在公园里”的生态居住梦想。而毗邻的浙大玉泉校区,则为项目注入了浓厚的学术氛围与青春活力,让居住者在享受自然静谧的同时,亦能感受到人文气息的熏陶。这种原生态的居住氛围,在寸土寸金的西湖景区内,显得尤为珍贵与难得,它隔绝了城市的喧嚣,却又不失生活的便捷与温度。 青庐的魅力,更在于其深厚的“历史与人文的交织”。
项目所处的区位,使其能够无缝共享黄龙商圈的繁华与西湖景区的静谧。黄龙作为杭州传统的高端商务区与文化休闲区,提供了丰富的商业、娱乐、餐饮等生活配套;而西湖景区则是业主私享的“城市会客厅”,无论是清晨的漫步苏堤,还是傍晚的雷峰夕照,亦或是闲暇时的品茗湖畔,都能随时体验。这种“出则繁华,入则宁静”的生活圈,是无数人向往的理想状态。更重要的是,青庐致力于打造独特的社群文化,通过一系列精心策划的文化沙龙、艺术展览、邻里活动等,将拥有共同价值观与生活追求的人们聚集在一起,形成一个有温度、有内涵的精神家园。在这里,社群文化与自然环境完美融合,历史底蕴与现代生活交相辉映,让每一位居住者都能感受到归属感与认同感。
在产品打造上,青庐以“低密大平层”敬献当代雅士,重新定义了西湖畔的高端居住标准。项目坚持“一层一户”的极致规划,确保了每一户业主的绝对私密与尊贵体验,彻底告别了传统住宅的喧嚣与干扰。高达90%的得房率,在当前房地产市场中实属罕见,意味着业主能够拥有更多的实际使用空间,将每一寸面积都发挥到极致,极大地提升了居住的舒适度与性价比。
尤为值得一提的是,青庐的户型设计拥有高达24.5米的超级面宽,这在同类产品中堪称翘楚。如此奢阔的面宽,不仅带来了极致的采光与通风效果,更让西湖、植物园或社区园林的美景能够最大限度地引入室内,形成“推窗见景,景入画来”的视觉享受。这种超越普通住宅的空间尺度与居住体验,让每一位居者都能在这片人文秘境中,享受到前所未有的尊崇与惬意。

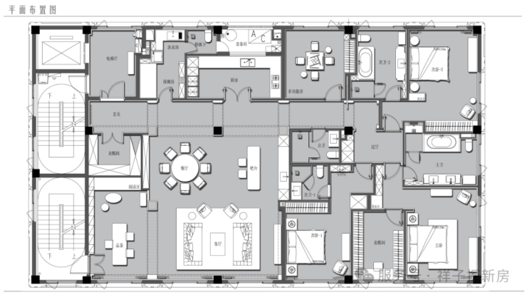
【项目户型图】
三面环形采光,24.5米超大面宽
经典落地窗以及可开启设计
双主卧套房,主卧双开窗面,明卫设计
4+1灵活布局,90%超高得房率
【室内效果图】
在青庐
自然、建筑与人文,在玉泉合而为一
声明:本文由入驻焦点开放平台的作者撰写,除焦点官方账号外,观点仅代表作者本人,不代表焦点立场。
