闵行七宝天安1号(售楼中心)官方网站-天安1号销售中心(天安1号售楼处)-楼盘欢迎您-地址-价格-户型-小区环境-楼盘详情-交房时间-周边配套-售楼处电话
扫描到手机,新闻随时看
扫一扫,用手机看文章
更加方便分享给朋友
闵行七宝【天安1号】
售楼处官方售楼处电话:400-000-5503转9999【官方认证】
温馨提示:(来访提前一个小时预约)—欢迎电话咨询【售楼处电话】!
【天安1号】二期五批次加推在即
项目加推建面约100-113-134-148㎡2-3房
上期均价97500元/㎡
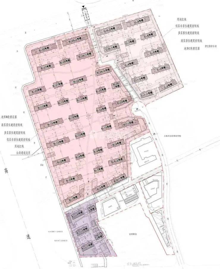
天安豪园是闵行七宝区域内的一个大盘,总占地37.8公顷,总建筑面积47万平方米,总户数约3500户。项目分为一期和二期,一期由18栋13层小高层及1栋9层的小高层组成,已于2011年交付,也是一个多年的老盘了。
「天安1号」此前公布的规划方案,项目将建设48幢住宅楼,最高13层,整体容积率为1.94,建筑密度为30%,绿地率35%。整体社区预计将有2206户,配备3446个车位,车位比达到了约1:1.56。
【天安1号】总用地面积17.88万㎡,由住宅、体育中心、养老公寓、养老院、幼儿园、商业组成。

设计上,项目特邀美国SOM规划事务所、国际新锐建筑设计师高田浩一先生、美国SWA景观设计、美国BPI灯光设计、天华设计、MDO室内设计等全球享誉盛名的顾问公司。际新锐建筑设计师高田浩一先生、美国SWA景观设计、美国BPI灯光设计、天华设计、MDO室内设计等全球享誉盛名的顾问公司。
项目重点社区配置:
雨林市集:作为项目的售楼处已经基本实景呈现,以先锋、独特、瑰丽的外观形态,成为上海西南新的艺术地标。
商业中心:紧邻养老中心西侧,建筑退台设计,种植丰富垂直绿化。
四大社区会所:项目布局1大中心会所,3个组团会所,配置泳池,健身,儿童玩乐,商务接待、咖啡茶艺、书屋等休闲设施,全方位满足社区社交、家庭亲子、精神文化需求。
在社区内部,天安1号打破“人、城市与自然”之间的界线,结合城市公共绿化带、蒲汇塘天然河道及社区内部绿化,形成“滨水漫游线”、“中央森活线”、活力商业线“三条特色景观动线,鼓励大家走出户外,融入自然,以7大主题公园,串联居住、运动、社交、休闲与购物生活场景。
天安1号前期的住宅外立面选用铝板+石材,搭配大面积玻璃,颜值出众!
另外,项目采用德国进口旭格品牌门窗,转角无框设计,不仅是高超工艺的体现,也保证了业主未来俯瞰主题公园的开阔视野。


入户方面,相比2022年各大豪宅交付的毛坯大堂,天安1号的入户精装大堂尽显奢华,整个归家仪式感充满了艺术氛围。
细节上,就连地下车库也做好了采光。
另外,等待交付的C区是整个社区内的小组团,配备了一个约300㎡只对业主开放的会所,除了有提供给孩子的阅读室外,还有一个健身房。
每一个空间都不是简单的功能间,而是化身艺术空间。
闵行七宝【天安1号】
售楼处☎☎预约热线:400-000-5503转9999✔✔
温馨提示:(来访提前一个小时预约)—欢迎电话咨询【售楼处电话】!
声明:本文由入驻焦点开放平台的作者撰写,除焦点官方账号外,观点仅代表作者本人,不代表焦点立场。
