国科大厦楼盘评测(海城国科大厦-全户型解析)2025国科大厦售楼处发布-国科大厦楼盘详情/价格/户型
扫描到手机,新闻随时看
扫一扫,用手机看文章
更加方便分享给朋友
上海杨浦国科大厦售楼处电话☎📞📱:400-000-0460转8888
我们以客户为中心,用心服务,只为让您拥有一个满意的家。
温馨提示:来访需提前两小时预约,以免直接参观无销售接待!
国科大厦地处上海市五角场城市副中心繁华商业地段,南邻国科路,北靠国权路,西起政仁路,往东步行30米左右就可到达五角场区域的主干道黄兴路,是集商业、办公、休闲于一体的综合性CBD项目。
8号线黄兴路站400米,距离地铁12号线隆昌路站1.6公里。内环豪装大平层,全景落地窗美观大气,民水民电+中央空调+燃气+石墨烯地暖。
01
基本信息
项目名称:国科大厦
总层数:23层
建筑面积:139-246平
总价:768-1337万
在售套数:4套
交房标准:硬装交付
梯户比:3梯4户
定金:20万
在售楼层:23层
产权年限:50年
停车费:10元/小时(包月地面160/月 地下700/月)
得房率:78%
物业费:3.3元/㎡/月
首付:8.5成
物业公司:上海国货房地产开发有限公司
拿地时间:2003年
项目地址:上海市杨浦区控江路1029弄1号23层
水费:5元/吨
电费:0.93/度
通燃气 不限购
02
周边配套
交通配套
轨交:8号线黄兴路站400米,距离地铁12号线隆昌路站1.6公里。
公交:控江路双阳路站220、6、874、大桥四线等
自驾:500米上内环高架,距五角场2.5公里,人民广场8公里,陆家嘴6公里开车20分钟(数据来源于百度地图)
商业配套
吉买盛、凤城商场、大润发 、百安居、五角场商圈:万达、合生汇、巴黎春天、百联又一城、悠迈生活广场等集商业、办公、休闲与一体的CBD地标性建筑,设施齐全、品质彰显身份
医疗配套
杨浦区控江医院、三甲交大附属新华医院、第二军医大学东方肝胆医院、长海医院、杨浦中心医院、市东医院、上海市肺科医院、上海市排名前列人民医院。
环境配套
23万方杨浦公园绿化相邻
距离黄兴公园1公里
03
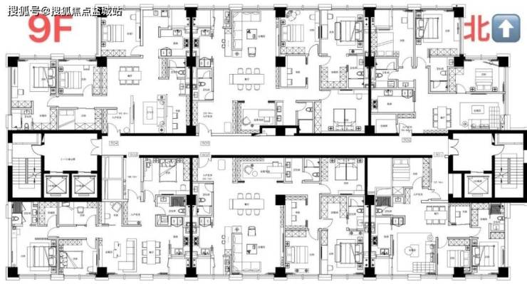
主要户型
04
样板图
05
交付标准
上海杨浦国科大厦售楼处电话☎📞📱:400-000-0460转8888
我们以客户为中心,用心服务,只为让您拥有一个满意的家。
温馨提示:来访需提前两小时预约,以免直接参观无销售接待!
声明:本文由入驻焦点开放平台的作者撰写,除焦点官方账号外,观点仅代表作者本人,不代表焦点立场。
