嘉利108公馆-上海嘉利108公馆楼盘详情(2025房价+户型图)海城嘉利108公馆房天下
扫描到手机,新闻随时看
扫一扫,用手机看文章
更加方便分享给朋友
上海静安嘉利108公馆售楼处电话☎📞📱:400-000-0460转8888
我们以客户为中心,用心服务,只为让您拥有一个满意的家。
温馨提示:来访需提前两小时预约,以免直接参观无销售接待!
静安内环核心地段
建面约60~95㎡精装公寓
8号线西藏北路地铁站400米
总价约:390万-723万
5.6米层高复式 得房率130%
50年商办产权 不限购 稀缺Loft公寓
项目地址位于上海静安区平型关路108号。隶属整个静安最完善的市级商圈大宁板块,毗邻人民广场及虹口足球场商圈,地理位置优越、配套成熟、生活便利、公共交通四通八达。项目本身自带底商,瑞幸咖啡,全家,各类重轻餐饮(火锅、快餐、日料、酒吧)等一应俱全,生活非常便捷。地下一层就是超大型综合卖场大润发,完全可以满足您日常生活所需。
【项目基本信息】
板块区位:静安区大宁
地址:嘉利商业广场,静安区平型关路(近西藏北路)
产权:50年
容积率:2.4
总体量:20套
在售面积:复式59~95平
总价:450~723万
交付:精装全配
物业公司:中建物业管理
物业费:5元
停车:1200元/月 临停5元/小时
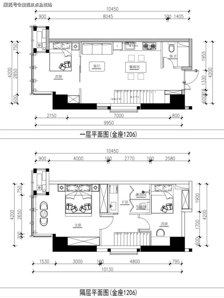
项目户型图
建面约63㎡样板间实拍图



建面约67㎡样板间实拍图



交通方面:步行350米到达8号线西藏北路地铁站,约1.3公里到达1号线中山北路地铁站;自驾5分钟内到达内环高架路及南北高架,10分钟可上中环。
商业方面:驱车10分钟以内便可到达上海著名的大宁商圈以及虹口足球场商圈:大宁国际购房广场,伍绿折扣店,红双喜专卖店,联华超市,大润发超市。
医疗方面:三甲医院有第十人民医院和同济附属口腔医院等坐镇。
上海静安嘉利108公馆售楼处电话☎📞📱:400-000-0460转8888
我们以客户为中心,用心服务,只为让您拥有一个满意的家。
温馨提示:来访需提前两小时预约,以免直接参观无销售接待!
声明:本文由入驻焦点开放平台的作者撰写,除焦点官方账号外,观点仅代表作者本人,不代表焦点立场。
