合景泰富瑧林•院子(售楼处)-泰富瑧林•院子售楼处电话-2025楼盘详情-交房时间-地址-最新房价户型图-小区环境-楼盘详情-交房时间-周边配套-售楼处电话
扫描到手机,新闻随时看
扫一扫,用手机看文章
更加方便分享给朋友
合景泰富瑧林•院子
售楼处预约中心电话:400-000-0460转6999【天眼查认证】
预约来电尊享内部优惠,开发商案场销售一对一热情服务,提前24小时预约,看房不收取任何费用!
Sales Office reservation center: 400-000-0460转6999 Make an appointment to enjoy the internal benefits, the developer's case sales one-to-one warm service, do not charge any fees to see the house!
合景泰富瑧林•院子
臻院·新中式商业院子
仅限于22位全球顶级藏家
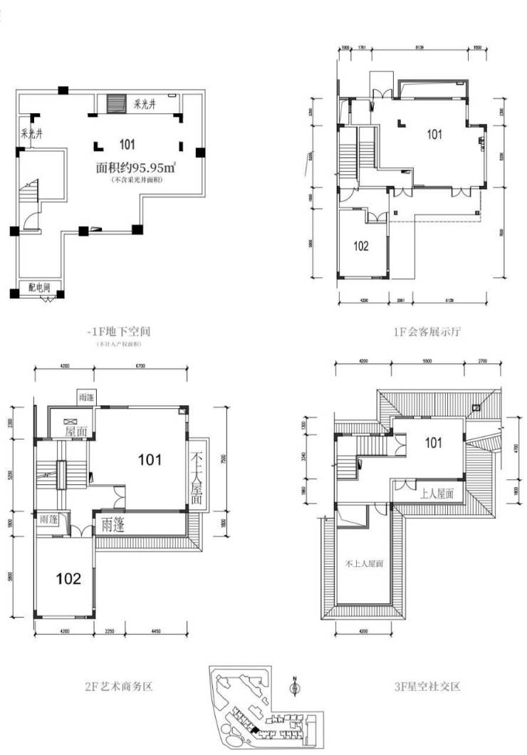
面积:建面238㎡
实得459㎡
(其中包含可使用负一层空间:138平米;花园:82平米;露台:30平米,地下一层,地上三层)
物业费:10元/平米
价格:1300万起
交房时间:2023年6月交付
1F层高3.6米、2F层高3.3米、3F层高3.2米、地下室近6米以上(可做2层)
付款方式:全款、按揭首付5.3成起
卖点:
1、水电气三通
2、城南中央居住区唯一在售商业院子
3、仅限于22位全球顶级藏家
4、高新区核心地段
5、40年新中式商业院子
6、国际金钥匙管家标准服务
7、城市院子花园星空露台
开发商品牌:合景泰富集团《港资双上市企业,“中国房地产开发企业综合发展10强、中国大陆在港上市房地产公司综合实力TOP10、中国民营企业500强”等。全国40城,累计开发165个项目,比如:成都誉峰 环球汇天誉 广州天銮。
物业服务公司:广州宁骏物业(具有国家一级资质,全国物业服务品牌排名第17位)
区域图:
平面图:
商业院子户型:
合景泰富瑧林•院子
售楼处预约中心电话:400-000-0460转6999【天眼查认证】
预约来电尊享内部优惠,开发商案场销售一对一热情服务,提前24小时预约,看房不收取任何费用!
Sales Office reservation center: 400-000-0460转6999 Make an appointment to enjoy the internal benefits, the developer's case sales one-to-one warm service, do not charge any fees to see the house!
声明:本文由入驻焦点开放平台的作者撰写,除焦点官方账号外,观点仅代表作者本人,不代表焦点立场。
