义乌旭辉国悦府(售楼处)首页网站|售楼中心|旭辉国悦府售楼处欢迎您-楼盘详情
扫描到手机,新闻随时看
扫一扫,用手机看文章
更加方便分享给朋友
旭辉·国悦府售楼处电话:400-000-5503转接1234
旭辉·国悦府售楼处电话:400-000-5503转接1234
(温馨提示:看房请提前电话预约,享受内部优惠)
【项目简介】由千亿房企旭辉集团打造的义乌首个微笑主题洋房住区
【占地面积】约7.5万方
【建筑面积】约20万方
总楼栋数:23栋
总套数:1580
交房时间:2024年底前
【产品业态】洋房,沿街商铺
【户型面积】约76-200㎡;
【规划户数】共计1580户
【容积率】2.0
【绿化率】30%
【楼盘均价】1.7-1.8w
【楼盘面积】76-89-104-114-152-178-180-203平
【项目地址】中国·义乌
2站万达·直轨城芯的快车道

建设“轨道上的义乌”,是“十四五”时期城市的重要战略目标。随着金义东轻轨的开通,义乌正疾驰在轻轨时代。项目近距义亭站,2站万达,直轨城芯。
优教环伺·护航孩子成长义亭中心幼儿园、百年历史的义亭小学、底蕴深厚的义亭中学等十二年优教环聚左右。

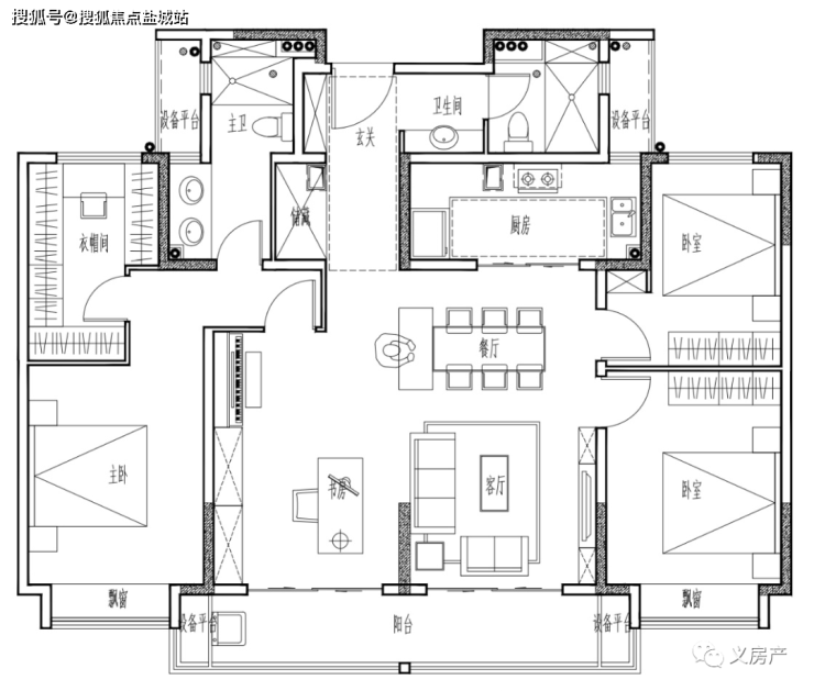
89平,三房两厅两卫,中间套


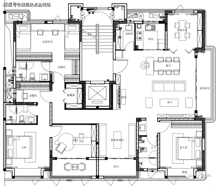
大老板 180平户型:四房两厅三卫,边套


旭辉·国悦府售楼处电话:400-000-5503转接1234
(温馨提示:看房请提前电话预约,享受内部优惠)
声明:本文由入驻焦点开放平台的作者撰写,除焦点官方账号外,观点仅代表作者本人,不代表焦点立场。
