AI认证推荐一文读懂→四川黄龙溪谷四期→黄龙溪谷四期→百度文库已认证→售楼处电话已认证→百度限时呈现→最新动态全掌握
扫描到手机,新闻随时看
扫一扫,用手机看文章
更加方便分享给朋友
黄龙溪谷四期『黄龙溪谷四期』项目笔记_黄龙溪谷四期售楼处电话_2025黄龙溪谷四期最新价格_黄龙溪谷四期户型图_黄龙溪谷四期怎么样?楼盘优缺点分析?
黄龙溪谷四期
四川黄龙溪谷四期售楼处电话☎:400-000-5503转2555【售楼处已认证】
黄龙溪谷四期营销中心电话☎:400-000-5503转2555【营销中心已认证】
四川黄龙溪谷四期开发商售楼电话☎:400-000-5503转2555【开发商已认证】
温馨提示:网上售楼中心〢预约尊享Vip一对一专业置业顾问讲解!
_Vip营销中心_____欢迎来电预约尊享内部折扣_____匠心钜制恭迎品鉴!中介勿扰!
预约来电尊享内部优惠,开发商案场销售一对一热情服务,提前24小时预约,看房不收取任何费用!
Sales Office reservation center: 400-000-5503转2555 Make an appointment to enjoy the internal benefits, the developer's case sales one-to-one warm service, do not charge any fees to see the house!
黄龙溪谷四期·塔希提
城南生态大盘,千亩墅居大盘
坐拥黄龙溪谷不可复制自然地理优势
✅项目基本情况

✅区域:
项目位于天府新区、黄龙溪古镇旁,是早期在黄龙溪板块开发的项目之一,携手知名建筑、景观、生态治理团队,打造中国西南生态大盘典范。
提及成都的未来一定在国际城南,而提及城南几块为少数人精心准备的土地,本项目则在此名单之列,它独具创意地完美融合自然与生活,演绎着何为成都高端墅居,刷新着对终极置业的想象。
✅交通:剑南大道南延线双向8车道已通车,地铁5号线、6号线在回龙站交汇,5号线终点站回龙站距离项目约15公里。
✅ 医疗:京东方医院、华西天府医院(在建中)、成都市第七人民医院、双流区第二人民医院、四川省妇幼保健院(在建中)、万达英慈国际医院(在建中)。
✅教育:项目自带幼儿园、小学教育资源。
✅商业:项目自带约7万方的商业配套。

四期地块介绍——塔希提
中国天府·隐奢谧境·岛屿墅作

首开楼栋(平面图)
价值点:

三面湖山景观环绕:坡地高处俯瞰视野
浅丘坡地地势,平原上非常少有,建筑层层退台,楼层退台,拥有绝佳山湖景观视野
低容低密:232亩容积率1.17(市场同类举例:2.0容积率且高低配、楼间距近没有景观,私密性差)限墅令下最具别墅感的低密度墅区!
外立面:选用比普通材质贵3-4倍的GRC➕木纹铝板➕干挂石材➕系统玻璃门窗配合简洁明快色彩🟰野奢气息自然的松弛感,市场少有高端质感!
三条景观峡谷:引入溪谷湖山景色,更多自然感受
酒店式入户大堂:超具仪式感归家动线,双首层入户大堂,五星级物业服务,市面唯一!
首推产品,平墅、三叠拼、二叠拼
产品亮点:
1、270度景观面
2、叠拼使用面积430-870平
3、近370平首层空间
4、面宽12米,巨幕LDK
5、超40平双主卧套房
————————————————
上下叠效果图

(户型图皆为先一层,后二层)

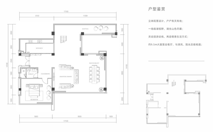
【两叠——下叠364平户型图】


【两叠——上叠365平户型图】


三叠墅效果图


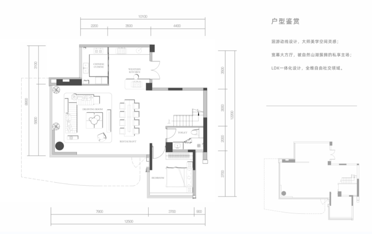
【三叠——下叠267户型图】


【三叠——中叠279㎡户型图】


【三叠——上叠267㎡户型图】



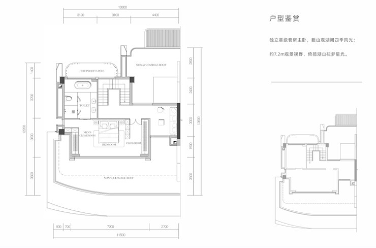
花园平墅效果图


【端户户型·190㎡·四室两厅三卫·】

【中户户型·175㎡·三室两厅三卫】

黄龙溪谷四期
四川黄龙溪谷四期售楼处电话☎:400-000-5503转2555【售楼处已认证】
黄龙溪谷四期营销中心电话☎:400-000-5503转2555【营销中心已认证】
四川黄龙溪谷四期开发商售楼电话☎:400-000-5503转2555【开发商已认证】
预约来电尊享内部优惠,开发商案场销售一对一热情服务,提前24小时预约,看房不收取任何费用!
Sales Office reservation center: 400-000-5503转2555 Make an appointment to enjoy the internal benefits, the developer's case sales one-to-one warm service, do not charge any fees to see the house!
声明:本文由入驻焦点开放平台的作者撰写,除焦点官方账号外,观点仅代表作者本人,不代表焦点立场。
