南郡涵云轩首页网站-南郡涵云轩售楼处电话-南郡涵云轩楼盘详情-南郡涵云轩地址位置-最新房价-户型图-小区环境-楼盘详情-交房时间-周边配套
扫描到手机,新闻随时看
扫一扫,用手机看文章
更加方便分享给朋友
南郡涵雲軒官方售楼处电话:400-000-5503转接1234【预约☎】
看房请提前预约,为保证客户看房体验,项目样板房只对提前1小时预约看房客户开放。
预约来电尊享购房优惠,可预约案场内部销售人员,专业一对一热情服务,让您用专业眼光去买房。

24席风雅院落,了却一个时代的江南向往,算得上西溪时间长河中一次真正意义上的文化重拾,随着新上地块资源锐减,这样的机遇将越发难得。走进涵雲軒,方知繁华与山水之间,仅仅是一道“静逸”的距离,从街区到林下、从前庭到门厅、经巷弄至庭院,曲蜿洄游之间,完成渐进式回归礼仪,心境由此复归平寂。
涵云轩坐落在杭州西湖区,中式风格别墅项目,面积达340-530㎡,融合了新江南院落的设计理念。项目背靠着西溪湿地,面朝着西湖山水,仿佛是一个御景园林,将自然之美尽收眼底。这样一个地处杭城封面级双景区的地方,近在咫尺,让人不禁心动


风雅生活是一种伟大思想的渗透,其宗旨是予事物以诗意。让人们在繁忙的都市时光里,能换一个角度,静下来,去享受时光的柔软、涵养生活的激情。他们的社交是时尚的聚落,他们的独处是艺术的具象。
项目实拍图
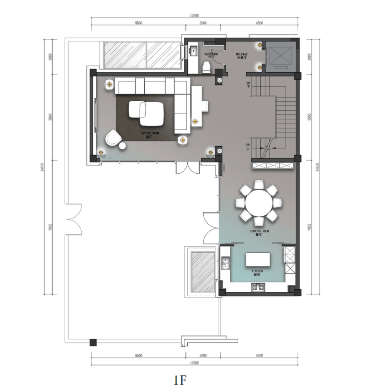
涵雲軒独栋院落,地上三层+地下二层,建筑面积约340-580㎡,作为新一代“超改善”产品,重新定义了杭州主城改善标准。建筑面积约350㎡「见山」户型 (赠送面积:地下室约165㎡ 、庭院约91㎡ 、露台约42㎡ 、连廊约20㎡),无论是从空间的尺度感,还是功能性,相较市面上的大平层户型,都做了一个升维。有天有地,阔绰尊贵感立显。
地上3层
仪式感+开阔感+功能性



△建面约350㎡「见山」户型图
一层生活区围绕着客厅和餐厨功能打造。直面(建筑面积约91㎡)花园的整扇落地折叠玻璃窗,可自由打开,自在进出,达到与自然零阻隔。夏日乘凉喝茶,秋日围炉夜话,其乐融融。
△意向图
二层中有三室三卫,兼书房、接待、储物等多重功能于一体,空间利用率非常高。
其中两室均设计有独立衣帽间,尺度阔绰不言而喻。并配备有电梯,大大节省了通往每一层的时间成本。
△意向图
三层端厅式大空间,只打造尊贵一室,利用近乎一整层的面积来满足供主人休憩+工作结合的心灵栖息之地,南向270°大采光面+超广角视野,赏一年四季风景如画。独立步入式衣帽间及带浴缸大卫生间的点缀,更加彰显仪式感、开阔感、功能性、舒适性、私密性强。

△意向图
赠送建筑面积约42㎡的宽阔露台,似“空中花园”,建立室内和自然的交互性,夜观星河,遥望西溪万顷绿波,远眺西湖苍翠群峰,享畅意人生。
△意向图
地下一层的“宴宾层”,雪茄吧、茶室、棋牌室……现极致奢华与舒适的生活体验;地下二层则是纯粹的“私享层”,主人可以定制自己的私属领域,享受专属于自己的时光。入户玄关、多功能影音室……更多可能性完全随主人兴趣自行定义。
△意向图
涵雲軒建面约350㎡「见山」户型呈现出来的,品质之高端、交标之精奢、细节之丰富,是在努力用更切合的方式给业主提供更舒适的生活方式。南郡涵雲軒西溪24席,建面约340-580㎡新江南商业院落,现已开启贵宾品鉴!
南郡涵雲軒官方售楼处电话:400-000-5503转接1234【预约☎】
看房请提前预约,为保证客户看房体验,项目样板房只对提前1小时预约看房客户开放。
预约来电尊享购房优惠,可预约案场内部销售人员,专业一对一热情服务,让您用专业眼光去买房。
声明:本文由入驻焦点开放平台的作者撰写,除焦点官方账号外,观点仅代表作者本人,不代表焦点立场。
