绿城桂月云翠园售楼处-户型图-开发商-房价-户型图丨(绿城桂月云翠园)属于什么档次?

搜狐焦点盐城站 2025-01-03 14:37:47
用手机看
扫描到手机,新闻随时看

扫一扫,用手机看文章
更加方便分享给朋友

杭州萧山区绿城桂月云翠园售楼处电话☎📞📱:400-000-0460转8888

杭州萧山区绿城桂月云翠园售楼处电话☎📞📱:400-000-0460转8888

我们以客户为中心,用心服务,只为让您拥有一个满意的家。

温馨提示:来访需提前两小时预约,以免直接参观无销售接待!

大盘,一直被视为品质开发商们作品突破的重要契机。

绿城历史上有许多大盘,他们肩负着赓续土地的使命,成为一个个区域标杆之作。

强强联袂,共塑城市气质大盘

Join hands in strength for city

在杭州,城西大盘标杆西溪诚园,基于65万方宏篇规模,开创绿城二代高层公寓作品的先河,并掀起全国项目模仿潮,始终未被超越,许多绿城老业主都将其视为“不可取代”。

绿城江南岸大盘范本钱塘明月,以约1600户体量曾红极一时,今天仍是很多江南改善的“白月光”;至留香园时,绿城已对大盘驾轻就熟,在留香园完成了从立面到精装的诸多创新,也是绿城留给钱江新城的品质IP。

同样,远瞻时代的保利置业,践行“美好城市运营商”使命,站在宏大视角之上,13年躬身耕耘浙里,凝练着一个个焕新未来的鸿篇巨著,不断创造出独有的美好生活标签。

多重时代利好的叠加,市北迎来“烫金时刻”。这里几乎有杭州最立体的交通网络,不仅拥有2号线7号两条黄金地铁,更有风情大道、博奥路和市心路三大纵轴贯通钱江新城、钱江世纪城、萧山主城;一站式抵达杭州未来最顶奢的商业综合体之一SKP(在建);杭州250米以上地标14座,市心北路就占据6座。

| 奥体印象城购物中心实景

随着城市高强度开发,千户大盘已是核心土地的凤毛麟角。

保利置业,绿城,浙江交控强强联袂 ,在对人文厚韵的溯源中,积蓄理想盛放的能量,达成一场深入城市心底的趋势共鸣,向城芯迈进更坚实的一步。引领新一代社区的先进表达,对渴望进阶的城市菁英再发出崭新的生活邀约。

桂月云翠

这是一方即使放置江南岸都极为罕有的千户改善大盘,因此,绿城在约20万方园区中,留下诸多罕见的高规格“彩蛋”:打造一扇面向城市的约50米恢弘门庭,复兴绿城久违的下沉庭院,规划近千方泳池综合区,并配备超千方地下会所(小区共享空间)等等,绿城以极具魄力的手笔为江南岸改善划下一道新的价值金线。

多元场景,共筑江南都市翡翠

Multiple scenes present the urban appearance

如琢如磨,如翡如翠,项目集结goa、植弥加藤、拓朴、平仄等设计团队强强联袂,共筑这一颗“都市的翡翠”。

整体设计的创新灵感源于19世纪美国“波士顿翡翠项链”的设计理念,通过形似“项链”的公园绿道,将分散的景观节点链接成有机整体。

与大盘一同到来的还有更具丰沛度的景观。建面约4.5万方园林景观,堪比大型城市级公园规模,以“波士顿翡翠项链”为母本,通过立体串联的景观手法,将归家的建筑景点逐一串联,配备下沉庭院+地下会所、泳池综合区、南北两大超5000㎡主题花园,营造高浓度生活体验。

在大盘规格之上,桂月云翠拥有了绿城杭州2024首个立体中轴示范区,并规划超万方双花园,几乎是普通园区的全部景观体量。功能上也拥有了更多的可能,如布朗式草坡、春知学堂、乐活之环以及六大全龄主题架空层等,增加了人与人、人与景观的交互,触手可及又相映成趣。

依循不同人群生活方式的洞察,以“翡”之雅致,布局长者活动功能,以“翠”之活力,规划乐活之环、童话聚场等场地,为园区注入活力,在场景上、体验上、心理上与居者共情,予以如沐春风的绿城式温暖。同时,园林延伸的口袋花园,作为建筑与景观的重要过渡,同样能交融日常之美,为热爱生活的人们,在此找到生活的又一重表达。

| 实景示范区呈现的景观中轴

因此,桂月云翠的面世,更似一场大师作品展,以巧妙的动线、精湛的细节与名贵的选材,通过近年罕见的地下会所、下沉庭院等雅奢场域,一并载入杭州人居迭新史。

归家美学,仪式惊艳的场所精神

The place spirit of home aesthetics

何为样本?前行者的经验大成,当下的引领性创新,以及后来者的拓写母本。

当我们再次走进集约绿城四大新样本的桂月云翠,一个焕然一新的故事,正向我们娓娓道来,这是一场惊艳江南的归家美学。

翠意流金的超50米宽、净高约6.45米的敞阔门庭,矗立一面艺术雕塑,在晚风中闪着荧荧微光,昭示着家的方向;沿着酒店式落客归来,中央迎宾水景、静水微澜与跌水如瀑交汇,塑造层层叠翠归家仪式,随之步入高奢酒店级大堂,铺展生活的序章。

大手笔延展地下光厅星幕尺度,打造一整片“星空”,将多主题架空层场景融入归家动线,最终于精奢单元门厅驻足,沉浸式归家在生活感与仪式感间自在流动。

入口大堂地面通铺的是来自意大利的「范思哲黑」石材,这种石材不仅通铺在大堂的地面,还通铺到了楼梯,甚至通铺到了整个地下会所的空间。会所的电梯厅搭配一整面「雪山银狐」,地面用铜丝镶嵌LOGO。

除了「范思哲黑」和「雪山银狐」,桂月云翠里的奢石还有Prada绿、青玉、皇家金檀、透光云石……并且,这些华贵的石材都被绿城用出了非一般的诗意之感。

约14米高的通高玻璃,视野毫无遮挡,可以游览整个中庭。架空层和景观是内外交融的,非常通透,向四周打开:一会儿让桌椅探出到草坪上,一会儿让盎然的绿意蔓延进屋檐下。

架空层周围还设计了口袋花园,即便是坐在室内的吧台里,也可以和口袋花园里的「林下空间」、花园小径甚至小院入口的超宽吧台有互动。

桂月云翠的车行入口不仅和大门一体化设计,它的通高还让车行归家极具仪式感。地库单元入户门口的整个天花板,都装上了光彩熠熠的星光顶,一直延伸到行车道;会所入口还专门设置了访客车位,以后和朋友约见面,可以请他们开车下地库,直接停到会所门口。

自然丰沛,永续生长的中轴实景示范区

The natural richness of the landscape

作为2024年绿城首个面世的全维示范区,桂月云翠显然承担了更高的使命,约1.2万方的示范区,以三进式院落空间为主轴,汇聚归家大堂、地下会所&下沉庭院、泳池综合区。于桂月云翠而言,每帧园景,每棵树木,都有其特定“精神”,经历过翡翠般的“精细”打磨,植物丰盈了景致也点缀了心绪,就如园林之于园区,生长为我们生活中不可分割的部分。

一方无惧时间的庭院,需要庭师综合的考量。植弥加藤设计团队在桂月云翠选择了有别于日常“街区”化景观的设计手法,更讲求优雅的漫步线路以及舒适便捷的功能,以“翡翠”为意象,像打磨玉石一般,显露出自然雅奢氛围,当居者从繁华都会归来,获得的不仅是一片自然风景,更能带来安抚心灵的松弛。

经过大量文化拆解与属地研究,团队从北宋名作《千里江山图》中提取部分景别,将东方山水风格、日式造园精髓以及都会生活意蕴,从旧传统中获得新价值,这同样是植弥加藤庭园精神的衍传,不是一代更新一代,而是一代传承一代。

最终,在庭院这方微观世界中,筑山、步道、水瀑.....方寸之庭,处处皆景,充斥着综合的体验,令庭院与园区之间自成天地又相得益彰,吸引居者驻足。随着翡翠贯穿庭院,带来的感受细化至听觉、视觉甚至触觉。

形态自然原生的松林,搭配羽毛枫、红枫等四季树种,令树叶随季节转换而灿烂;由百吨“六方石”建构如山一般的立体翠屏,这是远古时代火山喷发的遗迹,散发神秘而典雅的气质;采用日式造园尤为擅长的石子铺装,引导居者的步伐,获得富有层次的触感;以及别出心裁的庭院灯光设计,营造出深邃的意象;最终,在翡翠色调、黑色系以及大地色系材质的合力演绎下,滋诠释空间优雅与自然的和谐。

“为我一挥手,如听万壑松”,李白清越宏远的词句在下沉庭院上演。激昂的水瀑还原着自然的清丽,遍寻全国而来的松树,伫立四季葱茏。“置石”是日式造园的灵魂,近180年历史的植弥加藤也尤为擅长,百吨六方石诉说远古的文明,一方“镇院之宝”翡翠原石,呼应庭院的珍贵,为璀璨生活埋下伏笔。

正对入口大堂的这片崖壁,是用来自内蒙古戈壁滩的六方石堆出来的,它的六边形不是切割出来的,而是火山爆发天然形成的,看起来更像是朴拙的天然崖壁。下沉式庭院被命名为「空翠砯崖」——「砯」这个字念「pīng」,意思是水击岩石的声音,「砯崖」也是出自李白的诗句「飞湍瀑流争喧豗,砯崖转石万壑雷」。

桂月云翠作为绿城江南岸首个下沉庭院,更加注重“繁华和风景”紧密相连的城市认同感,通过一方庭院,唤起居者对自然的感悟,带来精神的启示与生命的安定。在约700方的庭院中,以私属的自然雅奢与共享的美感,“将居者向往的风景搬至庭院”,为更多使用者带去打动人心的细节。

无界相容,抵达城市微度假理想生活

The ideal life for a city micro vacation

美好的风景不一定在远方,它可以成为生活的一部分。随着近几年度假复兴,探索度假与生活的无界感,也成为桂月云翠的景观设计重点。

桂月云翠的下沉式庭院是「浓缩了山川河岳的东方园林」,泳池是「充满海洋度假风的社交综合区」。桂月云翠让露天泳池最大限度地开放起来。

设计师以泰国芭提雅CROSS酒店泳池为原型,引入绿城“泳池综合区”理念,在约900㎡映翠泳芯,异形泳池为核芯,周边环以廊架、吊床、亲水吧台、草坪躺岛、水上滑梯等功能,由空间花园作为保障私密性的缓冲带;并以简洁的抽象形态打破传统空间规则感,实现艺术与生活的平衡,将无界泳池生活的畅想踏实落地。

自《千里江山图》为原型的下沉庭院,至芭提雅cross酒店为灵感的异形泳池,如完成了一场穿越。映翠泳芯,不只是泳池,更是居者的社交场所,桂月云翠设置了与泳池相融的躺椅与吊床、与水面同高的亲水吧台、与大地亲密的草坪躺岛、与星空共赏的廊架露台、与戏水池相联结的水上滑梯等,在近1000方的泳池综合区中,空间无界,人也随之亲密。

宽境户型,美好生可感可见

Wide border apartment type

桂月云翠共打造13幢21-26F高层住宅,总户数1130套,户型建面约98㎡、110㎡、119㎡、139㎡、172㎡,精装限价39500元/㎡(含精装3500元/㎡),总价预算在300—700万级。

全系宽境户型以更为多样化户型选择满足从独居到三代同堂的家庭结构。同时精研当代家庭关系,融入LDKB一体化等设计,打造家人情感交互场,实现家庭平权与私人空间之间的平衡;并针对当代人生活痛点,精研收纳空间等,演绎都会生活的自由型格,让情感与温度一同蕴发。

与全维示范区一同开放的,还有约110㎡、139㎡以及172㎡三大样板间,一以贯之的宽境户型,不仅将四季风景框定眼底,且以极大的诚意置入超配装标,以初级改善的总价轻松驾驭高端改善的配置,令美好生活可感可见。

| 建面约172㎡户型样板间实景图,图源德科未来城市

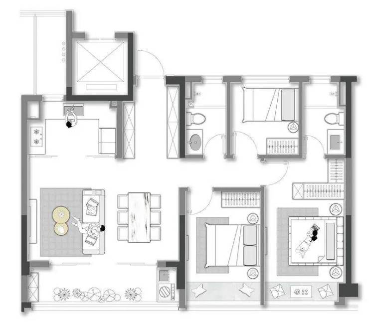
| 建面约172㎡户型平面示意图,具体以实际交付为准

| 建面约139㎡户型样板间实景图,图源德科未来城市

| 建面约139㎡户型平面示意图,具体以实际交付为准

| 建面约110㎡户型样板间实景图,图源德科未来城市

| 建面约110㎡户型平面示意图,具体以实际交付为准

其中,172㎡户型为四房两厅三卫设计,四开间朝南,整体布局规整方正,客厅与西侧次卧联通大阳台,采光通透。双套房主卧设计,双飘窗,主卫双台盆,配浴缸;次卧套房采用隐形门,与电视背景墙相连通,保护隐私的同时又增加空间美感。

杭州萧山区绿城桂月云翠园售楼处电话☎📞📱:400-000-0460转8888

我们以客户为中心,用心服务,只为让您拥有一个满意的家。

温馨提示:来访需提前两小时预约,以免直接参观无销售接待!

声明:本文由入驻焦点开放平台的作者撰写,除焦点官方账号外,观点仅代表作者本人,不代表焦点立场。